
Dřív se tu vařily knedlíky, dnes se půjčují knihy. Město Chodov má novou knihovnu
Stojí nedaleko centra a byla dlouho nevyužitá. Typizovaná budova postavená současně se sousedními paneláky na sídlišti se změnila na městskou knihovnou. Obyvatelé Chodova na západě Čech ji vítají, jsou rádi za přívětivý prostor, kde se mohou scházet.
Adéla Vaculíková , 1. 7. 2024
Před rekonstrukcí to byly dvě kostky téměř bez oken – ta původní byla částečně zaslepená. Objekt stojí mezi městskou poliklinikou a paneláky v Chodově, což je třináctitisícové město nedaleko Sokolova. Za dobu své existence vystřídal různé funkce. Měla v něm být mateřská školka, ordinace a nakonec knedlíkára. To byl poslední provoz, následně zůstala nevyužitá.

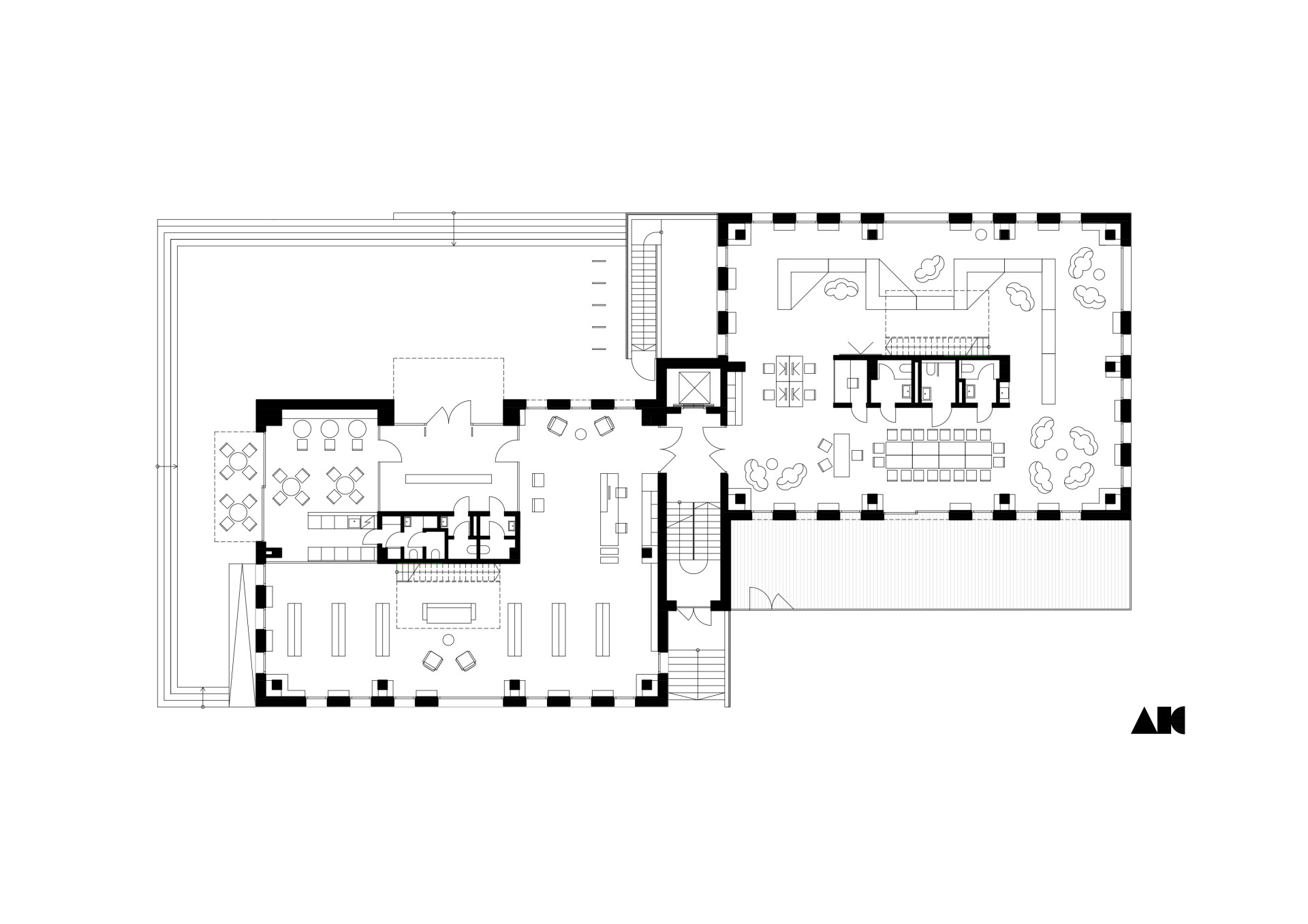
Díky nedávné přestavbě se z ní stala budova veřejná, funguje v ní Městská knihovna Chodov. Ve „dvou kostkách“, původního typizovaného objektu vybudovaného jako součást sídlištní infrastruktury, jsou jednotlivá oddělení – v jedné dospělé, ve druhé dětské. Součástí je taky kavárna a multifunkční sál, nechybí potřebné administrativní zázemí.
Oživit nevyužívanou, zchátralou a vyhořelou stavbu se rozhodlo město. Ačkoliv by to bylo asi jednodušší, neměla se z jeho rozhodnutí zbourat, ale přestavět. Při stavebních pracích z ní zůstaly jen nosné konstrukce, výraz budovy se proměnil zásadně – je z ní reprezentativní veřejná stavba.
„Stavba mohla již poněkolikáté změnit svou funkci díky univerzálnímu panelovému nosnému systému MS-71. Pokud by to město potřebovalo, může se v budoucnosti proměnit znovu. Z hlediska udržitelnosti stavění je to skvělá vlastnost,“ vysvětluje Jan Kopecký z Ateliéru Kopecký, ve kterém přestavbu navrhli.

Architekti si vytyčili jako důležitý prvek projektu otevřenost. V interiéru jsou prostory co nejvíce propojené, příčky skoro chybí, je to tedy kontinuální prostor, velkoryse prosvětlený. „Nutné zázemí je situováno doprostřed dispozice, což umožňuje přirozené provětrání a prosvětlení objektu,“ popisují to architekti ve své autorské zprávě – jedná se konkrétně o WC.
Světlo dovnitř přivádí nové střešní světlíky a velká okna – knihovnu to činí otevřenou taky vizuálně. Zvenku je vždy vidět, co se uvnitř odehrává. To se pro veřejnou instituci hodí.

Hodí se pro ni taky pádný výraz, který se architektům podařilo původně nijak výrazově silné stavbě vetknout. Tmavě omítnuté římsy od sebe oddělují patra se světlými obvodovými stěnami. Ty se navíc díky oknům, vysokým od podlahy až po strop, tříští, stávají se z nich široké pilíře, nesoucí to, co je nad nimi. Římsy a pilíře dělají společně ještě s vyvýšenou podestou, která navádí, kudy do budovy vstoupit, knihovnu příjemně monumentální.
Novým přídavkem je taky komunikační šachta se schodištěm a výtahem. Nachází se přesně uprostřed objektu – v místě styku dvou kvádrů. O jedno podlaží je převyšuje, je z ní tedy pohledová dominanta.
Více k tématu
Městská knihovna se v budově po knedlíkárně otevřela na podzim roku 2023. Její slavnostní zpřístupnění tehdy přilákalo mnoho místních. V reportáži od Českého rozhlasu Karlovy Vary jedna z návštěvnic projevila radost z toho, že je knihovna „důstojným místem“, kde se mohou místní scházet. Těch je ve městě s problémy typické pro bývalé sudetské regiony totiž málo.
„Důležité jsou aktivity, které se tady budou odehrávat. Navážeme tam, kde jsme skončili před covidem. Plánujeme od kurzů vaření, přes tanec, po vzdělávání, hraní, vyrábění,“ řekla v reportáži ředitelka knihovny Hana Nemčičová. Knihovna má totiž současně plnit taky roli komunitního centra.
Díky otevřeným interiérům, vybavených mobilním nábytkem, může prostor pro svůj program využívat variabilně. Počítá se přitom taky s expandováním ven – akce či výstavy se dají pořádat na rozlehlé platformě před vstupem, okolo je taky čerstvě zrevitalizovaný park. A do budoucna se bude dát pobývat třeba i na zelené pochozí střeše, kterou město plánuje dobudovat.
- Autoři: Tomáš Kopecký, Jan Kopecký, Mojmír Kopecký
- Ateliér: Ateliér Kopecký
- Země: Česká republika
- Projekt: 2019-2020
- Realizace: 2021-2023
- Adresa:: Dvořákova 878, 357 35 Chodov u Karlových Var
- Investor: Město Chodov
- Fotograf: Takuu - Petr Marvan (interiér)
- Náklady: 51 300 000 Kč