
Ze tří pokojů jedenáct. Když se architekti snaží, dostanou do bytu saunu, šatnu i pracovnu
Byt ve starém domě nevyhovoval potřebám mladé rodiny. Pokoje byly moc malé, hala moc velká a tmavá. Teď je uspořádání praktické a všude může světlo.
Karolína Vránková , 22. 5. 2025
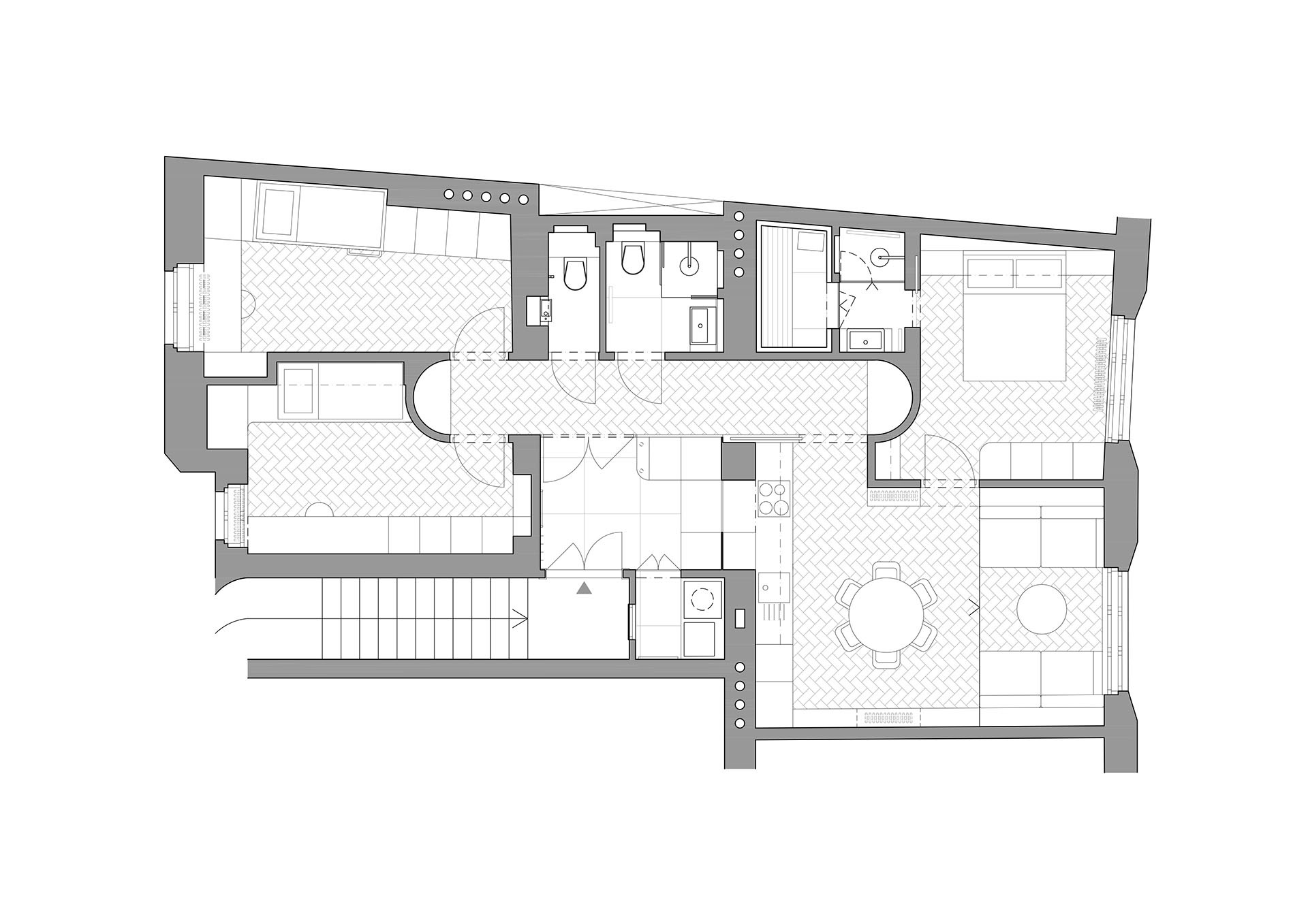
Průměrný byt v ČR má 86,7 m². Tenhle byl dokonce ještě menší, jen 82 m². Pořídila si ho rodina se třemi dětmi. Byt byl ve starém domě, měl dva pokoje, úzkou kuchyni a velkou, ale tmavou vstupní halu. Velmi běžná výchozí situace. Co s ní?

Architekti a architektky z No Architects se rozhodli vytěžit z bytu maximum. Neomezit se na drobné úpravy, ale proměnit celé jeho fungování. Popisují, co vše tam dostali: „A sice halu s denním světlem, dlouhou centrální chodbu s posezením, dva dětské pokoje s komfortním spaním pro tři děti, dvě koupelny, samostatnou toaletu s úložnými prostory, kuchyni se stolováním až pro osm osob a obývací pokoj s knihovnou, za jejíž rozměry by se nemusel stydět žádný intelektuál, pracovní kout, rodičovskou ložnici a domácí saunu, díky které rodina přestala přes zimu stonat. A samozřejmě též příruční šatnu, sklad a prádelnu v jednom.“
Aby to tak dopadlo, bylo potřeba se nad celým prostorem zcela nově zamyslet. „Začali jsme nejprve paradoxně plýtváním místem. Vložili jsme doprostřed dispozice zcela nově dlouhý komunikační prostor, dokonce delší, než jsme potřebovali a na jeho koncích jej zaoblili a opatřili přisednutím a úložnými prostory,“ popisují. Z této chodby se vstupuje do dalších místností: dětských pokojů, na WC, do koupelny a do obývacího pokoje – každá z těchto místností je jinde než původně.

Kromě klasických místností tu vznikla řada užitečných zákoutí: posezení a úložné prostory v chodbě, šatna s pračkou, pracovní kout v ložnici. „Na svých dvaaosmdesáti metrech čtverečních užitné plochy nabízí s trochou nadsázky až 11+kk,“ sčítají to architekti.
Nešlo ale jen o to, aby vše fungovalo, bydlení zpříjemňuje také jednotný styl: „Bydlení je posazeno na dubové podlaze, oděno do odstínů bílé a béžové, s péčí o jemný detail. Celek podtrhuje světlá zubatá linie nízkého dřevěného obkladu – ve skutečnosti monumentálního soklu, zapuštěného do stěn a volně přecházejícího na nábytek a zpět,“ popisují architekti.
Více k tématu
S uspokojením konstatují, že se jim povedlo obyčejný starý byt přetvořit pro potřeby současné mladé rodiny. „Přes tak nasycenou náplň se nejedná o bezduché skladiště s chodbami, náš návrh nerezignuje na snahu o velkorysost a poctivý detail. Na poetiku, bez které je každá stavba jen pouhou investicí,“ shrnují.
- Autoři: Jakub Filip Novák, Daniela Baráčková, Veronika Amiridis Menichová
- Ateliér: No Architects
- Země: Česká republika
- Město: Praha
- Projekt: 2023
- Realizace: 2025
- Užitná plocha: 82 m²
- Fotograf: Studio Flusser
- Stavební práce: RekoLux STAV
- Truhlářské práce: ATIN – atypické interiéry
- Ocelové dveře: Antos manufaktura
- Dlažby a obklady: Casalgrande Padana
- Dlažby a obklady Beton: Archceram
- Židle Ironica: TON
- Přisazený lustr Sfera Wood: Milagro
- Závěsné svítidlo Rime: Muuto
- Závěsná lampa Pelota: Edo Solutions
- Dřevěná podlaha: Valen&Masar