Fasáda administrativní budovy na místě bývalého dolu připomíná malé krystaly

Oblast bývalého uhelného dolu KWK Gliwice v Polsku ožívá díky výstavbě nových budov, které se tady realizují v rámci Vzdělávacího a podnikatelského centra Nove Gliwice. Jednou z nich je také budova pro reklamní agenturu FUX.
Anežka Jaskmanická , 29. 9. 2021
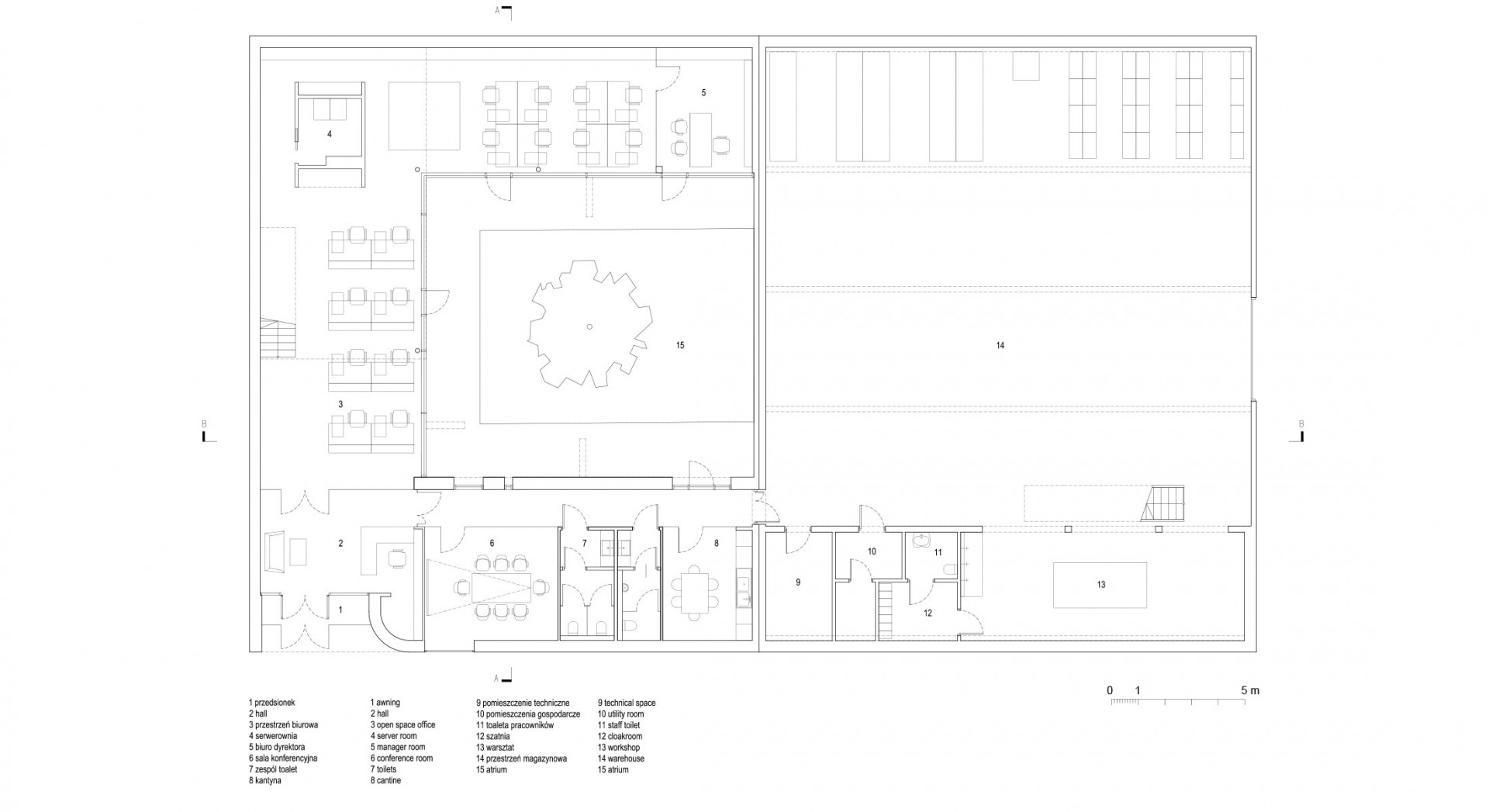
SPOJENÍ DVOU FUNKCÍ
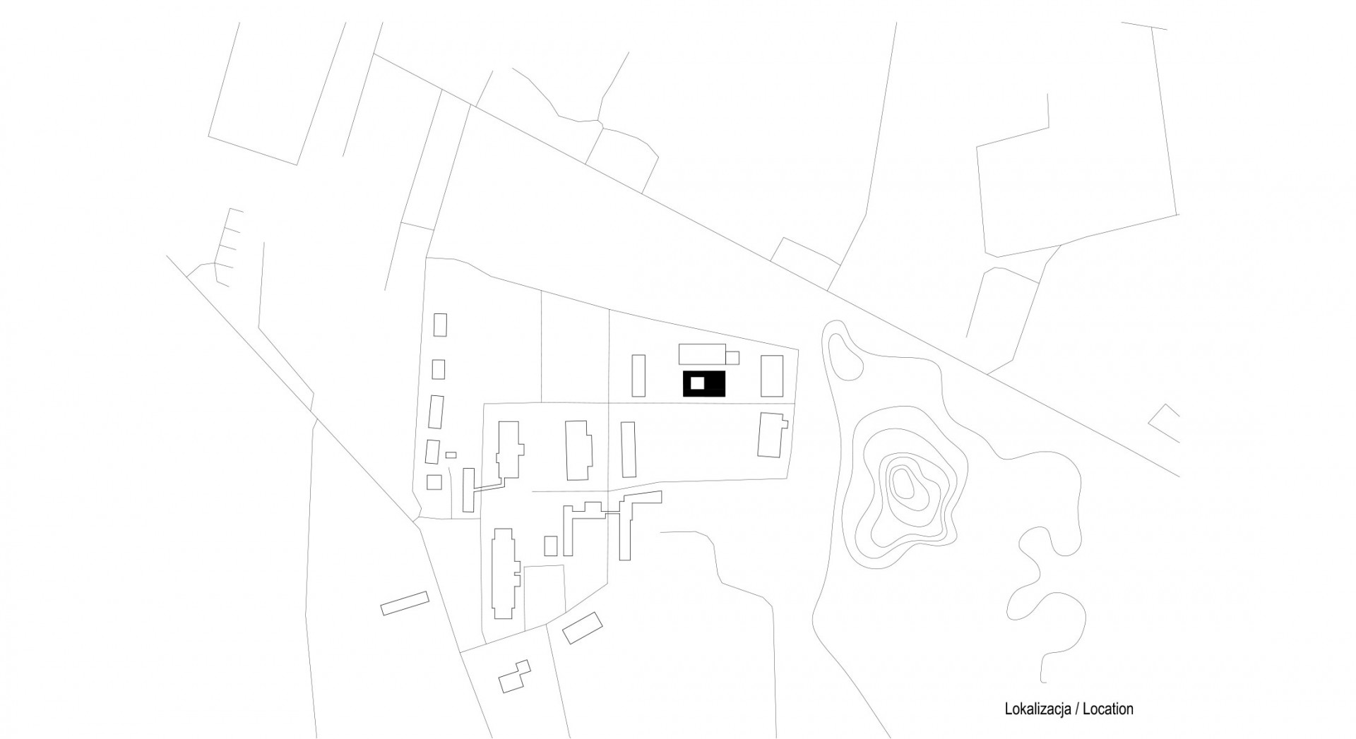
Město Gliwice leží pár kilometrů od Katovic nedaleko českých hranic. S těžební historií je spojeno už od roku 1901, kdy zde začala výstavba dolu, který se původně nazýval „Gliwitzer Grube“. Samotná těžba zde probíhala až od roku 1911 a v současnosti historii tohoto místa připomínají hlavně dvě původní zrekonstruované cihlové budovy z 20. století. Gliwice dnes spadají pod speciální ekonomickou zónu Katowice, což je neobydlené území s lepšími ekonomickými podmínkami, nabízející také nová pracovní místa.

Architektonické studio INTERURBAN sídlící v polském městě Gdyně navrhlo na území bývalého dolu budovu, která slouží dvěma rozdílným funkcím – administrativě i skladování zboží. V objektu reklamní agentury FUX se nachází také soukromá zahrada, která na jedné straně skladové a kancelářské prostory funkčně rozděluje, na druhou stranu je ale díky své otevřené ploše propojuje. Zahrada nabízí prostor pro volnočasové aktivity a setkávání zaměstnanců, kteří přicházejí z rozdílných pracovních prostředí.

KREATIVITA ZVENKU I ZEVNITŘ
Investor chtěl zajímavé spojení dvou zázemí doplnit a kreativně rozvést i na fasádě nové budovy. Tu tvoří speciální sklovláknobeton (GFRC)1, který architekti použili v interiéru i exteriéru. Na fasádu byla použita textura 2/174 Bersigau z řady RECKLI SELECT, s jejíž pomocí byly do fasády vyraženy prvky, díky kterým fasáda vypadá jako perforovaný plech. Zrak kolemjdoucího tak může zaujmout nejen stříbrné řešení budovy, ale i jeho vystupující detaily, které připomínají malé krystaly.

Výjimečné estetické pojetí fasády vzniklo díky použití elastických strukturních matric, které umožňují bezproblémové odbednění i u komplikovaných struktur a přesné přenesení designu. Nepochybnou výhodou tohoto typu matric je možnost jejich opakovatelného využití, a to až sto násobně.
1 GFRC - Glass Fiber Reinforced Concrete (pozn. redakce)


- Autoři: Łukasz Piankowski, Weronika Juszczyk
- Země: Polsko
- Město: Gliwice
- Ulice, číslo: Bojkowska 37L
- PSČ: 44-100
- Realizace: 2016
- Zastavěná plocha: 788.00m2