1/28
Uhlík architekti, Činžovní dům Letná, nástavba – foto
Foto: Jan Kuděj
2/28
Uhlík architekti, Činžovní dům Letná, nástavba – foto
Foto: Jan Kuděj
3/28
Uhlík architekti, Činžovní dům Letná, nástavba – foto
Foto: Jan Kuděj
4/28
Uhlík architekti, Činžovní dům Letná, nástavba – foto
Foto: Jan Kuděj
5/28
Uhlík architekti, Činžovní dům Letná, nástavba – foto
Foto: Jan Kuděj
6/28
Uhlík architekti, Činžovní dům Letná, nástavba – foto
Foto: Jan Kuděj
7/28
Uhlík architekti, Činžovní dům Letná, nástavba – foto
Foto: Jan Kuděj
8/28
Uhlík architekti, Činžovní dům Letná, nástavba – foto
Foto: Jan Kuděj
9/28
Uhlík architekti, Činžovní dům Letná, nástavba – foto
Foto: Jan Kuděj
10/28
Uhlík architekti, Činžovní dům Letná, nástavba – foto
Foto: Jan Kuděj
11/28
Uhlík architekti, Činžovní dům Letná, nástavba – foto
Foto: Jan Kuděj
12/28
Uhlík architekti, Činžovní dům Letná, nástavba – foto
Foto: Jan Kuděj
13/28
Uhlík architekti, Činžovní dům Letná, nástavba – foto
Foto: Jan Kuděj
14/28
Uhlík architekti, Činžovní dům Letná, nástavba – foto
Foto: Jan Kuděj
15/28
Uhlík architekti, Činžovní dům Letná, nástavba – foto
Foto: Jan Kuděj
16/28
Uhlík architekti, Činžovní dům Letná, schodišťový prostor – foto
Foto: Jan Kuděj
17/28
Uhlík architekti, Činžovní dům Letná, Café Lajka – foto
Foto: Tomáš Vodňanský
18/28
Uhlík architekti, Činžovní dům Letná, Café Lajka – foto
Foto: Tomáš Vodňanský
19/28
Uhlík architekti, Činžovní dům Letná, Café Lajka – foto
Foto: Tomáš Vodňanský
20/28
Uhlík architekti, Činžovní dům Letná, exteriér – foto
Foto: archiv autorů
21/28
Uhlík architekti, Činžovní dům Letná, exteriér – foto
Foto: archiv autorů
22/28
Uhlík architekti, Činžovní dům Letná, exteriér – foto
Foto: archiv autorů
23/28
Uhlík architekti, Činžovní dům Letná, půdorys 1. PP – foto
Foto: archiv autorů
24/28
Uhlík architekti, Činžovní dům Letná, půdorys 6. NP – foto
Foto: archiv autorů
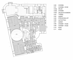
25/28
Uhlík architekti, Činžovní dům Letná, půdorys 7. NP – foto
Foto: archiv autorů
26/28
Uhlík architekti, Činžovní dům Letná, řez – foto
Foto: archiv autorů
27/28
Uhlík architekti, Činžovní dům Letná, schéma – foto
Foto: archiv autorů
28/28