Stáří jako přednost. Pavlačový dům v Nuslích modernizovali, ale zachovali atmosféru
Pohodlné bydlení ve starém domě navrhl ateliér Plus One Architects. Chodby rozjasnila pudrová růžová a byty dostaly balkony – jsou z původních pavlačí a shlíží k pobytovému dvoru se zahrádkami.
Adéla Vaculíková , 6. 3. 2025
Narazit v Praze na bytové domy, které z gruntu rekonstruují developeři, dnes není těžké. Vinohrady, Karlín, Vršovice, Smíchov, všude se něco takového děje. Většinou jde o průměrné výkony, domy se očistí, dostanou nové dispozice a hezkou fasádu, přidaná hodnota ovšem často chybí. V jednotkách případů stavební úpravy dopadnou nadstandardněji a rekonstrukce pavlačového domu v Nuslích je teď jedním z nich.
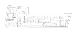
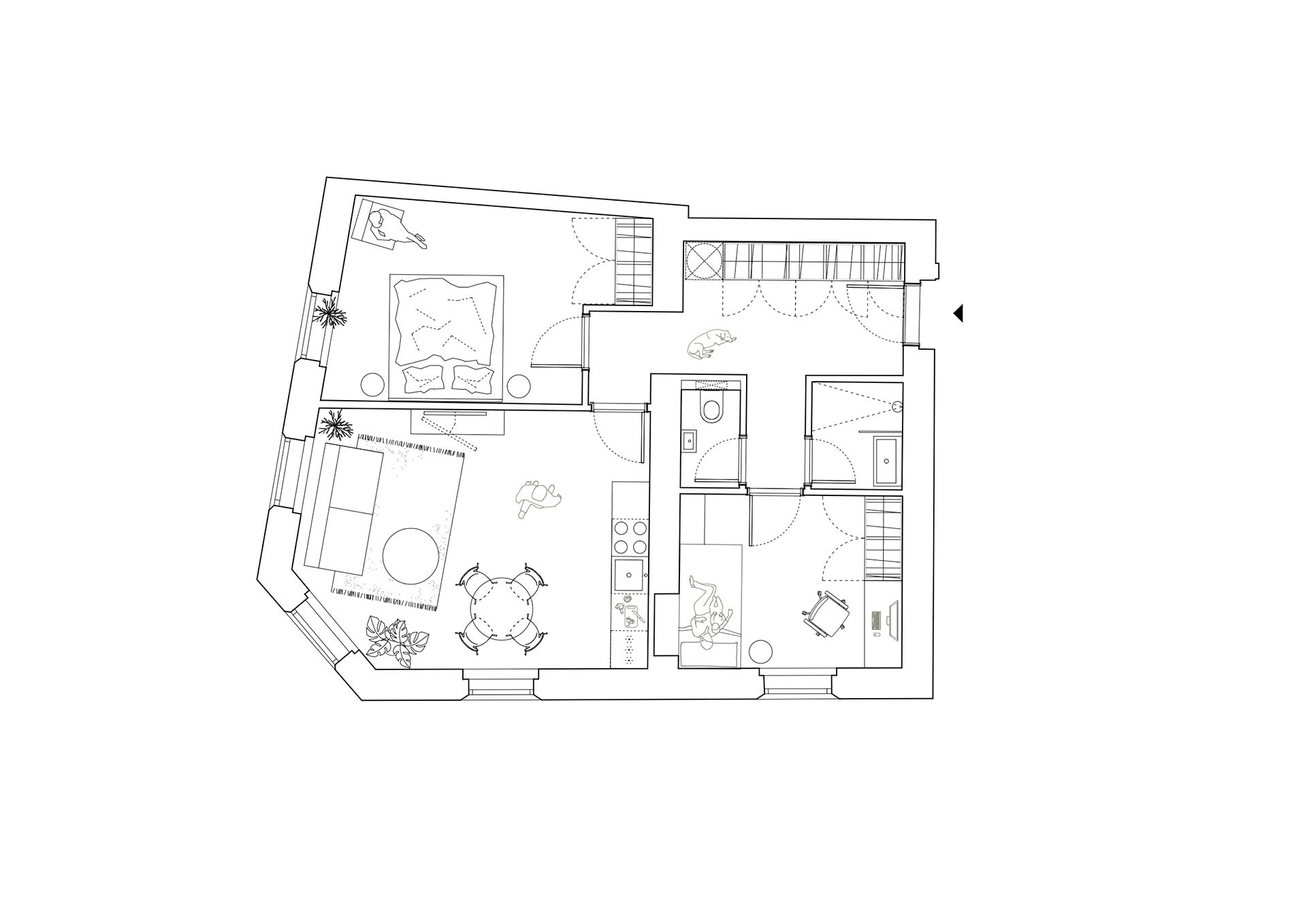
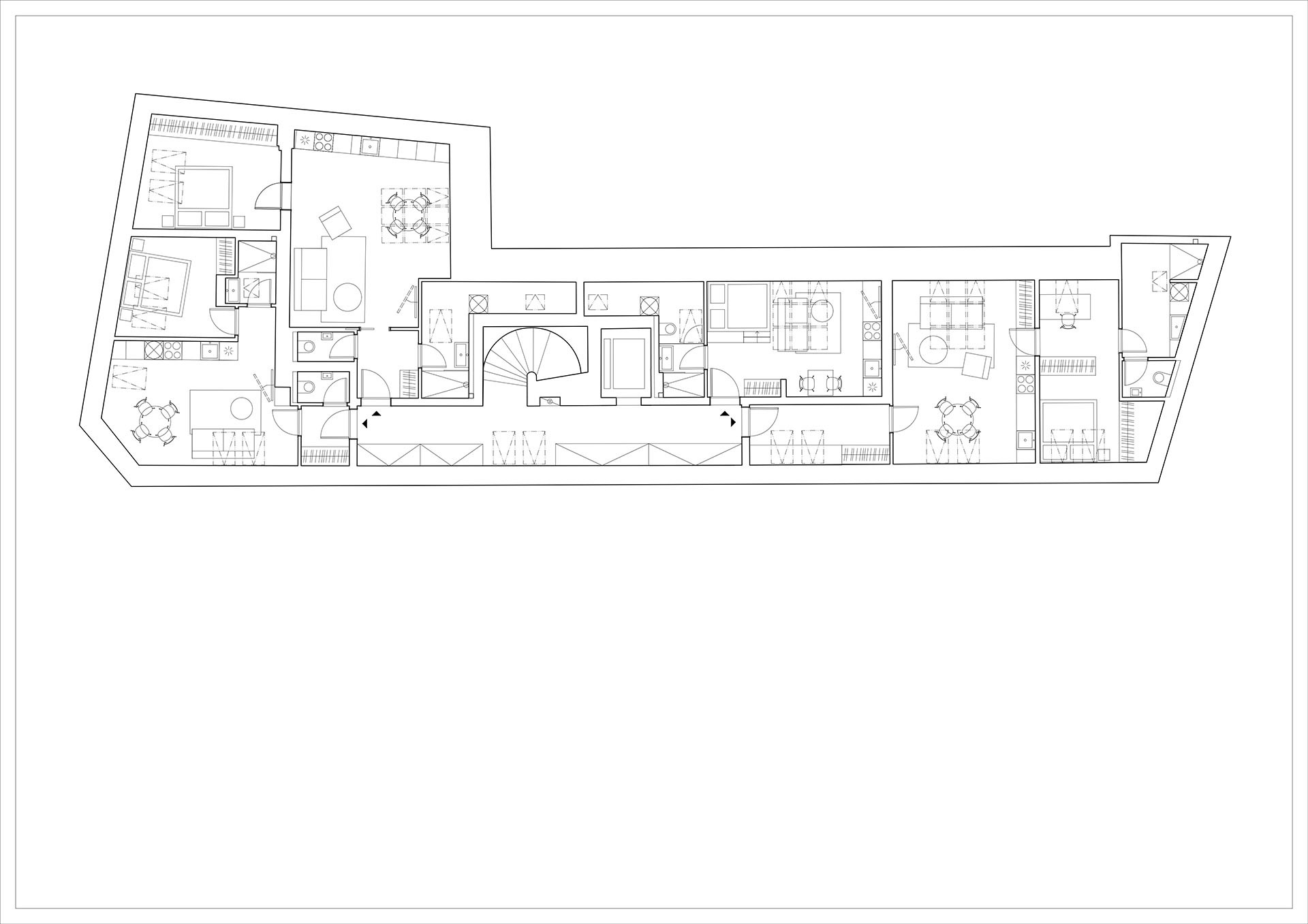
Bytový dům v Nuslích na Boleslavově ulici pochází z přelomu 19. a 20. století a směrem do ulice vypadá jako řada jeho sousedů. Je postavený ve střídmém historizujícím stylu a rekonstrukce ho pozdvihla příjemnou světlou fasádou. Celkově zajímavější je ovšem jeho neveřejná strana s pavlačemi. Původně sloužily pouze jako průchody zpřístupňující jednotlivé byty, dnes jsou z nich soukromé balkony s výhledem do Nuselského údolí a dvora, který mohou využívat všichni obyvatelé domu.

Do celkové rekonstrukce domu investovala developerská společnost Castle Rock Investments, a na vypracování její koncepce oslovila architektky ze studia Plus One Architects. Podařilo se tak skloubit požadavky na atraktivitu bytů pro trh s realitami a zodpovědnost k původní architektuře.
Světlo v novém podkroví a proměna dispozic
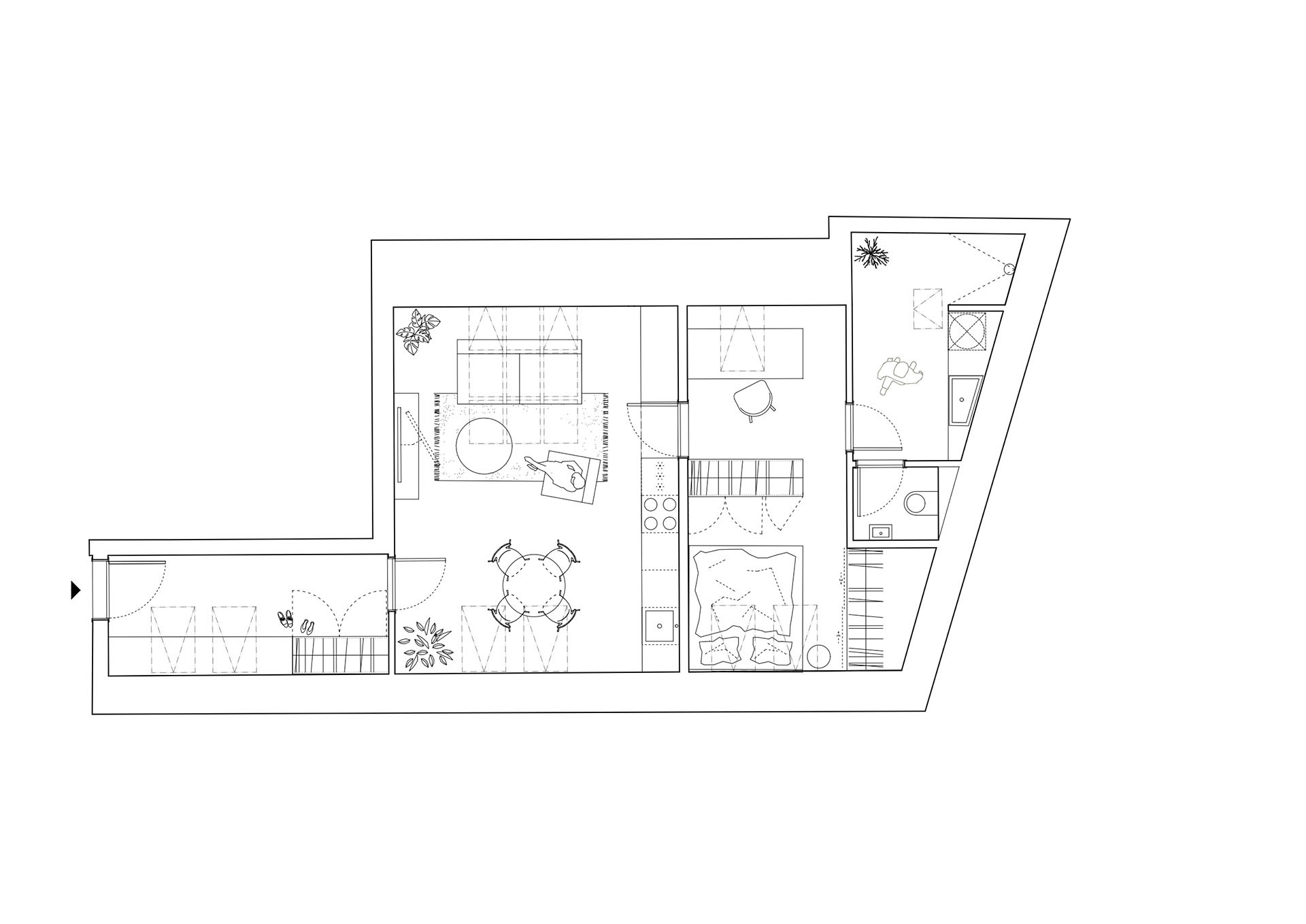
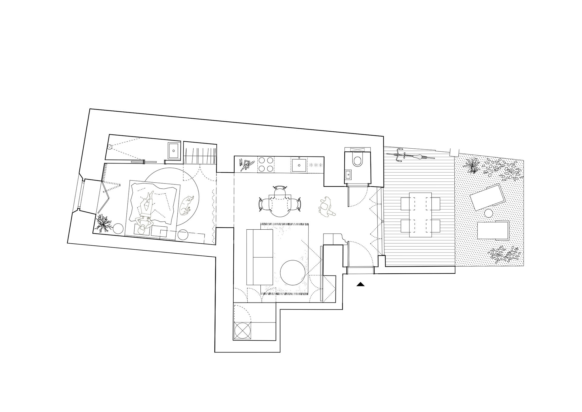
Dům nyní nabízí patnáct bytových jednotek, přičemž každá je jiná – shodné dispozice v domě nenajdete. Důležitým prvkem rekonstrukce se stalo nově upravené podkroví. Dříve neobytné, nyní přeměněné na čtyři světlé byty, obytná kapacita domu se tím zvýšila, žádné nastavování ale neproběhlo. Architektky v podkroví kladly důraz na přirozené prosvětlení, navrhly maximum střešních oken, a do chodeb integrovaly kulaté světlíky, které rozptylují denní světlo i do hloubky bytových dispozic.

Další specialitou je mezonet, v domě se nachází jen jeden a má vlastní vstup. Prostorové kvality se zvyšovaly u všech bytů, mají co největší pokoje a také velkorysejší koupelny. Ty ve starých pavlačových domech původně často úplně chyběly a později se vybudovaly jen minimální. A za pozornost stojí také odhalené betonové stropy ve vybraných bytech – jde o železobetonové desky, kterými se posilovala statika jednotlivých pater, prostory zároveň decentně vizuálně zatraktivňují.
Stáří stále přítomné
Rekonstrukce kladla důraz na atraktivní společné prostory, tím jsou v domě hlavně schodišťová šachta a chodby. Architektky chtěly svým konceptem navázat na původní reprezentativní charakter společných prostor v měšťanských domech, a tak jim vtiskly výraznou barevnost. Stěny mají pudrový odstín tmavší růžové a podlahy jsou laděné do šedivé.

Zachovalo se původní kamenné schodiště, je pouze očištěné a ošetřené nátěrem, takže zůstalo patrné jeho stáří. Příjemným detailem jsou také dýhované poštovní schránky a výrazné svítidlo. „Točitý tvar schodiště podtrhuje subtilní liniové svítidlo, které se vine napříč všemi patry. Podoba osvětlení vznikla ve spolupráci s designérkami a konstruktérkami ze studia Penocze,“ dodávají k němu autorky.
Více k tématu
I po rekonstrukci je poznat, že jde o starý dům, může se to zdát banální, ale zvyšování standardů bytových staveb developery už kolikrát vedlo k tomu, že uvnitř působily jako novostavby. Koncept Plus One Architects v Nuslích udělal ze stáří přednost, která bude určitě lákat také kupce bytů. Kdo by nechtěl bydlet na místě s atmosférou.
- Ateliér: Plus One Architects
- Autoři: Petra Ciencialová, Kateřina Průchová, Tereza Thérová
- Země: Česká republika
- Město: Praha
- Adresa: Boleslavova 141/3, Praha
- Projekt: 2023
- Realizace: 2024
- Užitná plocha: 780 m²
- developer: Castle Rock Investments
- Fotograf: BoysPlayNice
- Konzultant: Henceforth.
- Hlavní dodavatel: PBW group
- Obraz: Kamila Najbrtová
- Laminátová podlaha Tavira clear: Gerflor
- Sprchové a umyvadlové baterie: Grohe
- Wc, umyvadla Kartell: Laufen
- Poštovní schránky: ALPI-DÝHA
- Panely vzorový byt: Novavita
- Keramické obklady vzorový byt: Palet.
- Venkovní lavice: Capacity System
- Židle Óda na čtrnáctku [Jiří Krejčiřík], židle La Zitta, stolek P.O.V. 460: TON
- Pohovka Seaside Sofa: Lexová&Smetana
- Odkládací stolek Candy Table: Mikolášková&Drobná
- Koberce: Maimana
- Závěsné svítidlo Starcloud [Lucie Koldová]: Brokis
- Váza Garden: František Jungvirt
- Osvětlení: Penocze
- Knihovna Barrel [Jiří Pelcl], lounge křeslo Mistra Lounge [Lucie Koldová], stolek Dalmatian [Palma de Alma], schůdky Tip Top [JanskyDundera]: Master & Master
- Váza Bandaska: Dechem studio
- Ručník Blue Drop: PLOVE
- Umělecký objekt: Lucie Jindrák Skřivánková
- Závěsné svítidlo Flare: bomma
- Trouba a indukční deska Philharmonie: De Dietrich