Panelák bez kompromisů. Byt, kde se kuchyně stala srdcem celého prostoru
Bourat nebo řezat panely je náročné. V tomto pražském bytě se povedlo vyříznout otvor do panelu rychle a přesně. Kuchyň se propojila s obývacím pokojem a celý byt se změnil.
Kateřina Hrachová , 31. 3. 2026
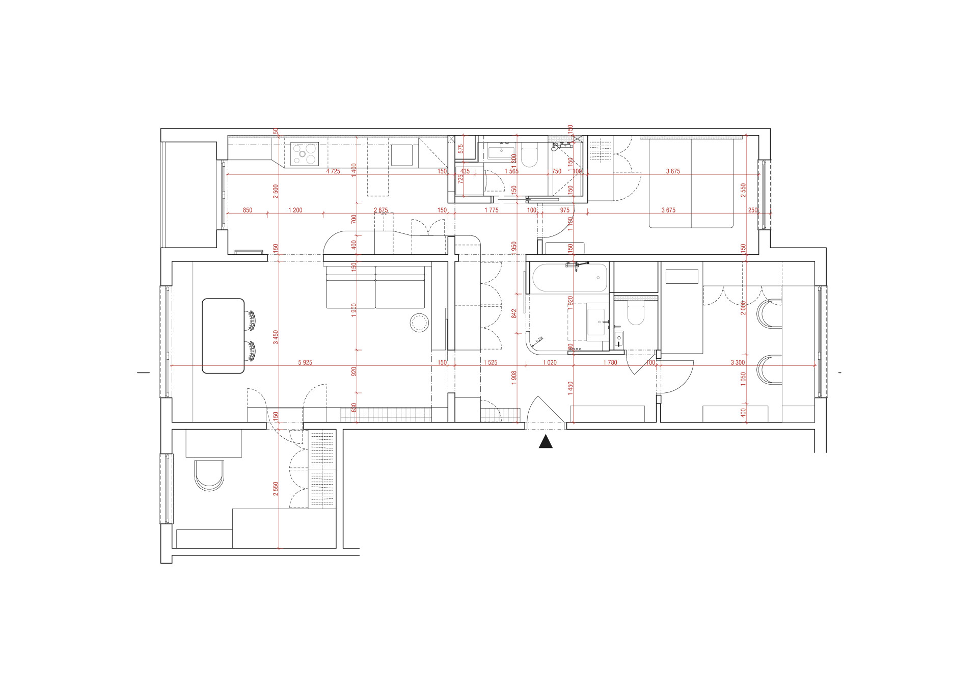
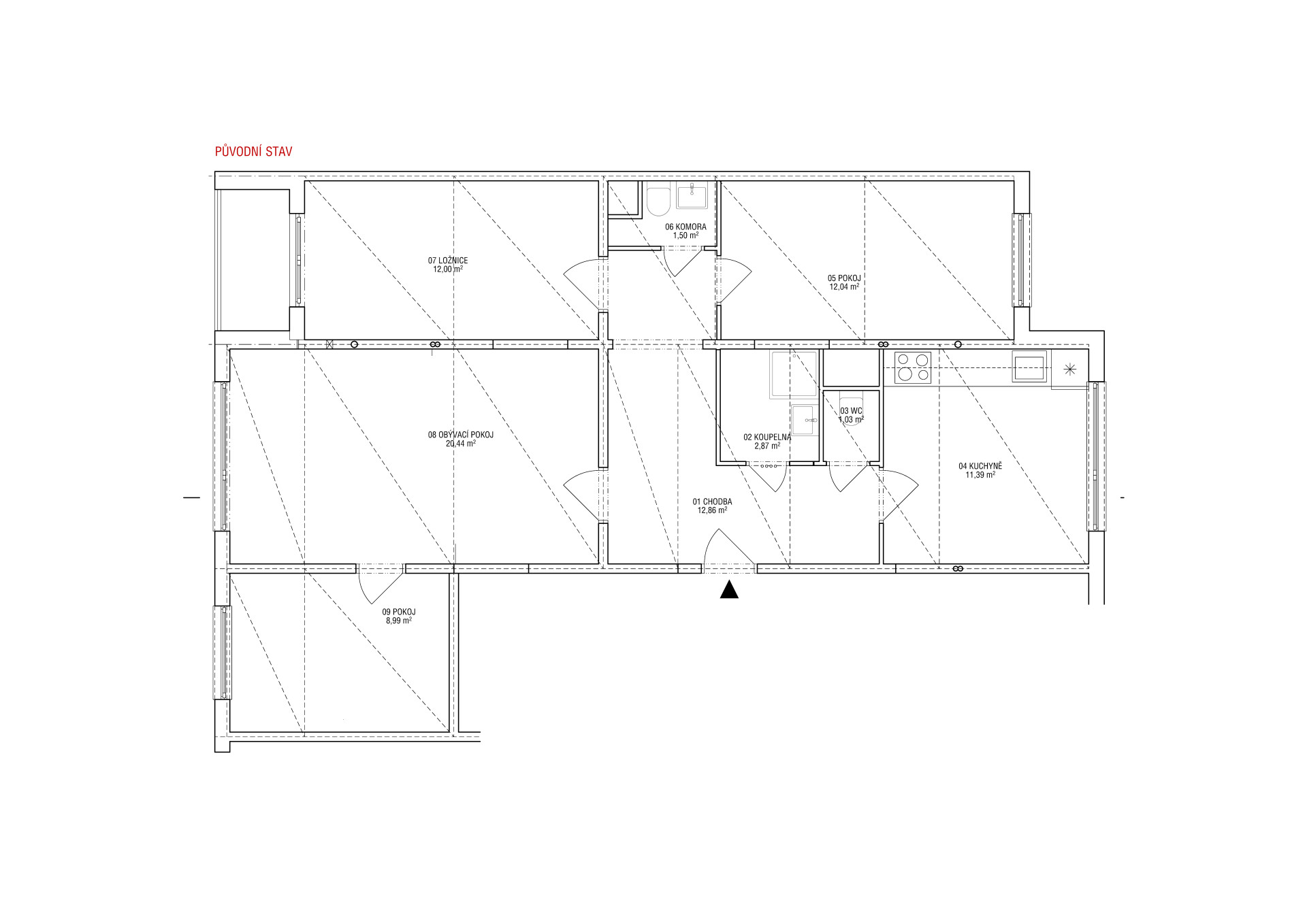
Na začátku byl byt v panelovém domě ze systému Larsen Nielsen, který se používal od 70. let, a to výhradně v Praze. Panelový modul měl velikost 2,7 a 3,6 metrů a místnosti byly tedy poměrně malé. „Byt měl uzavřené pokoje, kuchyni provozně oddělenou od obývacího pokoje, dveře do koupelny přímo proti vstupu do bytu a nevyužívanou lodžii v ložnici," popisuje architektka Zuzana Bartasová.
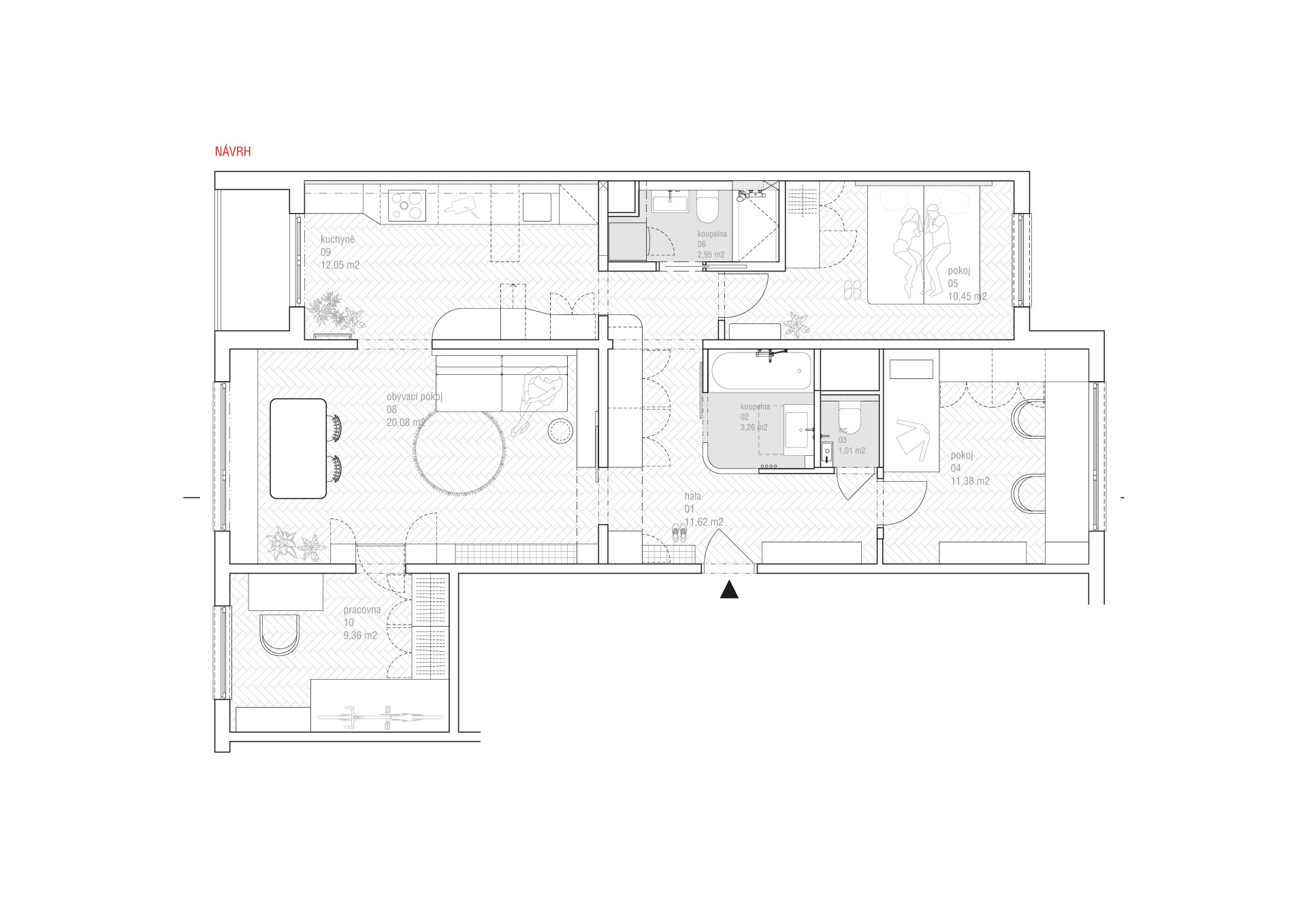
Cílem bylo dispozici změnit, propojit kuchyni s obývacím pokojem a přidat pracovnu - tak, aby to vyhovovalo současnému životu rodiny se dvěma dětmi. „Každá výzva ale potřebuje i omezení a těmi byla přísná pravidla sdružení vlastníků jednotek," říká architekta. Zdejší SVJ bylo skutečně přísné, byl tu zákaz drážkování stěn pro elektroinstalace, zvýšený důraz na akustické oddělení stropní desky a také právě bourání panelů.
Přesto se architektka rozhodla, že se do panelu "řízne" a propojí se obývací pokoj s kuchyní. Obvykle se to dělá diamantovým kotoučem, který se musí neustále chladit množstvím vody a vydává velký hluk. Tady se postupovalo takzvanou suchou metodou, při níž se prach ještě navíc rovnou odsává. „Když firma skončila, nebyl po ní ani nepořádek," říká architektka. Jedna odstraněná stěna přitom zcela změnila charakter bytu.
Velkou výhodou bytu byla také přítomnost dvou instalačních jader. Díky nim bylo možné přesunout kuchyň a zároveň vytvořit dvě plnohodnotné koupelny. Výsledkem je dispozice, která nabízí větší komfort i flexibilitu pro každodenní život.

Interiér stojí na jednoduchém, ale silném principu: místo množství příček pracuje s vloženými nábytkovými objemy. Ty fungují jako kompaktní bloky, které ukrývají úložné prostory a zároveň přirozeně vymezují jednotlivé zóny. Prostor tak zůstává otevřený, ale zároveň přehledný a dobře organizovaný. Důležitou roli hraje i vizuální propojení místností. Průhledy napříč bytem vytvářejí pocit větší hloubky a pomáhají s orientací. Skleněné tvárnice zde nejsou jen dekorací, ale fungují jako jemný filtr světla a dodávají interiéru charakter.
Více k tématu
Materiálově je byt kombinací starého a nového. Přiznaný beton a skleněné tvárnice doplňuje světlé dřevo, keramické obklady a tlumené barevné akcenty. Parketová podlaha ve vzoru stromečku pak celý prostor sjednocuje a dodává mu klidný, soudržný výraz.

Je tu vidět, že rekonstrukce panelového bytu nemusí znamenat popření všeho původního. Tady se naopak na minulost navázalo. A architektka myslela i na budoucnost. „Užívání jednotlivých místností bude do budoucna možné změnit. Například se druhý dětský pokoj přesune do ložnice, ložnice do pracovny a v případě nutnosti se ze žluté koupelny stane mikro pracovna," plánuje Zuzana Bartasová.
- Autoři: Zuzana Bartasová
- Země: Česká republika
- Město: Praha
- Užitná plocha: 82 m2
- Fotograf: FRVR foto