Architektura / občanské stavby

Obytný soubor ve Slivenci: když drobné detaily mění celek k nepoznání

Bydlet ve vlastním domě se zahradou a kousek za velkým městem představuje pro mnohé splnění snu, symbol štěstí. Pro jiné se jedná o známku negativní suburbanizace a dlouhodobě neudržitelný princip, který vede pouze k bujení satelitních vesnic. Bez ohledu na to, jaký názor zastáváme, však existují příklady, které dokázaly rozporuplnou urbánní typologii propojit s kvalitní architekturou. Jedním z nemnoha takových je obytný soubor ve Slivenci od architektonické kanceláře RKAW.

Tomáš Čech , 23. 3. 2017

Městská část Slivenec leží asi 45 minut jízdy hromadnou dopravou z centra Prahy. Jestliže do ulic, jejichž zástavbu navrhla kancelář RKAW v čele s architektem Radkem Kolaříkem, dorazí laik, snadno nabude dojmu, že stojí v naprosto běžné zástavbě. Možná si dokonce povzdechne, jak stejně, snad až monotónně domy i prostředí působí. Avšak opak je pravdou. Ve skutečnosti zde lze nalézt mnoho detailů a prvků, byť na první pohled nenápadných, jež jsou výsledkem promyšleného architektonického uvažování a které celé území pozvedají a dodávají mu potřebnou kvalitu.

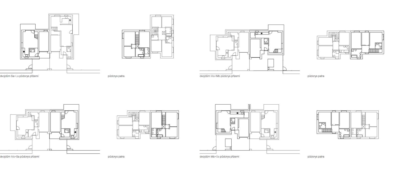
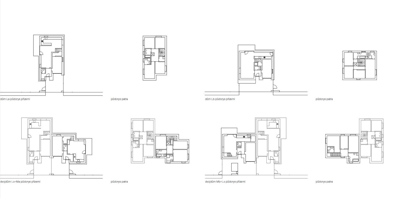
Urbanistická struktura navazuje na okolní původní zástavbu obce. Pozemky jsou však menší, než je obvyklé, a celý soubor je navíc přeťat pásem zeleně. Objevuje se zde také typologie domu, která byla kdysi poměrně častá, avšak dnes je spíše výjimkou – dvojdům. Díky tomu a také díky umístění objektů co nejblíže k obslužným komunikacím zůstávají zahrady přiměřeně prostorné, a to i přes omezené rozměry jednotlivých parcel. V pásech mezi cestami, v místech, kde spolu sousedí jen ploty, vzniká prostor pro větší vizuální propojení jedněch domů s druhými. Veřejný prostor mezi nimi tvoří jednoduchá komunikace bez chodníků, což přispívá bezpečnosti a posiluje obytný charakter území. Porůznu je navíc narušována zelení. Pečlivě vyřešeny a sjednoceny byly i pevné části plotů a skříně elektrorozvodů, jindy noční můra plánovačů veřejného prostoru.

Jak již bylo řečeno, objekty mohou působit poněkud monotónním dojmem. Pokud by tomu tak však opravdu bylo, celek by působil neutěšeným, těžkým a svazujícím dojmem. Obytný soubor je však prošpikován jemnými rozdíly, jež udržují rovnováhu mezi kompaktním působením souboru a jeho přirozenou různorodostí. Najdeme zde celkem deset kombinací velikostí a typů domů, domy samostatně stojící i dvojdomy. Rozmanitost je podpořena volbou různých barev a ještě umocněna rozdílnou hrubostí omítek. Po celém území se tak promyšleně střídají červená, žlutá, tmavě šedá, světle šedá a bílá barva.

Estetika objektů pracuje s různou velikostí a kompozicí okenních otvorů na fasádě. Použity jsou otvíravá okna i fixní zasklení. Barevnost rámů co nejvíce odpovídá omítce. Kompaktní objem skrývá zastřešení vstupů i garáží. Jsou to všechno prosté a přitom efektní prvky. Základ je poměrně jednoduchý – cihelné zdivo, kontaktní zateplovací systém, kombinace dřevěných a kovových otvorů. Místy je znát, že náklady hrály důležitou roli, architektonické řešení však zabraňuje pocitu lacinosti.

Ponechme teď stranou, jestli někomu forma satelitního bydlení vyhovuje nebo ne. Lidé se sem přestěhovali dobrovolně a většině z nich se jistě splnil jejich sen. Negativní jevy, které tuto formu často provázejí, jsou však v případě Slivence minimálně z části potlačeny. Jedná se o kompaktní celek s přiměřenou hustotou zástavby a v budoucnu nepochybně přirozeně sroste s okolím. Vznikl zde veřejný prostor i místa k setkávání. Architektura domů je kvalitní, vkusná a jistě bude rozumně stárnout. Na první pohled to nemusí být mnoho, ovšem na ten druhý se ukazuje, že jde o zásadní detaily. Je projekt ve Slivenci rehabilitací satelitního bydlení? Těžká otázka. Jedná se o kvalitní architekturu? Zcela určitě.

  • Ateliér: RKAW s.r.o.
  • Autoři: Radek Kolařík
  • Spolupráce: AED Project
  • Země: Česká republika
  • Stavebník: Abbey
  • Město: Praha 5 - Slivenec
  • Ulice, číslo: Granátová, Jantarová, Křišťálová, Malachitová, Růženinová

Nabídky práce

Mohlo by vás zajímat

Generální partner
Hlavní partneři