
Pragmaticky střídmá. Přístavba školy ve Studenci přináší vzdušné a prosvětlené místo pro vzdělávání
V podkrkonošské obci Studenec vznikla nová přístavba základní a mateřské školy, kterou zčásti navrhl legendární architekt druhé poloviny 20. století Karel Hubáček. Nová přístavba od ateliéru CHRAMA školu citlivě doplňuje o novou vrstvu současné architektury, jejíž gestem je umírněná střídmost vytvářející kvalitní prostory pro výuku.
EARCH.CZ , 5. 9. 2023
Hubáčkova prvotina
Školní budovy bývají především v menších obcích důležitými kulturními stavbami. Ať už svým umístěním v rámci obce, tak i samotnou architekturou. Škola je místem zprostředkování vědomostí, dovedností a vzdělání. Také proto by architektura školních budov měla v žácích probouzet zájem a přinášet prostory podněcující k učení, zkoumání, hledání.
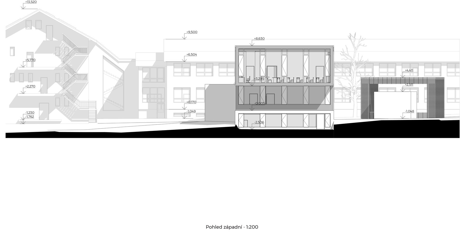
Podkrkonošská obec Studenec se nachází v Libereckém kraji mezi Špindlerovým mlýnem a Jičínem. Místní základní a mateřská škola je součástí většího sportovně-vzdělávacího areálu. Jednotlivé stavby v areálu vytváří strukturu polouzavřeného dvora s různými formami venkovních míst a zákoutí. Ze západní strany uzavírá pozemek strmý svah. Centrální hmota školy je orientovaná ze severu na jih. Autoři se koncepčně snažili přístavbou navázat na nejstarší část stavby, která je autorskou prvotinou architekta vysílače a hotelu Ještěd Karla Hubáčka.
Více k tématu
„Přístavba se snaží vzít si z jeho návrhu prvek bohatého prosvětlení chodeb i tříd, které má žákům dopřát pocit, že i když jsou ve škole, nemusí se v ní cítit nesvobodně či stísněně, uzavřeně, ale že jsou stále součástí okolí, na které se mohou do všech stran dívat. Je navržena co nejúčelněji, nejhospodárněji a nejpřehledněji, zejména ve smyslu využití plochy, prostoru a vnitřního uspořádání,“ upřesňují autoři.

Nová přístavba je k původní hmotě „nalepena“ kolmo ze západní strany, čímž vyváří tvar písmena F. Spojení dvou budov, nové a staré je vyřešeno elegantní lávkou v druhém podlaží, která se půdorysně zužuje. Tím dochází k zachování jednotné výšky přístavby, v celém objemu pak elegantní podchod pod stavbou, nepřerušující pohyb chodců a automobilů. Mírným zkosením střechy přístavby autoři docílili pozvolné a plynulé návaznosti mezi dvěma odlišnými typy střech.
Kontextuálně střídmá
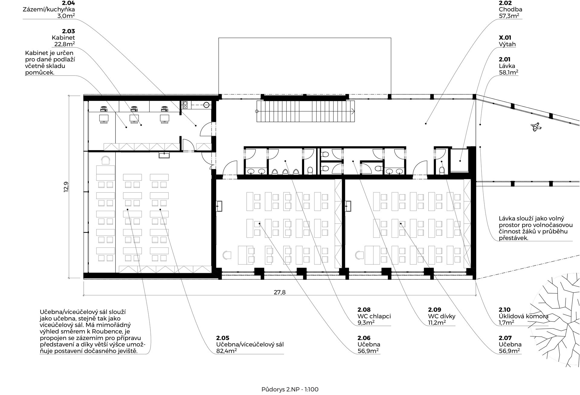
Dispozičně funguje přístavba jako dvojtakt s centrálním schodištěm s působivým detailem kruhového okna propojujícím schodiště se vstupní halou. Fasáda nové hmoty navazuje pravidelným členěním na původní stavbu. Vystupující betonová konstrukce vytváří její nový charakter a dodává stavbě současný střídmý výraz, zároveň však navenek podtrhuje tektoniku a konstrukční systém budovy. Červený odstín probarvené betonové konstrukce odkazuje na místní červený pískovec.

Čistým interiérům dominuje ve společných prostorách pohledový beton, v prostorách tříd naopak světlé odstíny dřevěného obložení, opět typického pro místní lokalitu, které vytvářejí jak z pohledu akustiky, tak z pohledu vizuálního přívětivé prostředí pro výuku. Díky velkoformátovým oknům prosvětlujícím místnosti na celou plochu působí třídy velice vzdušně a otevřeně.
Spojující lávka společně s přilehlou chodbou slouží jako velkorysé foyer, které je díky velkoformátovému prosklení velmi příjemně prosvětleno. Zároveň uživatelům poskytuje výhledy do areálu školy a okolní přírody. Díky spojující lávce a výtahu, se navíc druhé patro staré budovy stává bezbariérově přístupným.
Schopná transformace
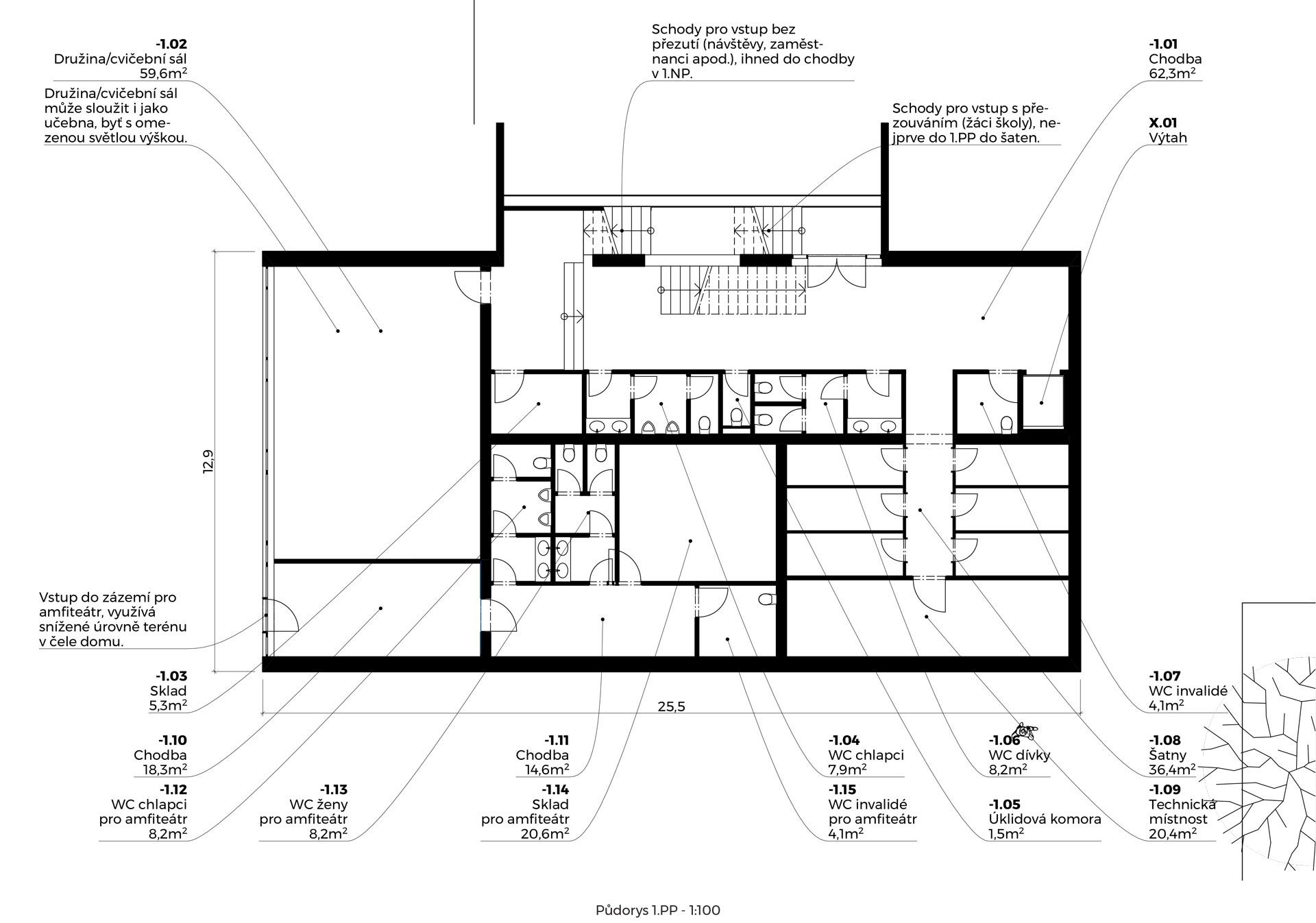
Ve druhém patře se na konci přístavby nachází učebna, která je schopna transformovat se do víceúčelového sálu pro dětská divadla a představení. Důležitost tohoto provozu je podtržena předstupující hmotou, vytvářející arkýř, rámující nevšední výhled na Roubenku. Provozní „vychytávkou“ je propojení s vedlejší učebnou, která v rámci představení slouží jako převlékárna a maskérna.

I z pohledu akustiky je velký sál dobře promyšlen. Obsahuje několik akustických prvků, pro různé doby dozvuku a tím je schopen se přizpůsobit široké škále akcí od vyučování přes divadlo nebo koncert. Budova tak slouží nejen pro účely školy, ale jako kulturní zázemí pro nespočet dalších kulturních akcí obce Studenec.
Nová přístavba základní a mateřské školy Studenec architektů Adama Ciglera a Martina Junka pokorným způsobem navazuje na stávající kontext nejen školního areálu a jeho budov, ale také kontext krajiny podkrkonoší celkově. Současným, střídmým a pokorným výrazem vstupuje mezi své okolí a namísto zbytečné architektonické exhibice logicky doplňuje původní strukturu, a vytváří velmi příjemné a kvalitní prostředí pro školní léta zdejších žáků a učitelů. Nic víc, nic míň.

- Autoři: Adam Cigler, Martin Junek
- Ateliér: Chrama
- Země: Česká republika
- Město: Studenec
- Projekt: 2018
- Realizace: 2021