
Vypadá jako galerie, ale studuje se tu „výtvarka“. Do nové budovy v Brně se chodí učit budoucí učitelé.
Pedagogická fakulta Masarykovy univerzity v Brně má nové výtvarné ateliéry. Jsou bílé, světlé a dobře se v nich soustředí.
Viktorie Majoberová , 17. 9. 2024
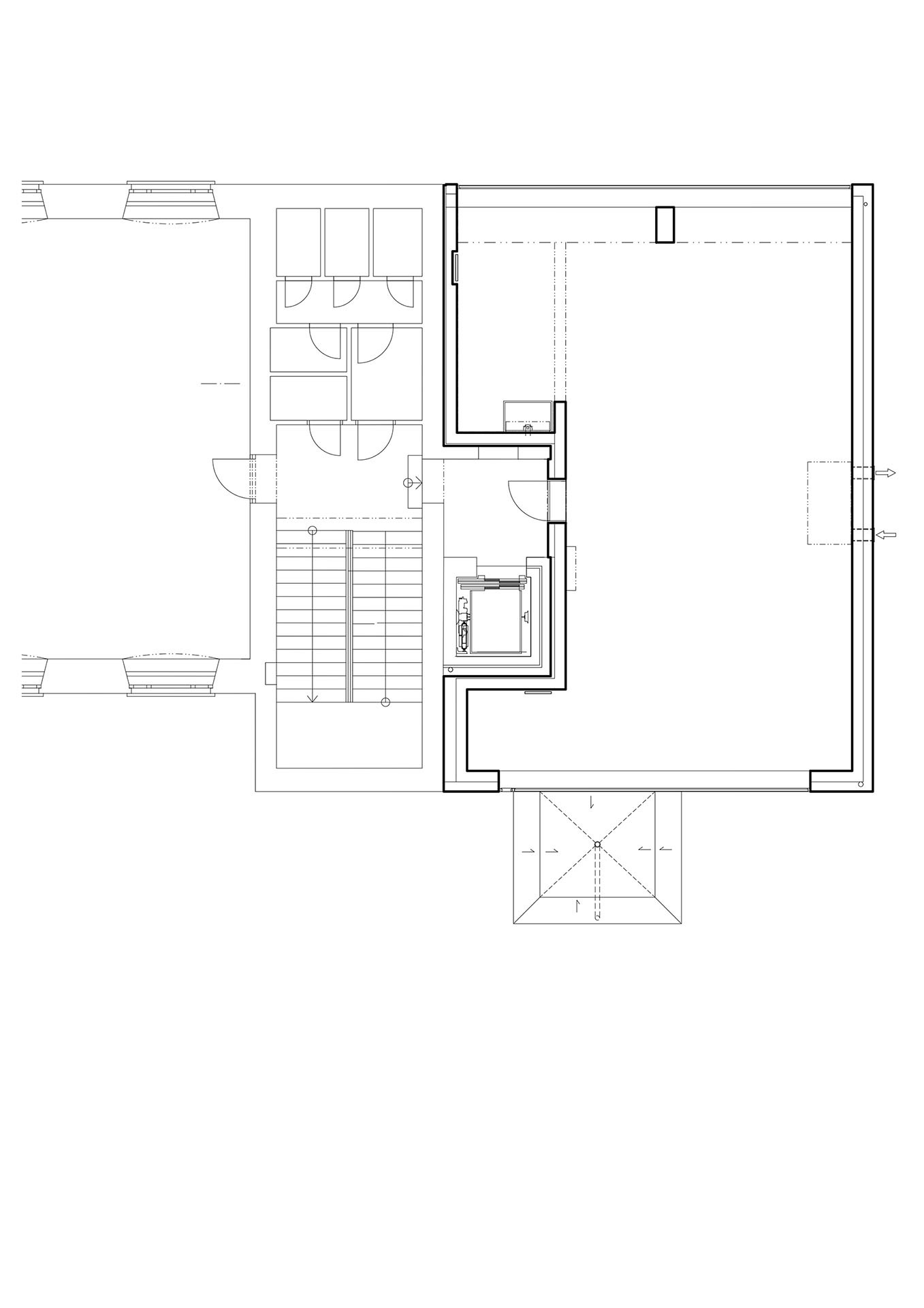
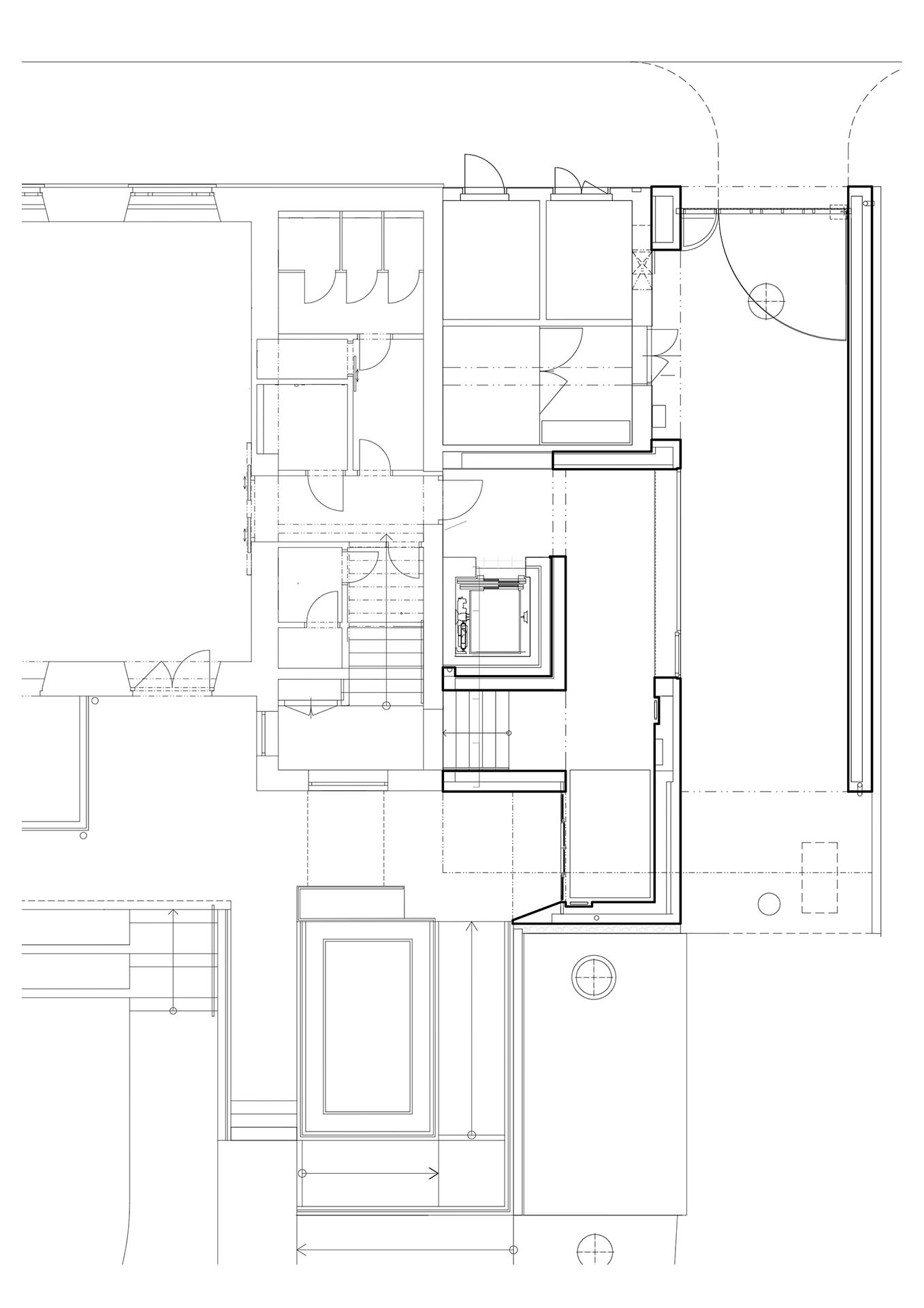
Pedagogická fakulta Masarykovy univerzity se dlouhodobě potýkala s nedostatkem kvalitních výukových prostor pro obor výtvarné výchovy. A tak se škola rozhodla oslovit ateliér dílna, kteří se pustili do návrhu přístavby nových ateliérů. Vzniknul zde prostor, který nabízí zázemí pro klasické uměleckoprůmyslové obory i pro nová média.

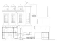
Nová budova kontrastuje s přilehlou historickou zástavbou. A to především svým tvarem. Ten je jednoduchý, pravoúhlý, ostrý. Podle autorů to do místa přináší nový dynamický náboj. Pro kolemjdoucí je možná překvapivé, že se uvnitř nachází výukový prostor. Přístavba totiž působí jako galerie moderního umění. „Tento design vytváří zajímavý dialog mezi neoklasicistními budovami okolí a velkorysými, kompozičně propracovanými ortogonálními tvary nové budovy,“ komentuje studio dílna.
Bílá venku, bílá uvnitř
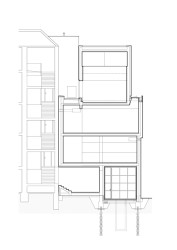
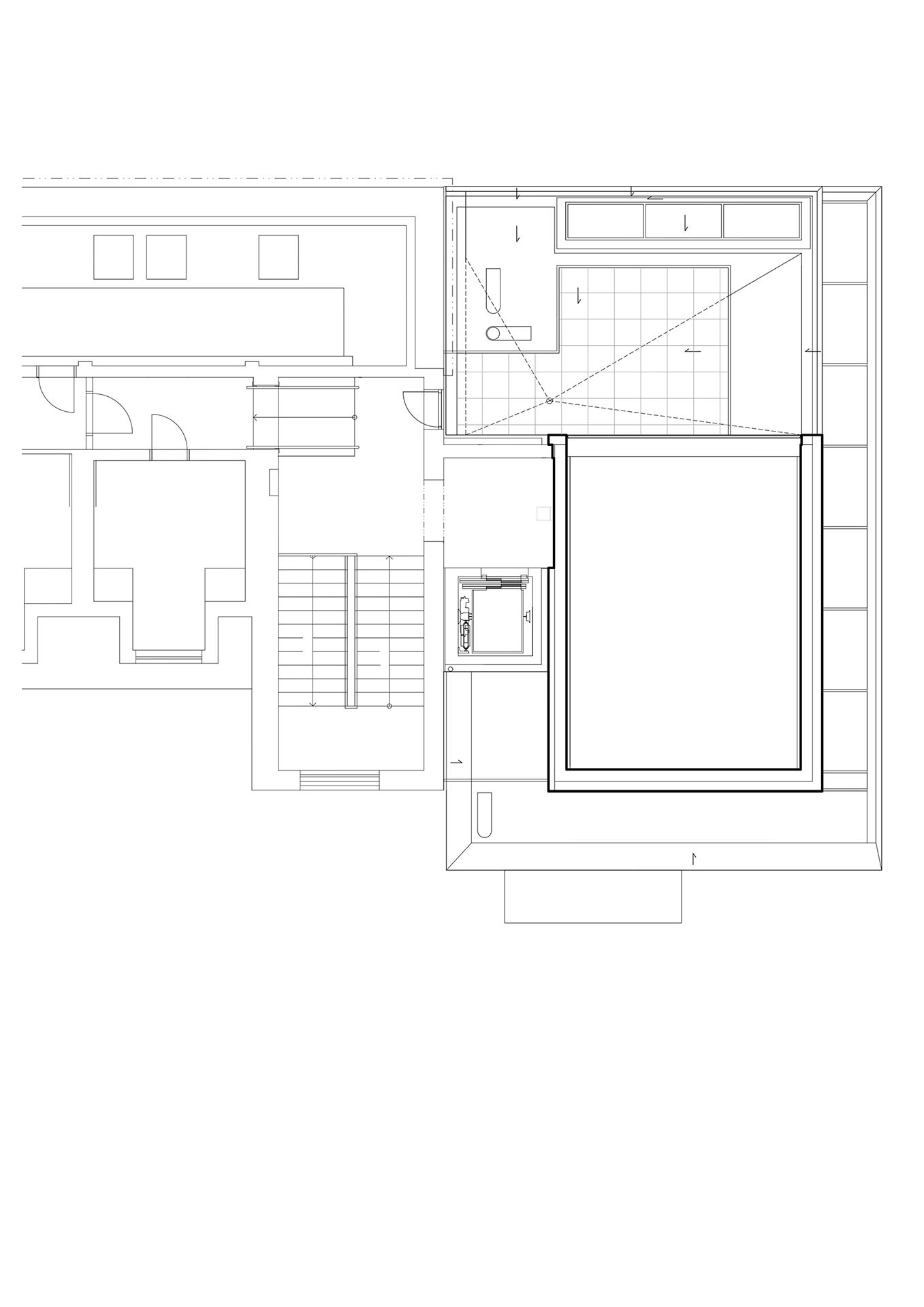
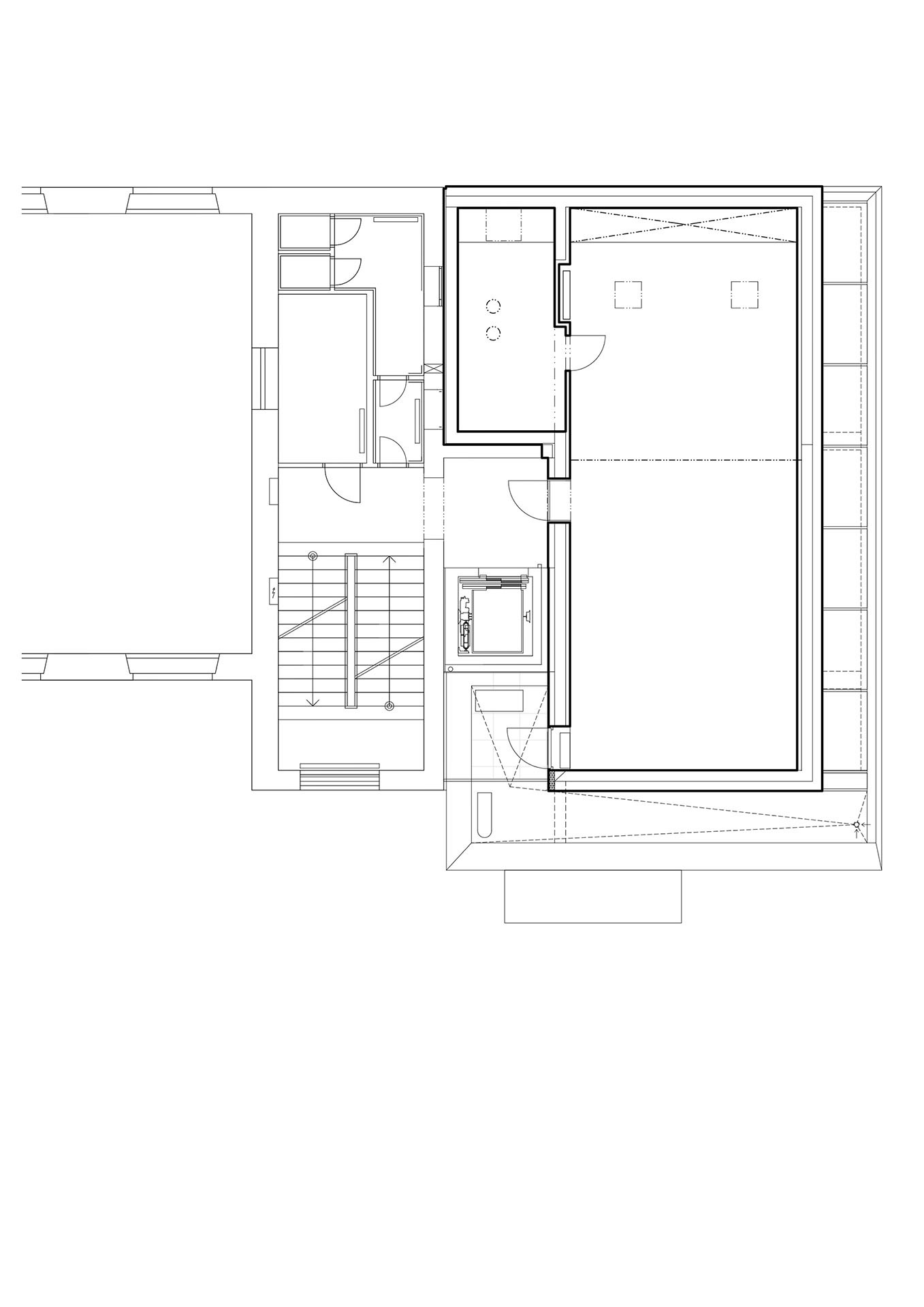
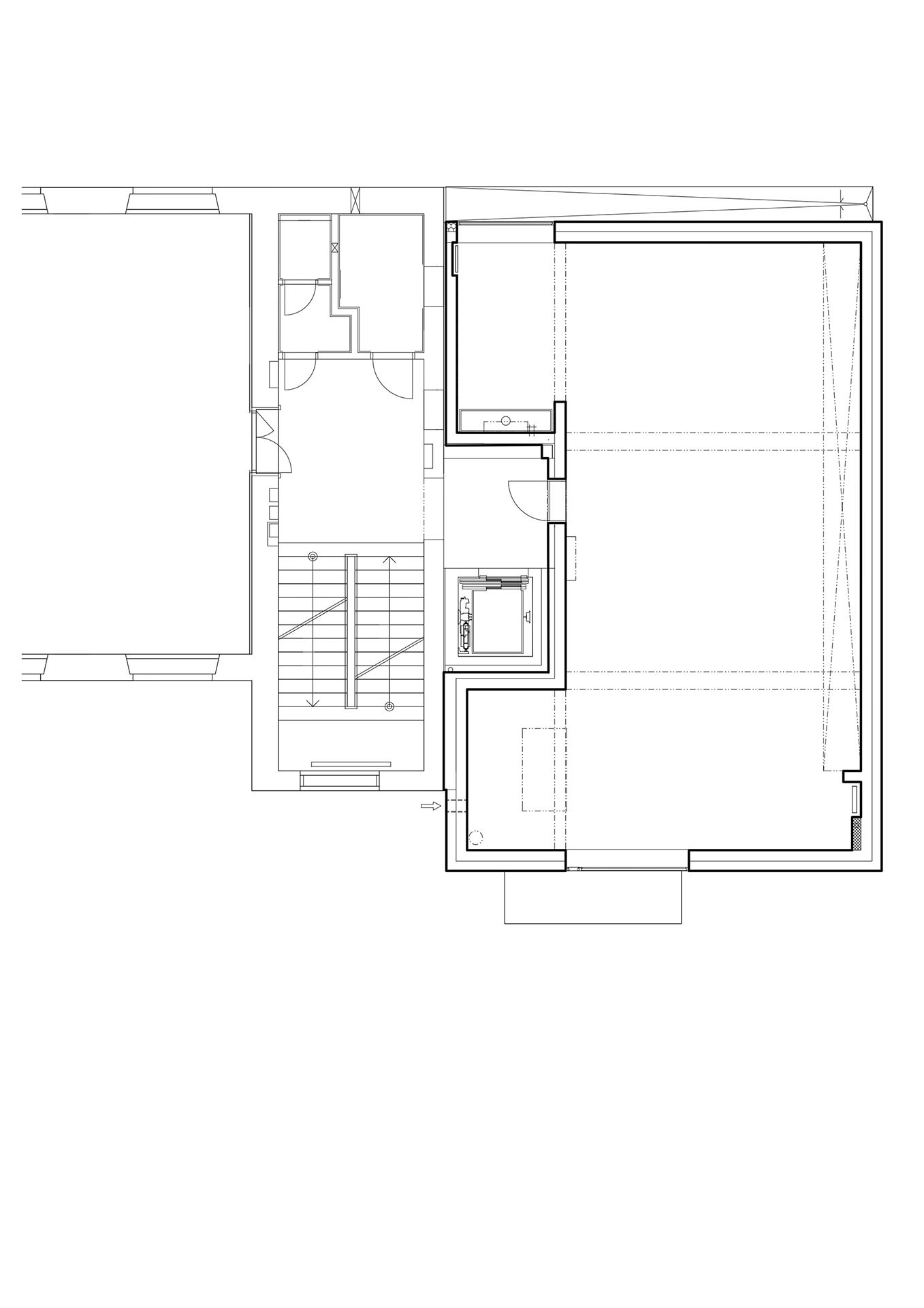
V přístavbě najdeme místnosti s různou specializací. „Jsou zde dílny, ve kterých je možné provádět techniky jako řezání, vrtání i svařování, a také ateliér malby s kvalitním ateliérovým osvětlením. V posledním podlaží se nachází ateliér multimédií, který má vysoký strop a může být kompletně zatemněn. Tento prostor je navržen jako white/black box s proměnlivým podsvícením, což umožňuje jeho variabilní využití pro různé typy multimediálních projektů.“ popisují architekti.

Celý interiér je prostorný a světlý. Všechny místnosti jsou intenzivně osvětleny a kompletně vymalovány bílou barvou. To je prý dobré především pro kreativitu a soustředění studentů. Také vnitřní betonové plochy sjednocuje bílá výmalba a epoxidový nátěr, což přispívá k jednotnému a svěžímu vzhledu prostoru. Celkový světlý a trochu sterilní dojem z budovy podtrhuje hladká bílá broušená omítka. Posledním jemným detailem jsou velkoplošná okna, která jsou bezrámově zasklená.
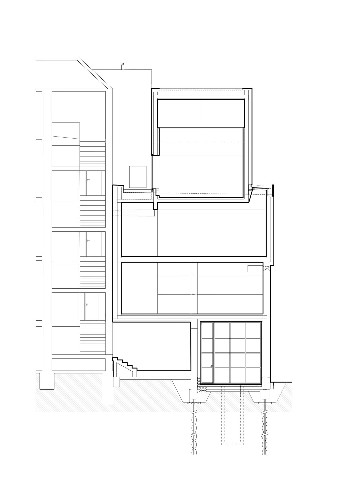
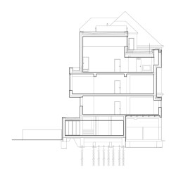
Na místě stavby se původně nacházely tři objekty z různých období: pavilon bývalé střelnice katedry branné výchovy, trafostanice a nově přidaný výtah obsluhující sousední historickou budovu. To vytvořilo poměrně náročné podmínky a celou řadu limitujících faktorů, které bylo potřeba zohlednit a dodržet.
Bylo potřeba zachovat plný provoz rozvodné stanice během výstavby. „Proto jsme zvolili kompaktní monolitickou železobetonovou konstrukci, která umožnila překlenout stanici a minimalizovat vliv na statiku štítové stěny historického objektu a tubusu výtahu.“ říká dílna.
Více k tématu
Také bylo potřeba zachovat hygienický standard okolních staveb. Ale především zajistit dostatečné denní osvětlení do vnitřních prostor, které nemohly mít boční okna. Autoři posunuli výšku podlaží a do stavby umístili střešní světlíky, které přivádí dostatek světla.

„Velmi pozitivní zkušeností byl maximálně otevřený přístup zadavatele, který neváhal zvolit netradiční architektonické řešení, jež se vymyká běžnému designu vzdělávacích institucí a spíše připomíná prostorovou koncepci galerie. Pedagogická fakulta tak získala nejen kvalitní architekturu za přijatelnou cenu, ale i prostředí, které odpovídá jejím ambicím a potřebám. Skutečnost, že studenti tráví v ateliérech daleko více času, než je nezbytné pro výuku, považuji za největší pochvalu.“ shrnuje svoji práci ateliér dílna.
- Autoři: Michal Palaščak
- Ateliér: dílna
- Spolupráce: Karolína Burešová, Jan Flídr
- Země: Česká republika
- Město: Brno
- Adresa:: Poříčí 7, 603 00 Brno
- Projekt: 2022
- Realizace: 2023
- Zastavěná plocha: 141 m²
- Hrubá podlahová plocha: 320 m²
- Užitná plocha: 300 m²
- Plocha pozemku: 141 m²
- Náklady: 23 mil. CZK
- Investor: Masarykova univerzita
- Fotograf: Studio Flusser
- Fasáda: Sto
- Bezrámové zasklení: Obsidian
- okna: Schüco
- Světla: One Light
- Nábytek: Bora
- Koncové prvky: Hager
- Vzduchotechnika: Multivac
- Chlazení: LG