
Úžasné a flexibilní prostředí
Ateliér WilkinsonEyre vytvořil během let 1996-1999 výzkumné pracoviště a továrnu pro Dyson HQ. V práci však pokračoval dalších dvacet let a výsledkem je areál o ploše 12 000 m², kde je možné najít centrum pro výzkum a vývoj (D9), kavárnu (Lightening Café) i víceúčelové sportovního centrum (The Hangar).
EARCH.CZ , 15. 9. 2017
Tyto tři budovy jsou nejnovějším přírůstkem rozvíjejícího se industriálního projektu firmy Dyson. Jde o vytvoření „města“ o třech tisících zaměstnancích a s 129 výzkumnými laboratořemi. Měl by vzniknout firemní kampus pro inženýry, ale i pro studenty, kteří zde mohou zůstat na dlouhodobější stáž.
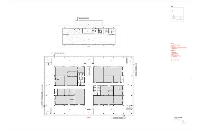
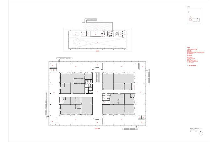
Centrum pro výzkum a vývoj (D9) je koncipovaný jako skleněný pavilon, který volně přechází do krajiny; zvenčí tedy funguje jako zrcadlo okolní krajiny, zevnitř pak dává pocit bezpečí a pohodlí pro pracovníky. Centrální atrium je navrženo tak, aby vedlo denní světlo do dvou pater. Místnosti umožňují pohyblivé umístění stolů i volné využití laboratoří.
Pracovní prostory jsou většinou umístěny po obvodu, což umožňuje dostatečný přísun denního světla. Laboratoře se nachází v srdci budovy. Zaměstnanci všech typů pracovních prostorů působí spokojeně, mimo jiné i díky zajímavým a dobře propracovaným detailům domů.
Kavárna v další budově je často navštěvována hlavně během doby oběda, a sportovní centrum také dokázalo, že může pracovníkům zpříjemnit den. Je velmi oblíbené a nabízí širokou škálu aktivit.
Projekt ateliéru je důkazem dobré reakce architektů z WilkinsonEyre na neustále se vyvíjející globální značku Dyson.
- Ateliér: Wilkinson Eyre Architects
- Země: Velká Británie
- Město: Malmesbury
- Realizace: 2016