
Víkendový dům Zilvar
Pokud hledáte nspiraci pro víkendový domek vyšší kvality, který by byl zároveň ohleduplný vůči přírodě a byl s ní v harmonii, pak vás nepochybně bude zajímat právě tento projekt ateliéru ASGK.
Martin Pechanec , 21. 5. 2012
Architektonické řešení
Objekt je navržen do stávajícího zastavitelného území malé obce ve východních Čechách. Nachází se na konci uliční řady a od otevřené krajiny jej odděluje jen několik vzrostlých stromů. Vegetace, přirozené jezírko na zahradě i okolní vesnická zástavba vedly k návrhu jednoduchého objektu (prostoru) s variací na šikmé střechy.
Materiálově dům nevyčnívá, splývá s okolím, neupozorňuje na sebe, poskytuje příjemné prostředí svým obyvatelům a jejich dětem. Obklad z modřínových palubek s postupem času přirozeně stárne.
Na fasádě dochází ke hře čtvercových oken, některých otvíravých, některých skrytých za dřevěnými palubkami a poskytujících rozptýlené osvětlení, případně v interiéru prostupující knihovnou.
Dům slouží převážně k odpočinku, četbě a jako útočiště dětí majitelů.
Dispoziční řešení
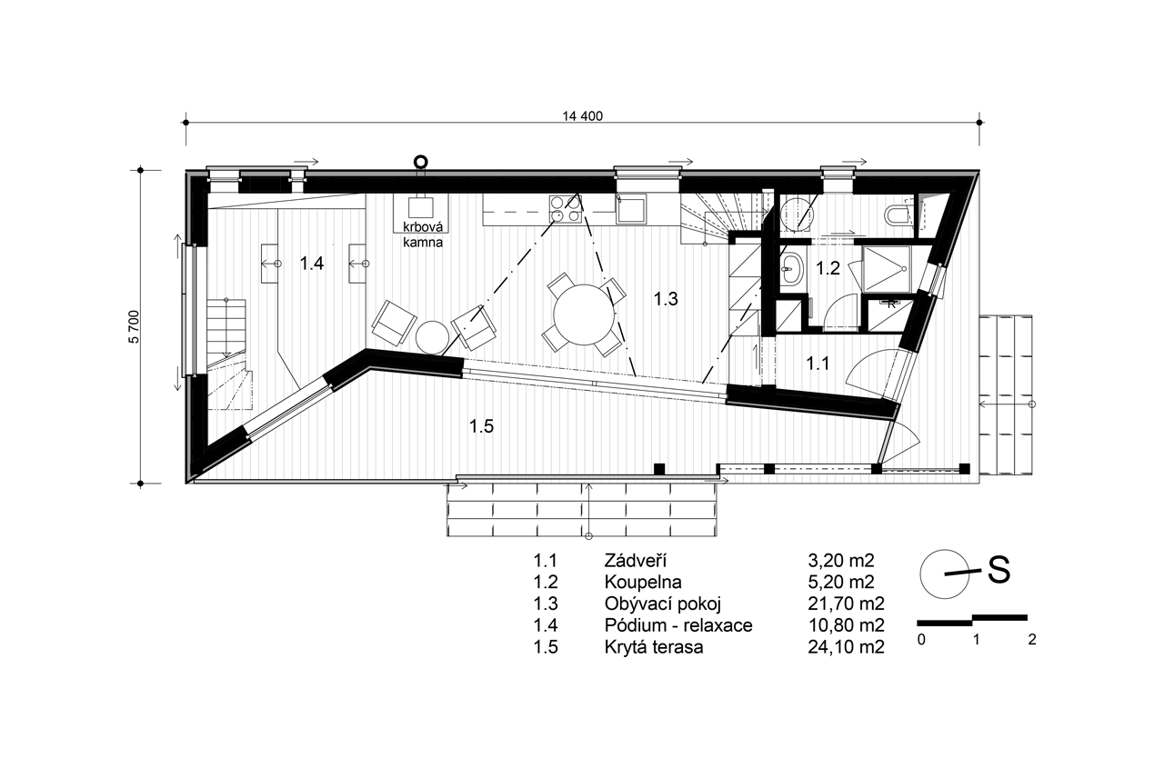
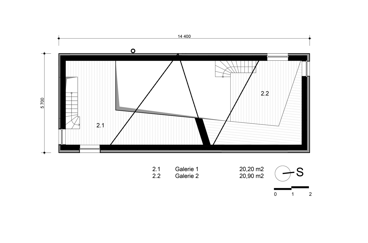
V objektu jsou situovány vstupní prostor s napojením na koupelnu a obytný prostor domu, ložnice jsou řešeny odděleně v prostorách zvýšených galerií. Obytný prostor společně s kuchyňským koutem tvoří jeden otevřený celek, který je členěn pouze nábytkem a v jižní části domu zvýšeným pódiem, které slouží jako relaxační zóna s knihovnou a výhledem do zahrady. Součástí tohoto prostoru jsou i schodiště vedoucí na galerie. Z přízemí je přístup na venkovní krytou terasu, palubková podlaha je stejná vně i uvnitř a dochází tak k optickému propojení exteriéru s interiérem. Celý dům je s exteriérem propojen velkými prosklenými plochami – převážně s pevným bezrámovým zasklením, která zároveň zajišťují dostatečné prosvětlení interiéru.
Konstrukční řešení
Konstrukce je navržena sloupková z KVH profilů. Z vnitřní strany jsou obvodové nosné stěny opláštěné deskami OSB v tl. 18mm, z vnější strany pak dřevovláknitými deskami. Skladba stěny je difúzně otevřená.
Střešní plášť je navržen sbíjený fošnový, opláštěný OSB a dřevovláknitými deskami, stejně jako obvodové stěny.
Vnitřní nosné stěny z KVH sloupků jsou opláštěné OSB deskami oboustranně. Nenosné příčky jsou řešeny v systému SDK v tl. 100 mm jako jednoduché dvojitě opláštěné. Do vlhkých provozů jsou použity SDK desky vlhku odolné.
Ve stěnách je navržena izolace z minerální vaty v tloušťce 18cm společně s 4cm DVD desky na vnějším opláštění. Do střechy je pak vloženo také 18cm stejné izolace, vnější opláštění 8cm DVD desek a vnitřní opláštění 4cm rovněž DVD desek. V podlaze přízemí je navržena izolace v celkové tloušťce 20cm. Výplně otvorů jsou navrženy v dřevěném profilu
s izolačním trojsklem a plněním vzácným plynem. Výplně jsou navrženy v bezrámovém provedení.
Fasáda je navržena s provětrávanou mezerou. Pohledově je tvořena fasádními palubkami – povrchová úprava lazurou. Obložení přechází plynule ve střešní rovinu a vytváří krytí pro foliovou hydroizalaci střechy.
Vnitřní stěny a stropy jsou převážně obloženy překližkovými deskami, stěny v koupelnách a na WC jsou obloženy keramickým obkladem. Dřevěná palubková podlaha přechází plynule na terasu. V koupelně bude keramická dlažba, na galeriích lakované palubky.
Energetická koncepce
Objekt je navržen v nízkoenergetickém standardu, obvodové konstrukce jsou v difúzně otevřené skladbě. Do rámové konstrukce je vkládána minerální izolace, výplně otvorů jsou navrženy v dřevohliníkovém rámu s izolačním trojsklem. Vytápění objektu primárně zajišťují sálavé infrapanely, jako doplňkové jsou pak navržena krbová kamna. Pro přípravu TUV je navržen bivalentní zásobník s možností napojení solárních kolektorů. Hlavní obytný prostor je prosklený velkými plochami pro využití solárních zisků v zimním období. V letním období jsou prosklené plochy kryty zastřešením terasy.
Více k tématu
- Autoři: Gabriela Kaprálová, Peter Hričovec
- Ateliér: ASGK Design
- Spolupráce: Vítek Donát, Andrea Betinová
- Země: Česká republika
- Generální dodavatel: TESAŘI OSÍK
- Město: Nechanice
- Ulice, číslo: Lodín
- PSČ: 503 15
- Datum projektu: 2011
- Realizace: 2013
- Užitná plocha: 83.00m2
- Materiál: dřevo
- Foto ©: Petra Hajská