Chata s kulatým oknem a výhledy na lesy Šumavy
Před přestavbou se chalupa okolí uzavírala. Na místě totiž hodně fouká a dovnitř zalézala zima. Teď to ale vyřešila izolace, stavba dostala prosklenou stěnu, prostoupilo ji světlo a lépe se vytápí.
Adéla Vaculíková , 28. 1. 2025
Tato chata vznikla přestavěním rodinného domu s hospodářským zázemím. Z původní stavby si zachovala půdorys ve tvaru písmene L, hmotu a robustní kamennou podezdívku. Zbytek je nový, avšak poučený místem. „Použité materiály vychází z historického objektu, ve kterém bylo použity dřevo, kámen a omítka,“ říká k tomu architekt Karel Harazim.

Stavba dostala novou provětrávanou fasádu z modřínových prken. Podobnou má i její soused – novostavba. Opodál pak stojí ještě jedna starší šumavská chalupa, s tou rekonstruovaný dům zase sdílí celkový obrys, do velká míry se na něm podílí tvar střechy s výraznými přesahy. Původně ji pokrývaly eternitové šablony, dnes je to falcovaný plech.
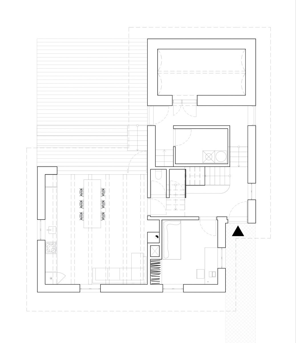
Chata stojí v mírném svahu, na který reaguje rozdílným usazením svých dvou křídel. V tom níže položeném, které má přímý kontakt s terénem, původně fungovala hospodářská část. Dnes v sobě obsahuje dílnu, technickou místnost nebo vinný sklípek. Vyjít se odtud dá na novou dřevěnou terasu.
Obytné pokoje jsou posazené výš, otevírají se tak z nich výhledy na okolní lesy a pastviny. Hlavní obytná místnost s kuchyní se k nim obrací celou prosklenou stěnou. Obsahuje také dveře, a tak se tudy dá po venkovních schodech seběhnout přímo do zahrady.

„Světlo v domě bylo jedním z důležitých témat. Parcela je velmi větrná, a zvláště na podzim a v zimě velice nevlídná, proto se také starý dům směrem k západní návětrné straně uzavíral. Nový dům naopak velkoryse využívá bezrámových skleněných ploch,“ říká ještě Karel Harazim a dodává, že i tak se dům podařilo udělat energeticky úsporný. Pomohlo mu k tomu celkové zateplení. Primárním zdrojem energie je tepelné čerpadlo, přitápět se ale dá taky krbem na dřevo. Do obývacího pokoje to vnáší útulnou a hřejivou atmosféru.
Více k tématu
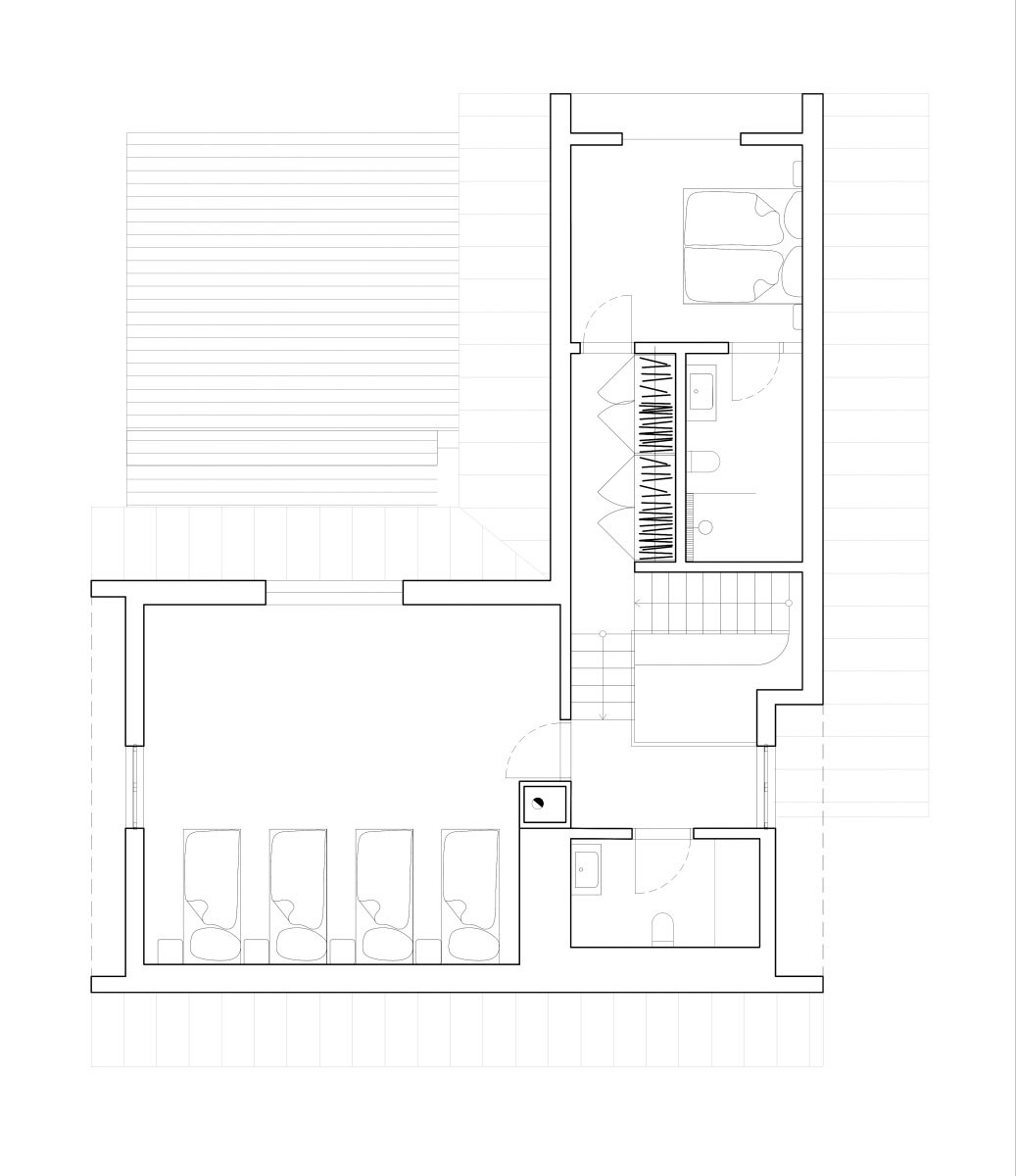
Ložnice a dětský pokoj jsou situovány pod střechu. Znamená to pro ně, že pokoje obestupují zkosené stěny, mají ale taky speciální okna. Dětský pokoj pásové ve vikýři a ložnice kulaté, v němž se dá posedět s knihou. Zevnitř působí útulně a zvnějšku přitáhne pozornost. To ostatně platí pro celou chatu, ve které bylo potřeba dobře vyvážit staré a nové.
- Ateliér: Harazim Karel Architektura
- Autoři: Karel Harazim
- Země: Česká republika
- Město: Lipka, Vimperk
- Realizace: 2023
- Fotograf: Jan Pernekr
- Generální dodavatel: Robert Ollé (dům na klíč)