zerozero - VIOLA centrum pro umenie

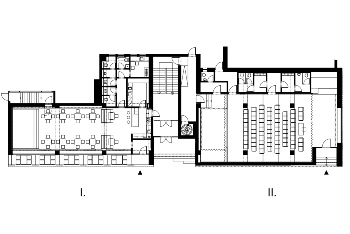
Kultúrny priestor Viola sa nachádza v bezprostrednej väzbe na historické jadro Prešova, v parteri polyfunkčného objektu z 90-tych rokov. V prvej etape v roku 2016 sme adaptovali priestory bývalej pizzerie na literárnu kaviareň a následne v roku 2018 boli priestory bývalej prevádzky FAX COPY rekonštruované na multifunkčnú sálu slúžiacu na divadelné predstavenia a koncerty. Centrum pre umenie spravuje občianske združenie zameriavajúce sa na prácu so školákmi, kultúrne a vzdelávacie podujatia rovnako ako výstavy. Každý z priestorov má samostatný vstup z ulice Tkáčskej, zabezpečujúci im určitú autonómnosť, súčasne oba priestory pôsobia vo vzájomnej synergii. Literárna kaviareň je priestorovo definovaná troma elementmi: barový box, knižnica a pódium, ktoré sú prevedené v prírodnej preglejke. Drevený bielený obklad stien komunikuje s dreveným bieleným lamelovým podhľadom zabezpečujúcim akustiku. Podlaha je kombináciou kvalitného odolného koberca a brúseného betónu. Osvetlenie je kombináciou zavesených montúr s elementárnymi žiarovkami a LED pásov.
Exteriér generujúci novú terasu je tvorený kombináciou vertikálneho dreveného roštu z termodreva a obkladu z cemento-trieskových dosák. V druhej etape realizovaná sála je riešená novovytvorenou eleváciou s pevným sedením organizovaným v 7-mich radoch. Prakticky monochromatické riešenie interiéru vyplynulo s uvedomenia si toho, že priestor je len pozadím pre „pestrofarebnú“ produkciu. Steny sú riešené dreveným na čierno moreným obkladom s vertikálnou štruktúrou, zabezpečujúcim akustickú kvalitu priestoru. Minimálny vstupný priestor so šatňou sa veľkorysým oknom otvára do Jarkovej ulice. Podlahy sú kombináciou odolných kobercov a brúseného betónu. Blok hygienického zázemia je riešený monochromaticky v kontrastnej žltej farbe. Exteriér je pokračovaním prvej etapy a svojou materialitou definuje nanovo parter polyfunkčného objektu.
- Autoři: Irakli Eristavi, Pavol Šilla, Juraj Červený
- Ateliér: zerozero
- Spolupráce: Dominika Hricová, Ondrej Jurčo, Martin Ratkoš
- Země: Slovensko
- Město: Prešov
- Ulice, číslo: Tkáčska
- Realizace: 2018
- Užitná plocha: 348.00m2
Související projekty
Související architekti
Související ateliéry a firmy
Mohlo by vás zajímat
















