Martin Skoček - Dom V

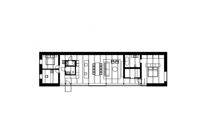
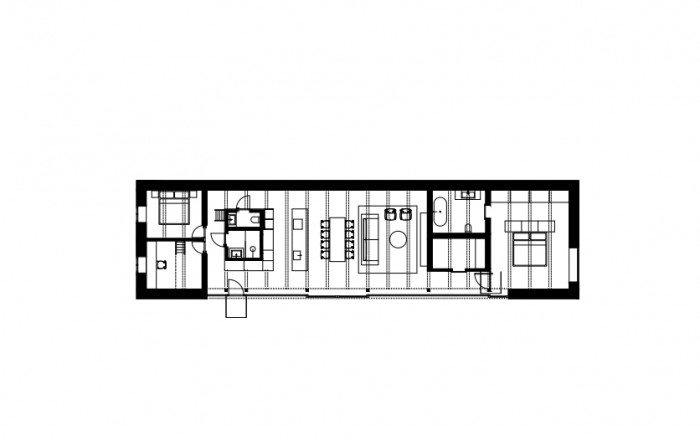
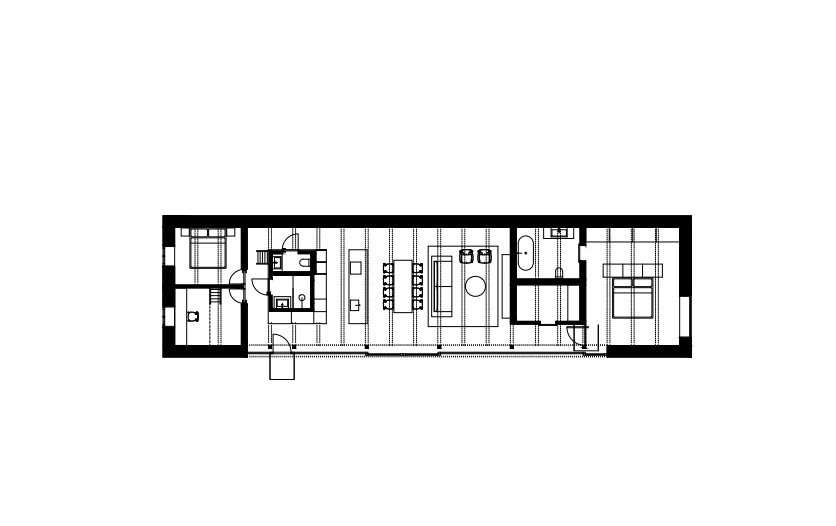
Dom svojou líniovou hmotou a priečelím nadväzuje na tradičnú vidiecku zástavbu okrajovej časti Bratislavy. Postavený je na mieste pôvodného rozobraného domu, z pôvodného priznaného režného muriva, ktoré tvorí aj jeho hlavnú interiérovú charakteristiku. Samotné členenie domu je inšpirované trojdielnym slovenským domom kde centrálnym priestorom sa stáva „pitvor” orientovaný do záhrady, ktorá je jeho neoddeliteľnou súčasťou. Výrazným konštrukčným prvkom je aj tvarovanie krovu, ktoré umožňuje prístup východného svetla pomocou svetlíkov tak, aby nenarúšal pohľadovú kontinuálnu plochu strechy zo záhrady.
- Autoři: Martin Skoček
- Spolupráce: Lucia Uhnáková, Marián Krajči, Jánoš Kállay
- Země: Slovensko
- Město: Bratislava - Vajnory
- Datum projektu: 2016
- Realizace: 2019
- Užitná plocha: 156.00m2
- Zastavěná plocha: 183.00m2
- Zahradní architektura: Labak
Související projekty
Související architekti
Mohlo by vás zajímat

1/30

Dom V, Martin Skoček
Foto: Matej Hakár
2/30

Dom V, Martin Skoček
Foto: Matej Hakár
3/30

Dom V, Martin Skoček
Foto: Matej Hakár
4/30

Dom V, Martin Skoček
Foto: Matej Hakár
5/30

Dom V, Martin Skoček
Foto: Matej Hakár
6/30

Dom V, Martin Skoček
Foto: Matej Hakár
7/30

Dom V, Martin Skoček
Foto: Matej Hakár
8/30

Dom V, Martin Skoček
Foto: Matej Hakár
9/30

Dom V, Martin Skoček
Foto: Matej Hakár
10/30

Dom V, Martin Skoček
Foto: Matej Hakár
11/30

Dom V, Martin Skoček
Foto: Matej Hakár
12/30

Dom V, Martin Skoček
Foto: Matej Hakár
13/30

Dom V, Martin Skoček
Foto: Matej Hakár
14/30

Dom V, Martin Skoček
Foto: Matej Hakár
15/30

Dom V, Martin Skoček
Foto: Matej Hakár
16/30

Dom V, Martin Skoček
Foto: Matej Hakár
17/30

Dom V, Martin Skoček
Foto: Matej Hakár
18/30

Dom V, Martin Skoček
Foto: Matej Hakár
19/30

Dom V, Martin Skoček
Foto: Matej Hakár
20/30

Dom V, Martin Skoček
Foto: Matej Hakár
21/30

Dom V, Martin Skoček
Foto: Matej Hakár
22/30

Dom V, Martin Skoček
Foto: Matej Hakár
23/30

Dom V, Martin Skoček
Foto: Matej Hakár
24/30

Dom V, Martin Skoček
Foto: Matej Hakár
25/30

Dom V, Martin Skoček
Foto: Matej Hakár
26/30

Dom V, Martin Skoček
Foto: Matej Hakár
27/30

Dom V, Martin Skoček, axonometrie
28/30

Dom V, Martin Skoček, půdorys
29/30

Dom V, Martin Skoček, řezy
30/30