Chládek architekti - Rodinný dům Zlín, Boněcko

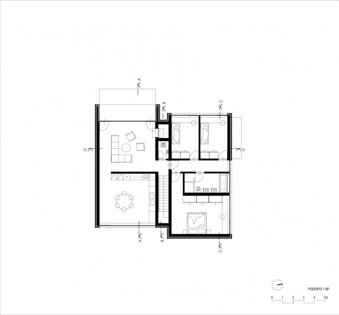
Protáhlá parcela situována na rozhraní zahrádkářské kolonie a původní zástavby rodinnými domy se svažuje k severozápadu a nabízí výhled na protější zalesněný horizont a východní okraj města. Osazení domu využívá přirozený průběh terénu a rozděluje jeho provoz do tří samostatných celků.
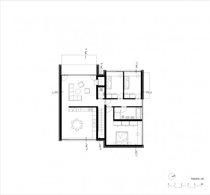
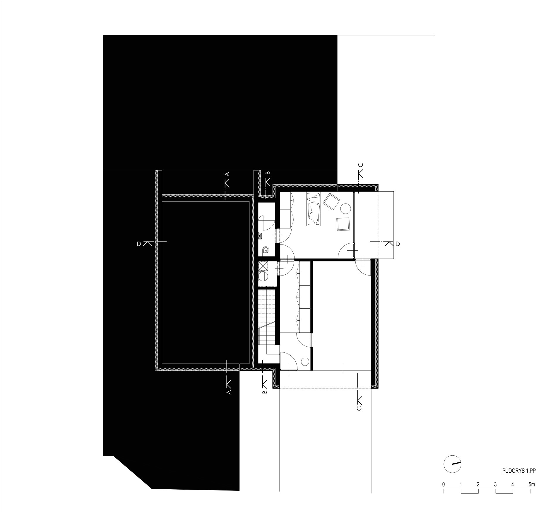
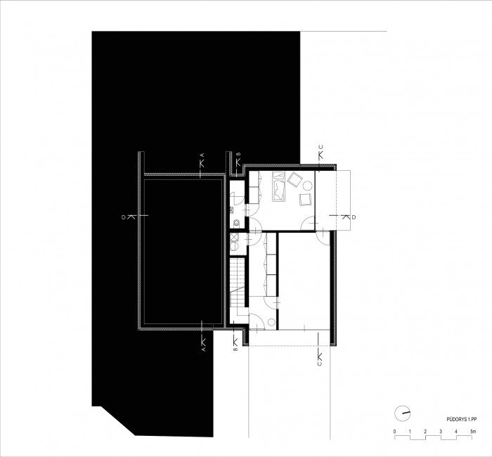
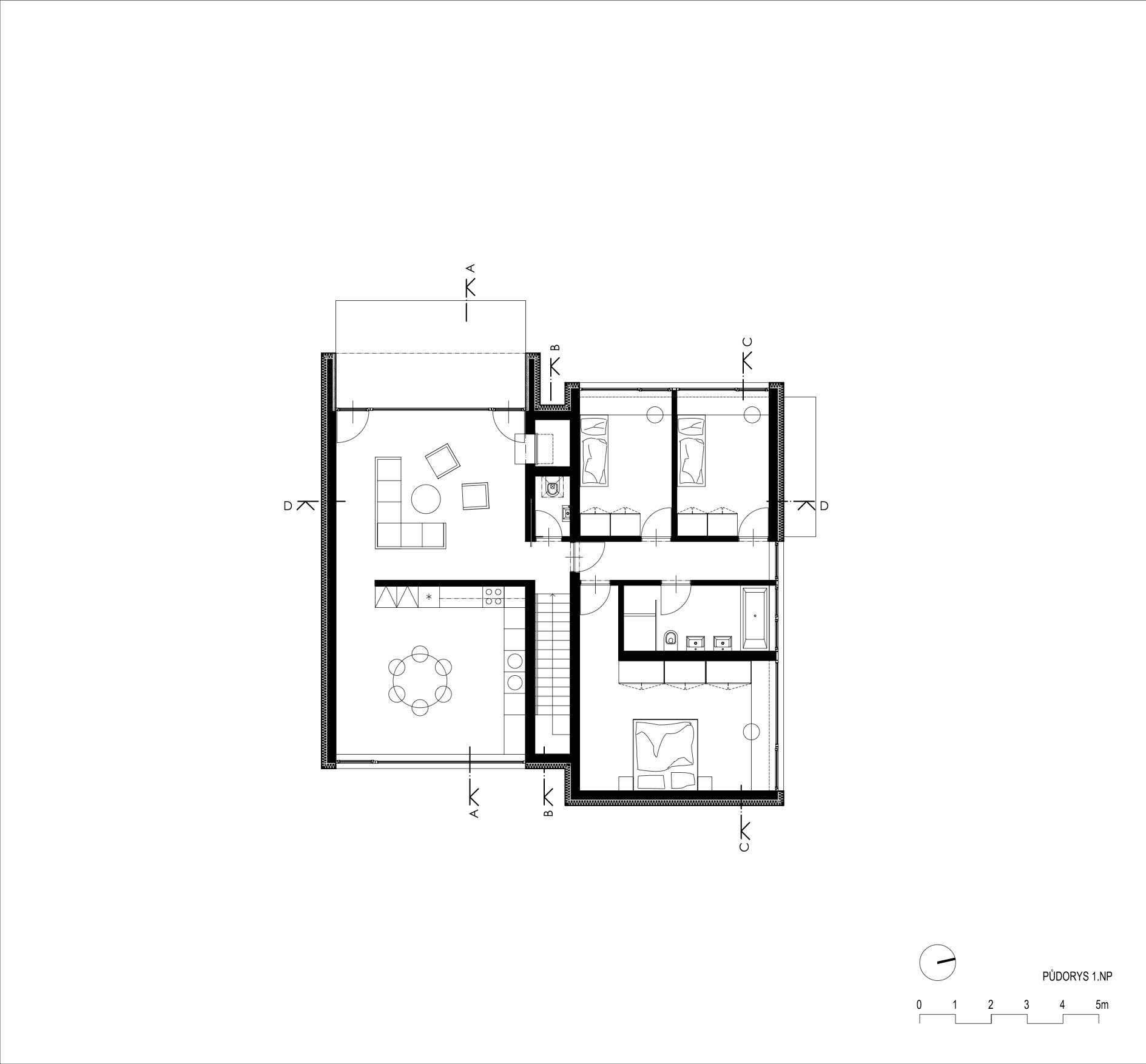
Vstupní část domu tvoří souvislá dlážděná plocha, na kterou navazuje garáž se vstupní halou, odkud je přístupná pracovna situovaná v severozápadním rohu objektu. Horní obytné podlaží je dostupné po schodišti zabírající úzký střední trakt domu. Obývací pokoj bezprostředně navazující na schodiště, je otevřen na západ a nabízí panoramatický výhled a výstup na přilehlou terasu směrem do zahrady. Podél jižní stěny domu je dostupná kuchyň s jídelnou otevřená na východ. Dětské pokoje, koupelna a ložnice rodičů jsou situovány v severním traktu, přístupné chodbou z obývacího pokoje.
- Autoři: Pavel Chládek
- Ateliér: Chládek Architekti
- Země: Česká republika
- Město: Zlín
- Ulice, číslo: Boněcko
- Datum projektu: 2009
- Realizace: 2011
Související projekty
Související architekti
Související ateliéry a firmy
Mohlo by vás zajímat














