MCA atelier - Revitalizace Komenského náměstí v Praze na Žižkově

Veřejný prostor není pouze fyzická forma, ale především situace. Když navrhujeme veřejné prostranství, nepřemýšlíme v první řadě o fyzické podobě, ale o tom, co se v jeho prostoru všechno může dít? Co by tam lidé rádi dělali? Jaký je potenciál místa? K jakým zážitkům výchozí prostředí inspiruje? Kdo jsou lidé, kteří v něm budou žít? Jakou roli na kvalitě bytí v něm zde může sehrát architektura?
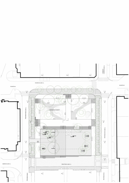
Revitalizací Komenského náměstí jsme chtěli znovu stvořit a uvést do života náměstí, které v poslední době sice neslo takové jméno, ale ve skutečnosti jím vůbec nebylo. Bylo nepřístupným místem, parkovištěm, střechou podzemní stavby. Návrh se musel vypořádat s množstvím determinant. Bylo třeba ponechat kryt civilní obrany, jehož stavba vnesla do náměstí výškové rozdíly, které komplikují připojení prostoru k okolním domům a ulicím. Chtěli jsme zachovat existující stromy – ty ale koření v nepřirozených výškách v návaznosti na výšku krytů. S ohledem na charakter místa, na jeho roli jak v urbanismu, tak životě okolní čtvrti, na lidi, kteří zde žijí, jsme se jednoznačně rozhodli pro náměstí pobytové, civilní, nikoliv primárně reprezentativní. Cílem bylo fyzickými úpravami vytvořit rámec, který nejen umožňuje, ale také iniciuje množství situací, propojujících potřeby lidí a možnosti místa.
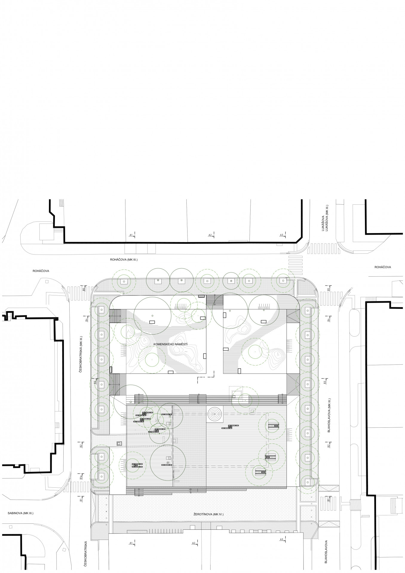
Nové náměstí působí a funguje jako krajina. Je průchozí všemi směry a v každém místě nabízí téma k pobývání pro všechny skupiny lidí – maminky s malými dětmi, starší generaci, studenty, lidi jdoucí do práce. Pevná záda, důležitá pro pocit bezpečí, intimity i orientovanosti, nově vytváří výrazná plasticita obvodu náměstí - linie sedacích schodů, kopce, dřevěná paluba nad vjezdem do garáží. Orientaci – vědomí středu, směrů, vazeb na okolí, pak dodává skrytě vložený řád členění, nesený křížem, který dělí plochu na čtyři charaktery, odpovídající činnostem v nich. Významovým středem je pramen fontány.
Obývací pokoj před školou. Linky trávy evokují notovou osnovu. Bytí na schodech: Čekání, setkávání, odpočívání. Divadlo: Prostor orámovaný schody k sezení, divadlo každodenních činností i místo pro koncerty, setkání, debatování. „Pramen poznání“: Kamenné a vodní kruhy se odvíjí od symbolu pramene poznání a odkazují na J. A. Komenského. Kopce: Ležení, válení sudů, výhled. Travnaté obliny připomínají českou krajinu - podhůří hor, kde J. A. Komenský navždy opustil Čechy. Hnízda: Stolů, lavic, židlí – pro práci na počítači, čtení, povídání, piknikování, učení se, hraní šachů. Plochy her: Mlatové plochy pro petangue, kuličky, skákání.
- Autoři: Miroslav Cikán, Pavla Melková
- Ateliér: MCA atelier
- Spolupráce: Pavel Košťálek, Radek Novotný
- Země: Česká republika
- Město: Praha 3 - Žižkov
- Ulice, číslo: Komenského náměstí
- PSČ: 130 00
- Datum projektu: 2013
- Realizace: 2018
Související projekty
Související architekti
Související ateliéry a firmy
Mohlo by vás zajímat




























