Byt ve vnitrobloku. Má výhled do nebe a venkovní posezení
V přístavbě v pražském vnitrobloku vzniklo bydlení s industriální poetikou. Byt pro dva má terasu a stropní světlíky, které interiér zalévají horním světlem.
Adéla Vaculíková , 9. 1. 2026
Pražské vnitrobloky jsou zpravidla plné přístaveb s různým využitím. Fungují v nich ateliéry, výrobny, dílny, ale třeba i kina – jako Kino Aero na Žižkově – nebo divadla – například Divadlo Alfred ve dvoře v Holešovicích. A také se stává, že takové stavby v čase mění svou funkci. Ateliér BekArch teď jednu z někdejších přístaveb přetvořil na bydlení.
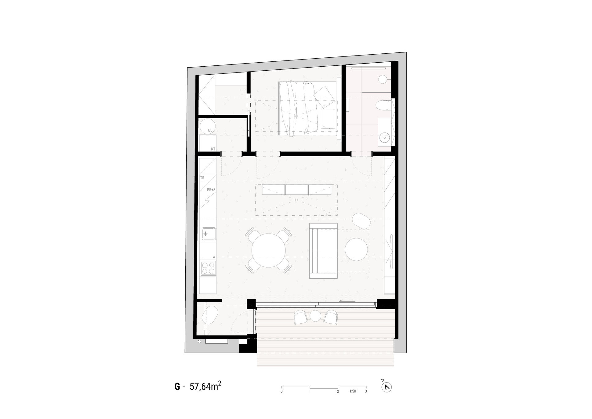
Ve výchozím stavu šlo o nečleněný prostor, který bylo třeba teprve převést do obyvatelné podoby. Rozdělením na obývací pokoj s kuchyní, samostatnou ložnici se šatnou, koupelnu a technickou místnost nakonec vznikl byt o ploše 57 metrů čtverečních – tedy středně velké městské bydlení.
Jelikož se nejedná o klasický byt v bytovém domě, má objekt i z konstrukčního hlediska svá specifika. Při rekonstrukci se například podařilo odhalit původní trámový železobetonový strop, který zůstal v novém interiéru přiznaný. Dalším určujícím prvkem prostoru se staly střešní světlíky – architekti je zachovali, protože byt nadstandardně prosvětlují, výrazně víc, než by dokázala běžná okna.

„Hlavní myšlenkou bylo prostor dostatečně prosvětlit, ale zároveň udržet soukromí. Inspirací nám byl původní stav – přiznané stavební prvky jsme ponechali a nový vizuál na nich dál rozvíjeli,“ říká architekt Jan Bek. Světlíky jsou v bytě dva. Jeden v obývacím pokoji a druhý v ložnici, která díky němu může být v dispozici bytu situovaná v místě, kde není žádné jiné okno. Veškeré přirozené osvětlení sem přichází shora.
Další denní světlo do bytu přivádí velký HS portál – tedy velkoformátové posuvně-zdvižné okno - s rámem v sympatickém krémovém odstínu. Umožňuje téměř bezbariérové propojení interiéru s terasou. Na hlavní obytný prostor za ním navazuje venkovní terasa, která k interiéru přidává dalších deset metrů čtverečních. Jelikož je zastřešená, zachovává si, i vzhledem ke svému umístění, ve vnitrobloku soukromí. Z terasy se do bytu vstupuje také bočním hlavním vchodem skrze zádveří.
Podlahy z litých cementových potěrů pomohly vyrovnat nerovnosti podkladu a podtrhují technický charakter interiéru. Nábytek na míru, včetně kuchyně, je vyrobený ze smrkové biodesky. „Standardně se biodeska používá ve stavebnictví nebo jako konstrukční materiál. My jsme ji využili na nábytkové prvky i kuchyňské skříňky, čímž se prostor příjemně sjednotil. Jako kontrast jsme zvolili nerezovou pracovní desku a zástěnu,“ doplňuje architektka Linda Polomová. Stejný materiálový jazyk pokračuje i v koupelně, kde se biodesky znovu potkávají s nerezí.
Více k tématu
Výraznější barvy, především červenooranžová, se do interiéru propsaly v podobě akcentů. Objevují se na jídelních židlích, koupelnové baterii a dlažbě, čele postele nebo věšáku ve vstupní části bytu. Barva se opakuje napříč interiérem a nenápadně ho propojuje. „Výsledkem je interiér založený na průmyslových materiálech, které jsme zjemnili dostatkem přirozeného světla, barvami, dřevem a textilem,“ shrnuje architekt Martin Kříž.
- Ateliér: BekArch
- Autoři: Jan Bek, Linda Polomová, Martin Kříž
- Země: Česká republika
- Město: Praha
- Realizace: 2025
- Užitná plocha: 57,64 m2
- Fotograf: Ondřej Holub
- Stavební firma: 4 interior & tiles s.r.o.
- Podlaha: Cemflow
- Dveřní kování: M&T
- Osvětlení: HAY
- Nábytkové vybavení: Polstrin design, momenti
- Truhlářské prvky: Pavlis
- Obklady v koupelně: Caesar
- Sprchová zástěna: Barevná skla
- Textil: JM-Interiér