Architektura / občanské stavby

Architektura, která umí léčit

Na budově psychiatrické kliniky v Uppsale není tím nejzajímavějším ani její transparentní, prosvětlené pojetí, ani její nápadná skleněná fasáda, dokonce ani dvoupodlažní vstupní atrium a terasy pro pacienty na střeše, kdepak. Její pozoruhodnost spočívá v tom, že se rozhodla odstranit pojetí nemocnice jakožto Nemocnice, totiž hrozivé, autoritativní instituce, která už jen svou vážností a monumentalitou dává celému světu najevo, že se zde jedná o něco smrtelně vážného. Klinika v Uppsale míchá psychiatrická a nepsychiatrická oddělení, výzkumné, studijní a léčebné prostory, vytváří plynulé přechody mezi soukromým a veřejným a své pacienty tak zbavuje tíživého pocitu z toho, že jsou léčeni. V případě psychiatrie se takové pojetí počítá dvojnásob, může totiž přispět i k samotnému uzdravení.

Josef Řídký / Tengbom , 13. 4. 2017

Projekt psychiatrické kliniky nám umožnil vytvořit silný symbol humanistické architektury. Některé výzkumy prokazují, že design a rozvržení architektonického prostředí může pacientům psychiatrie napomoci v uzdravování. Rčení „z nemocnice do hotelu“ nám tedy posloužilo jako motto pro náš neskromný záměr.

Design budovy je pojat tak, aby prostředí léčení (a tím i nemoc samotnou) zbytečně nedramatizoval a nepodtrhoval. Zatímco klasické psychiatrické kliniky (a nemocnice tak vůbec) mají podobu div ne zámků a nesou patos monumentality, projekt kliniky v Uppsale nabízí civilnější pojetí. Pacientům tak chce přispět k rychlejšímu uzdravení.

Přistoupili jsme proto k minimálnímu repertoáru materiálů, barev a konstrukčních prvků. Jádro budovy se stává poklidným pozadím, jež je zároveň trvale udržitelné a v dlouhodobém měřítku může být naplněno různorodými funkcemi. Nábytek, lidé a personál, přenosná i napevno umístěná umělecká díla dohromady tvoří barvy a atmosféru prostorů a mohou se s potřebami kliniky měnit.

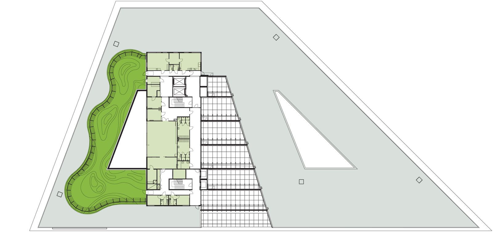
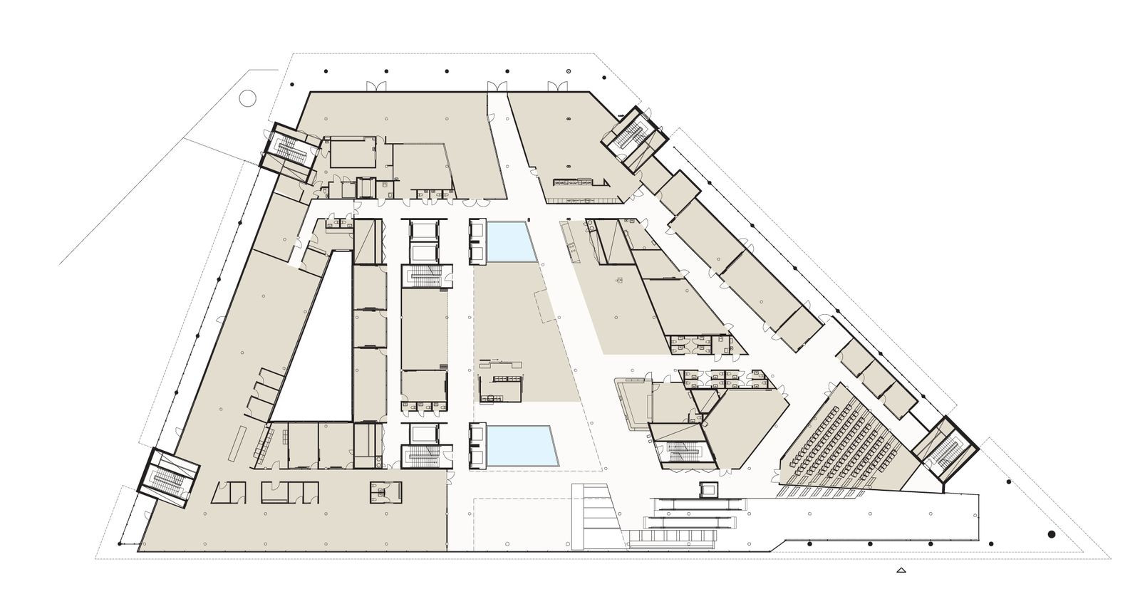
Skleněná fasáda přivádí do srdce budovy přirozené světlo a rovněž vytváří její jasnou identitu, přičemž navazuje vztah mezi nemocničním areálem, městem a přilehlým hradním parkem. Parcela budovy je jasně ohraničená a v prudce stoupajícím svahu. Budova má proto napolo zahloubené patro a veřejně přístupné podlaží bylo posazeno do druhého nadzemního podlaží. Návštěvníci do budovy vstupují eskalátorem stoupajícím po hraně svahu. Vstupní atrium veřejný prostor sjednocuje a vítá nově příchozí v přehledné dvoraně. Podkrovní patro je odděleno a slouží výhradně aktivitám pacientů, zatímco velkoryse pojatá střešní terasa je určená pro odpočinek a relaxaci nebo třeba klidnou procházku.

Na každém patře se nachází oddělení pro výzkum a výuku i péči o dlouhodobé a krátkodobé pacienty. Nemocnice tak dává vale tradiční praxi rozdělování dotyčných aktivit do různých budov. Její polyfunkčnost se zároveň obrací i do exteriéru: zatímco okna prostor určených návštěvníkům a krátkodobým pacientům se obracejí do města a živých prostor, balkóny dlouhodobě ubytovaných poskytují klidný výhled na krajinu a hradní park, nabízí blízkost přírody a krásný výhled.

Sekce určená dlouhodobě ubytovaným pacientům sestává z jednolůžkových pokojů s balkóny. Ty budově dodávají vnější schránu a vytváří specifický vzorek s klidným, civilním vzezřením. Terasy dlouhodobým pacientům umožňují postupně se aklimatizovat na každodenní život v nemocnici, jsou poloveřejným mostem mezi zcela soukromými pokoji a přilehlými místnostmi denního stacionáře, z nichž lze nakonec přejít až do veřejného prostoru vstupního atria. V něm se mohou pacienti, návštěvníci i personál vzájemně setkávat. Slouží také jako jednotný vstup, a to jak pro pacienty psychiatrie, tak pro pacienty nepsychiatrických oborů. Speciálně pořízená umělecká díla udržují pocit rovnováhy. Sečteno, podtrženo, psychiatrická klinika je navržena tak, aby vyhovovala stávajícím i budoucím nárokům na péči o pacienty, a zároveň se snaží minimalizovat nehostinný pocit z toho, že se nacházíme v léčebné instituci.

  • Autoři: Christine Hammarling
  • Ateliér: Tengbom
  • Země: Švédsko
  • Realizace: 2013
  • Město: Uppsala
  • Ulice, číslo: Uppsala University Hospital
  • PSČ: SE-751 85
  • Datum projektu: 2007
  • Realizace: 2013
  • Plocha pozemku: 33 000.00m2
  • Poznámka: foto © Åke Eson Lindman

Mohlo by vás zajímat

Generální partner
Hlavní partneři