Namísto náměstí (dočasná) dřevěná tržnice
Když se renovuje obchodní dům nebo tržnice, většinou to znamená výpověď všem nájemníkům a dramatické přeskupení služeb v okolí. Ve Stockholmu ale dokázali, že to lze i jinak. Během přestavby historické budovy tržnice byla v jejím sousedství zbudována tržnice nová, dočasná, dřevěná a modulární a směle zabrala hned celé náměstí. Kdo by si myslel, že se jednalo o jednostranný a nepřípustný zábor veřejného prostoru, toho musíme vyvést z omylu: dočasná budova tržnice se stala mimořádně populární a trhovci v ní dokonce zvýšili své zisky. A modulární architektura opět prokázala své schopnosti. Finále ceny Mies van der Rohe 2017.
Tengbom , 31. 3. 2017
Stockholmská historická tržnice zoufale potřebovala modernizaci a během její renovace tak vznikla potřeba pro zřízení tržnice dočasné. Na přilehlé straně náměstí proto vznikl projekt nové tržnice. Dočasná stavba si však získala neobyčejnou popularitu, týdně ji navštíví dvakrát více hostů než původní budovu a obchodníkům se zde podařilo zvýšit svoje tržby až o 50%.
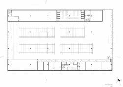
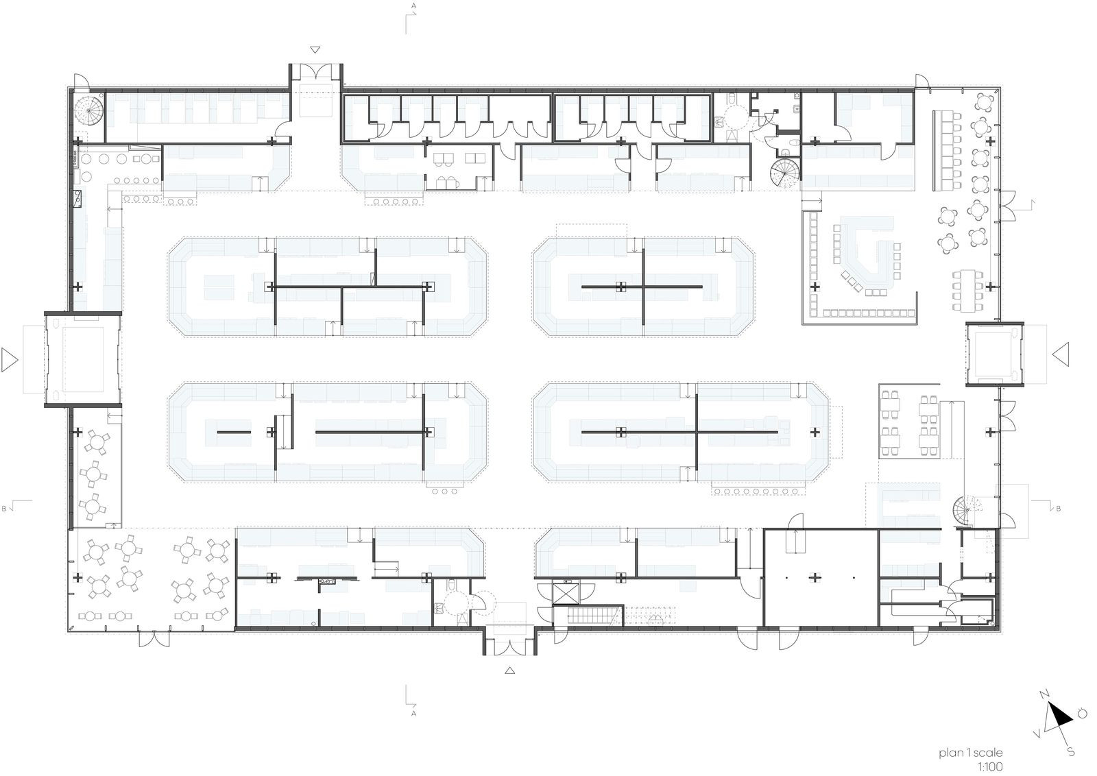
Dočasná tržnice se nachází v Östermalm, v bohaté čtvrti v centru Stockholmu. Stavba byla umístěna na stejném náměstí jako tržnice původní, což obchodníkům umožnilo udržet si během renovace stávající klientelu. Aby nová budova pojmula všechny trhovce i služby a servis nezbytné pro chod trhů, dočasná konstrukce musela být rozprostřena přes celé náměstí (dobrých 1970 m2). Proto bylo jedním z prvořadých cílů nahradit dočasnou ztrátu ceněného městského prostoru pozitivním přínosem nové stavby. Jejímu designu byla věnována obzvláštní péče: budova ostatně stojí v exponované historické části, zároveň je ale stavbou dočasnou, takže si vyžadovala užití lehkých, levných a zároveň recyklovatelných materiálů.
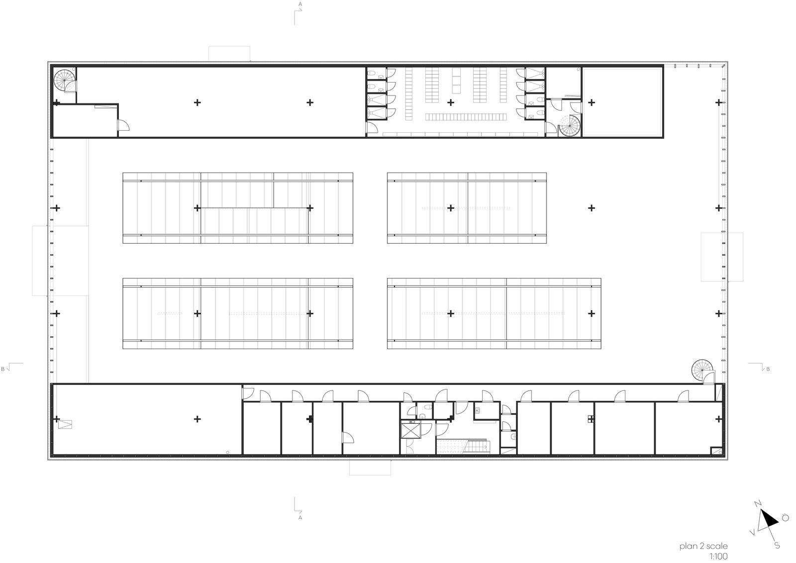
Cílem našeho návrhu bylo přejmout něco z velkoleposti historické tržnice a zároveň pracovat s moderními prefabrikovanými modulárními prvky. Stvořili jsme mohutnou halu se stropem o štědré výšce 9-11 m, do níž proniká světlo prosklenými příčnými fasádami, okny na ochozech fasád podélných a 6 trojúhelníkovými střešními okny.
Abychom umožnili přístup ze všech stran, rozhodli jsme se, že plocha podlahy bude jednoduše kopírovat povrch spádu pozemku. Celkový výškový rozdíl činí 1,9 m od rohu k rohu, boxy s trhy pozvolna klesají napříč tržnicí. Stánky, restaurace a sklady jsou v přízemí, kuchyně, šatny pro personál a technické místnosti se nachází ve dvou podlouhlých mezaninech. Stánky samotné potom leží podél centrální pěší tepny, hlavní vchod čelem ke vstupu do staré tržnice. Vchody jsou strategicky umístěny na všech 4 stranách tržnice, takže pěší trati zůstaly po dobu otvíracích hodin nepřerušeny.
Celá stavba má odhalenou, lepenou dřevěnou konstrukci sestávající z mřížoviny trámů ležících na sloupech z CLT. Mohutná struktura je smontována modulárním systémem umožňujícím rychlé rozebrání a sestavení na novém místě. Volba dřeva jako konstrukčního materiálu má četné výhody. Relativní lehkost materiálu umožnila nezakládat větší betonové základy, což ušetřilo čas i peníze. Jedná se taktéž o obnovitelný zdroj se zápornou uhlíkovou stopou.
Spodní pás fasády je pokrytý neopracovanými vertikálním borovicovými prkny různých velikostí. Kratší strana fasády je zasklená, takže je vidět do tržnice a z jejích jídelen zase ven. Horní část fasády je kompletně obložená modulárním systémem průsvitných stěn z polykarbonátu, který je lehký a rychle smontovatelný. Materiál má dobré izolační vlastnosti a zároveň propouští dostatek světla. V noci se efekt obrací, tržnice osvětluje náměstí jako mohutná lucerna.
- Ateliér: Tengbom
- Autoři: Mark Humphreys, Johan Cederlöf, Karin Löfgren, Martin Christiansen, Anna Halldén
- Země: Švédsko
- Město: Stockholm
- Ulice, číslo: Östermalm
- Realizace: 2016
- Užitná plocha: 2 000.00m<sup>2</sup>
- Plocha pozemku: 1 970.00m<sup>2</sup>
- Poznámka: foto © Felix Gerlach