Architektura / občanské stavby

Do středu malé moravskoslezské obce Píšť navrhlo studio knesl + kynčl architekti nové kulturní a informační centrum

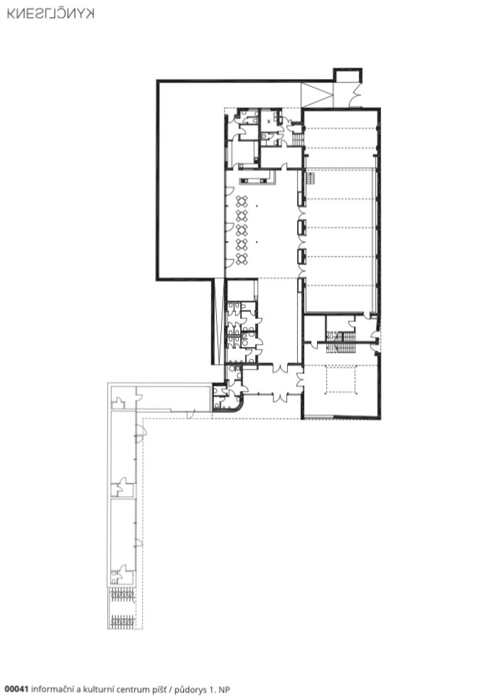
Střed dvoutisícové moravskoslezské obce Píšť před dvěma lety doplnila nová budova informačního a kulturního centra podle návrhu architektonické kanceláře knesl kynčl architekti. Realizace se zatím dočkala částečně dvoupodlažní budova se sedlovou střechou, která nabízí kulturní sál a informační centrum s knihovnu s čítárnou. Druhou část projekt představuje menší jednopodlažní budova s klubovnami, která v budoucnu propojí informační a kulturní centrum s budovou městského úřadu - na její realizaci se ovšem dosud čeká. Tyto dvě části tak spoležně vymezí nový veřejný prostor obce.

knesl kynčl architekti , 11. 3. 2020

  • Autoři: Jiří Knesl, Jakub Kynčl
  • Ateliér: knesl kynčl architekti
  • Země: Česká republika
  • Realizace: 2018
  • Generální dodavatel: BYSTROŇ Group a.s.
  • Město: Píšť
  • Ulice, číslo: Hůrecká 600/1
  • Suma: 32 800 000.00
  • Měna: CZK
  • Datum projektu: 2005
  • Realizace: 2018
  • Plocha pozemku: 6 000.00m2
  • Spolupráce: Josef Hajný a Jan Rašík (AD); Pavel Hladík / Hladík a Chalivopulos (statika); Jitka Špondrová (požární ochrana); Dušan Variš (zdravotní technika, vytápění); Pavel Dočekal / KOMP (elektro); Josef Bahr / KLIMAKOM (klimatizace); Milan Zezula (doprava)

Klíčová slova:

kulturní centrum

Mohlo by vás zajímat

Generální partner
Hlavní partneři