Architektura / bytové domy

Dům, kde architekt uchoval vše cenné a přidal vše současné

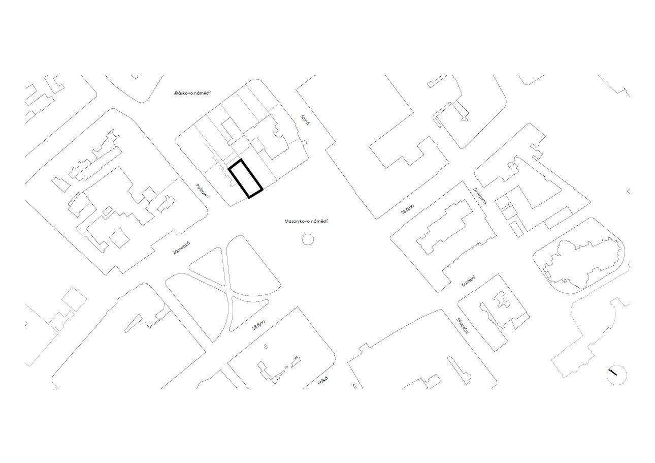
Rekonstrukce domu na ostravském Masarykově náměstí ukazuje, jak je dilema mezi „bouráním“ a „zachováváním“, resp. „vývojem“ a „konzervací“ historických center pomýlené. Secesní dům si zachovává veškeré své kvality, aniž by se musely činit kompromisy ohledně jeho nové náplně. Proměnil svůj obsah bez toho, aby ztratil vlastní identitu – vyvinul se. V architektuře na to koneckonců narážíme neustále: jako se vyvíjejí lidé, vyvíjejí se i města. Jedním z úkolů architektury je potom reagovat na neustálý dynamický proces změny a hledat řešení, která dokážou urbánní prostředí uzpůsobovat potřebám dané doby. PLATFORMA ARCHITEKTI se tohoto úkolu zhostili s mimořádnou finesou.

Tomáš Čech , 24. 4. 2017

Právě centrum Ostravy je krásným příkladem toho, že se město nikdy nemůže stát statickým organismem. Dříve živé jádro dnes v mnoha směrech trpí nedostatky a potřebuje impulzy, které jej dokáží opět přivést k životu. Mimo jiné mu chybí lidé, kteří zde budou bydlet a trávit tak čas i v dobách, kdy prostor zrovna není ničím jiným oživován. Taková byla i ambice architektů kanceláře PLATFORMA ARCHITEKTI Davida Průši a Aleny Mazalová. Dům č. 38, postavený pravděpodobně v roce 1910 podle návrhu architekta Felixe Neumanna, svým stavem strádal a nedokázal nabídnout odpovídající prostředí.

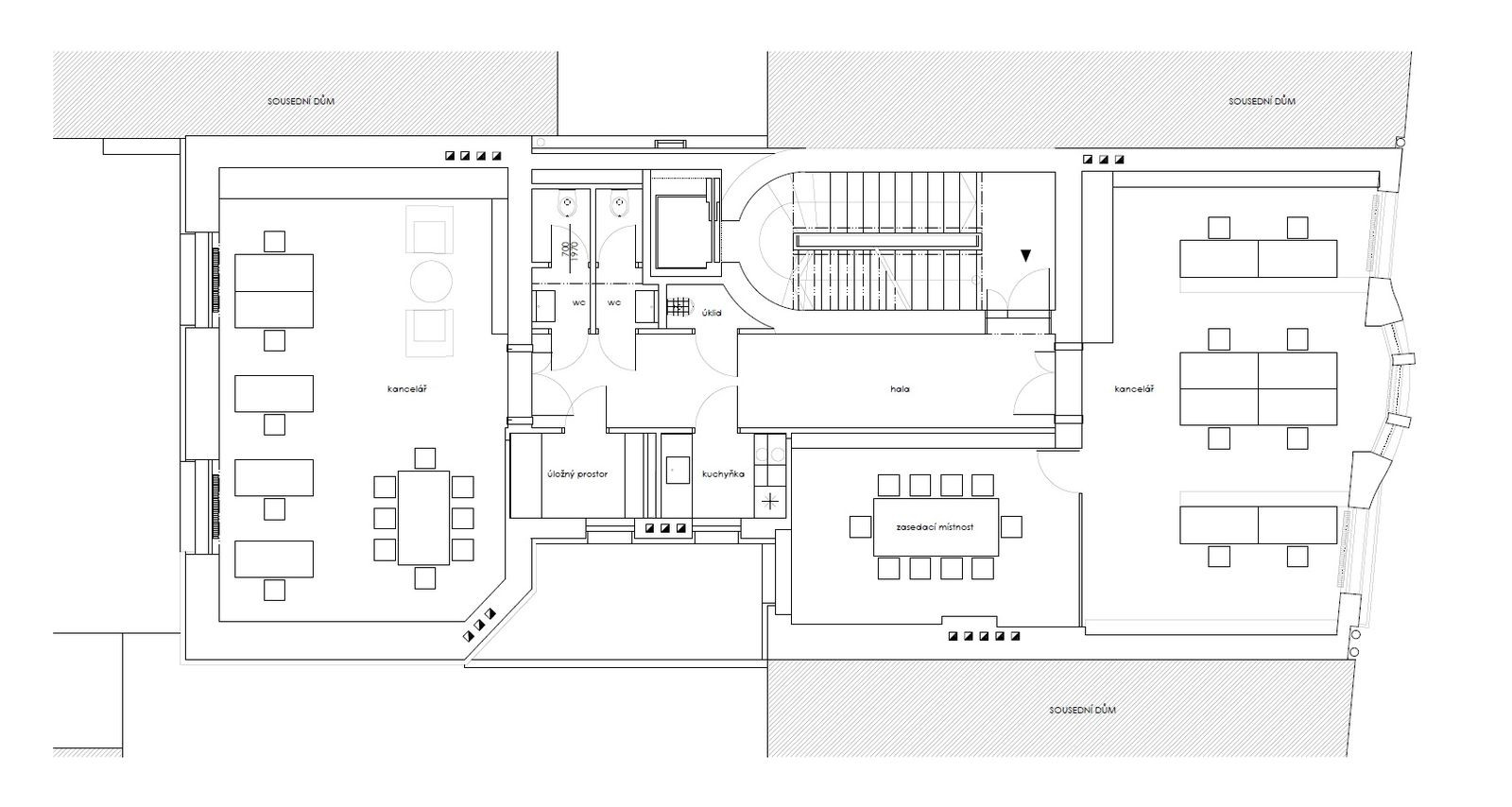
Celý projekt a to, jak přizpůsobuje dům dnešní době, lze rozdělit do dvou v podstatě nezávislých částí. V první řadě, druhému až čtvrtému patru chyběla především technická infrastruktura. Po dlouhém zkoumání bylo rozhodnuto, že pro vedení sítí bude využit jeden ze dvou světlíků, které zde autor původně navrhl. Nyní je každé patro vybaveno odpovídajícím hygienickým zázemím a navíc obsluhováno výtahem. Ztráta světlíku je sice rozhodnutí, které dům připravilo o některé z jeho kvalit, zároveň ale eliminovalo stavební zásahy do původní struktury a uchovalo systém komunikací včetně původních obložkových dveří.

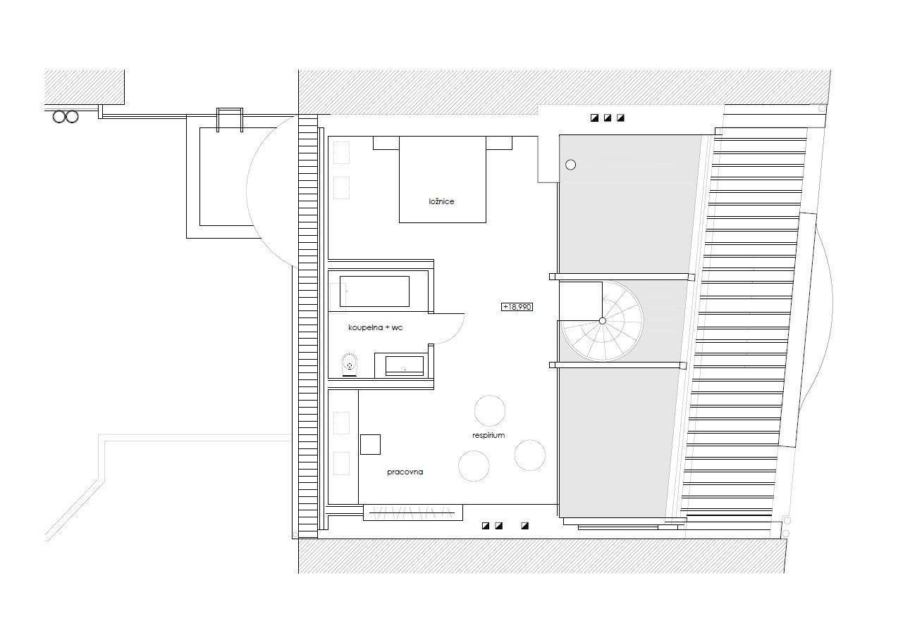
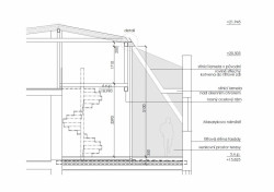
Druhým, neméně zásadním krokem je nové využití pátého a šestého podlaží, původně sloužících „jen“ jako ateliér a půda, na prostory k bydlení. Za tím účelem bylo nutné pozměnit formu střechy. Zkoumáním kontextu a kvalit samotného objektu bylo nalezeno řešení, které nepoškodilo historické hodnoty. Původní secesní fasáda, díky které byl dům prohlášen za kulturní památku, zůstala netknuta, stejně tak dominantní štít. Forma mansardové střechy byla rovněž dodržena, objem domu také zůstal zachován. Původní konstrukci ale nahradila celoprosklená stěna, kterou stíní lamely umístěné do stávající střešní roviny. Vzniklý loftový prostor je stejně jako kdysi přístupný z pátého podlaží, ve vlastním loftu jsou potom umístěny ještě vnitřní schody.

Co se ostatních zásahů týče, dle slov tvůrců šlo jen o „udržovací práce“ zvyšující kvalitu budovy. Část domu do dvora byla zateplena, některé okenní výplně byly vyměněny, jiné repasovány. Celý interiér byl očištěn od nánosů různě agresivních rekonstrukcí, jež zde v průběhu času proběhly.

Kvalita celé rekonstrukce zde ve výsledku nespočívá v objevnosti některého z řešení nebo v jejich efektnosti. Spíše naopak. Celá práce je však důkazem důležitosti role architekta jakožto zástupce řemesla schopného spojit požadavky technické, funkční, estetické i společenské. Krása a historická hodnota domu č. 38 byly zachovány, možnosti jeho využití jsou ale navýsost současné. Kolemjdoucí si při letmém pohledu ani nemusí ničeho všimnout, obyvatelé však dennodenně nevychází z úžasu.

  • Ateliér: PLATFORMA ARCHITEKTI
  • Autoři: David Průša, Alena Mazalová
  • Země: Česká republika
  • Město: Ostrava
  • Realizace: 2015
  • Užitná plocha: 1 108.00m<sup>2</sup>
  • Zastavěná plocha: 230.00m<sup>2</sup>
  • Foto ©: //zdechovan.cz/" target="_blank">Jakub Zdechovan

Mohlo by vás zajímat

Generální partner
Hlavní partneři