Inovativní budova v New Yorku od Rafaela Viñoly představuje neobvyklou alternativu administrativních staveb
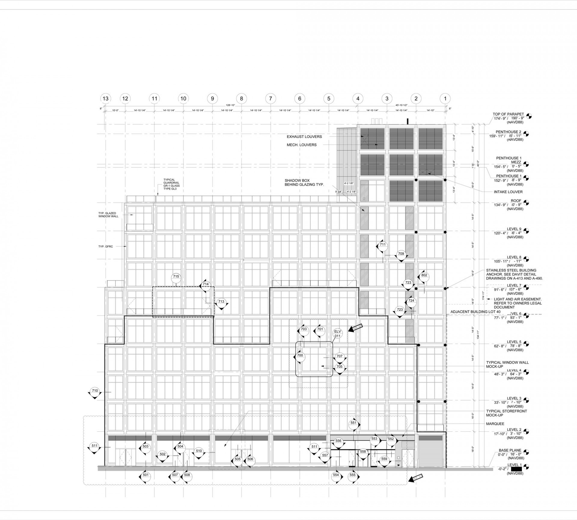
V západní části Manhattanu vznikla nová kancelářská budova 61 Ninth Avenue od studia mezinárodně známého architekta Rafaela Viñoly. Budova nabízí téměř 13 900 metrů čtverečních komerční plochy. Přízemí je věnováno maloobchodnímu využití, samotné administrativní prostory se nacházejí v dalších sedmi podlažích. Dispozice kancelářských ploch je variabilně rozčleněna uvnitř modulárního obvodového rámu, jehož rastr udává nezaměnitelný výraz celé budovy.
Karolína Řeháčková , 8. 4. 2020
Historické industriální prostory jako inspirace
Řešení dispozice budovy reaguje na specifickou tržní poptávku v této čtvrti New Yorku, kde se kanceláře často nacházejí v bývalých průmyslových objektech. Charakteristickým rysem těchto velkých výrobních prostor je, že na rozdíl od moderních kancelářských věží, které běžně nalezneme na Manhattanu, poskytují velkoryse otevřené prostory s vysokými světlými výškami. Návrh kancelářské budovy od kanceláře Rafael Viñoly Architects tak odkazuje na původní povahu industriálních prostor přeměněných v kanceláře. Snahou autorů bylo dosáhnout typické atmosféry pomocí vysokých stropů a velkých oken s dostatkem denního světla.
Více k tématu

Dynamická skládačka z kvádrových modulů
Maximálního uvolnění dispozice dosáhli architekti umístěním komunikačního jádra mimo střed půdorysu. Díky volnému půdorysu může být navíc každé podlaží upraveno na míru konkrétním potřebám jednotlivých nájemců. Rozdílným uspořádáním modulárních buněk v jednotlivých podlažích navíc vznikají venkovní terasy sloužící k setkávání a relaxaci. Dynamická skládačka z kvádrových modulů vytváří odlišné konfigurace jednotlivých podlaží, čímž vzniká jak zajímavé členění celkové hmoty v exteriéru, tak rozmanité řešení vnitřních prostor.

Dům se nachází na rohu rušné křižovatky na místě bývalého skladiště dříví ve čtvrti s průmyslovou tradicí. Investor sjednal převody leteckých práv ze čtyř sousedních budov a zajistil nákup sousedního pozemku, čímž bylo možné v návrhu uvažovat s vyšší budovou s dynamičtějším designem. Současně však dům svým výrazem jasně navazuje na budovy ve svém sousedství.
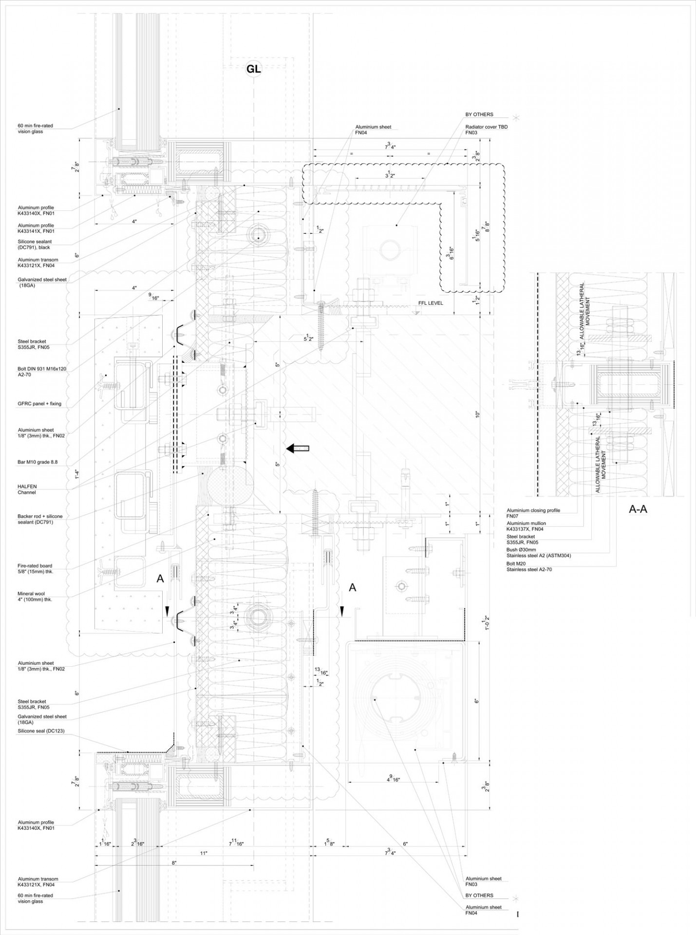
Fasádu objektu tvoří hliníkový sloupkovo-příčkový fasádní systém MB-SR60NY společnosti Aluprof. Budova 61 Ninth Avenue je dokonce prvním projektem, kde byl tento systém použit. Konstrukční řešení fasády umožňuje esteticky kombinovat prosklené stěny s plnými výplněmi z betonových prefabrikovaných kazet v bílé barvě, které vytvářejí výrazné rámy kolem prosklení. Tepelný komfort v interiéru zajišťují výplně z tepelně izolačního dvojskla. Pro splnění požadovaných norem byli architekti nuceni použít v některých částech budovy protipožární systém prosklení. Zvolený systém je řešen tak, že vizuálně není rozpoznatelný rozdíl mezi standardní a protipožární konstrukcí, takže zůstává zachován jednotný architektonický koncept fasády se současným dodržením všech bezpečnostních požadavků.

Tento článek vznikl za podpory společnosti ALUPROF SYSTEM CZECH s.r.o.
- Ateliér: Rafael Viñoly Architects
- Země: Spojené státy americké
- Město: New York
- Realizace: 2019
- Užitná plocha: 13 900.00m2
- Poznámka: Foto © Halkin Mason