
Jak jsme rekonstruovali náš panelákový byt na Smíchově
Jsem architekt. Bydlím s manželkou a dcerou v 11. patře panelového domu na Praze 5. Ráno brzo vstávám, už roky nekouřím, nehádám se, poslouchám k práci vážnou hudbu, piju kávu s trochou mléka, mám rád stroje a mechanismy a jsem rád, když vím, jak fungují. Mám rád slušnost, přirozenost a upřímnost, a to i u stavebních materiálů, jejich drsnost, hladkost, stárnutí. Mám rád svoji práci. Jsem perfekcionista.
René Dlesk , 20. 7. 2022
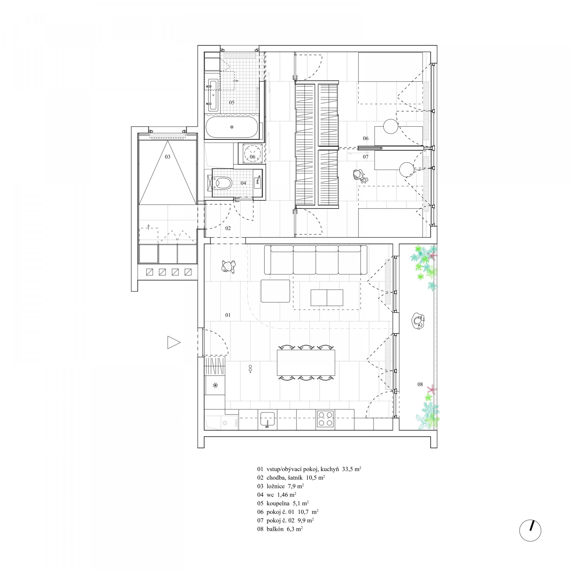
Rekonstruovaný byt má sloužit naší tříčlenné rodině. Víc nás už nejspíš nebude, jen když občas ze Slovenska přijedou rodiče. Potřebujeme velký obývací pokoj, který má být srdcem bytu. Musí se do něho vejít kuchyně a velký stůl, prostor na cvičení a třeba i dětská skluzavka. Proto zabírá celou jednu sekci bytu vymezenou nosnými panely. Není tu prostor na žádnou předsíň a jiné prostorové nesmysly, kterých je už teď v společných prostorech našeho paneláku víc než dost. Televizi nemáme, na filmy a pohádky se díváme z projektoru. Rád pěstuji rostliny a tak okna lodžie, ze které je výhled na celou Prahu, v létě stíní popínavé okurky. Jejich správný vývoj každé ráno pečlivě kontroluju. Některá rajčata rostou ve vlastním květináči, jiná sdílí velký samozavlažovací květináč s břečťanem. Čerstvé výhonky našich pětilistých loubinců, které vyrůstají z velkých květináčů na druhém konci lodžie, rád starostlivě srovnávám na lanka na stěnách a stropě lodžie, ať se hezky pnou a rostou.
Více k tématu
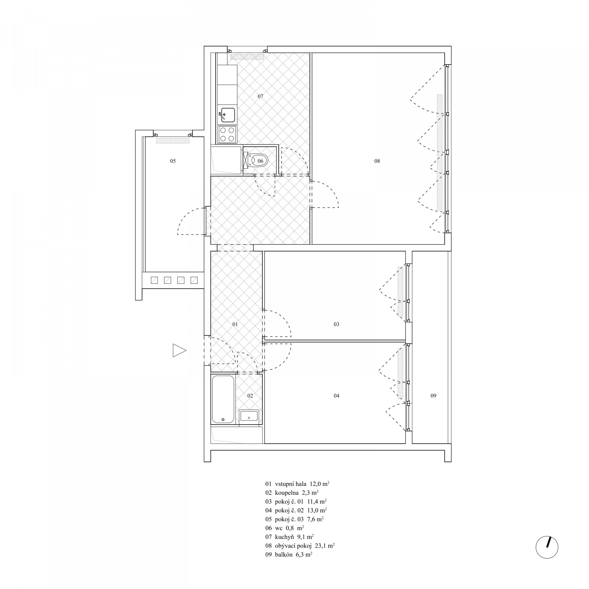
Kromě obyváku potřebujeme pokoj pro dceru. Ten je téměř zrcadlově stejný jako pokoj pro hosta, který slouží i jako pracovna. Jsou spolu spojeny posuvnými dveřmi, ať se můžeme nahánět kolem sestavy zabudovaných skříní. Původně na místě těchto pokojů býval obyvák, bez lodžie! Na ni se smělo vcházet jen z jediné obytné, privilegované, místnosti. S tím je už dnes konec. Celou dispozici jsme otočili a na lodžii se vstupuje z obyváku.
Do této druhé sekce bytu se kromě pokojů a zabudovaných skříní vejde WC, nika s pračkou a komfortní koupelna s vanou. V koupelně už ventilátor nepotřebujeme. Nově má okno, přes které ji spolehlivě během pár vteřin vyvětráme. A hlavně, má teď přirozené světlo, což je v paneláku luxus.

Naše SVJ je přísné. Mimo jiné zakázalo jakékoliv zasekávaní rozvodů do nosných zdí nebo stropních panelů. Nechtěli jsme snižovat stropy sádrokartonovými podhledy, kde je možné část rozvodů skrýt. Výšku totiž považuji za jednu z nejcennějších hodnot prostoru. A tak jsme asi jediní v baráku, kteří to opravdu ctí a nezasekávají nic, ani vertikální rozvody elektriky. Vše je vedeno po povrchu, tak jako původní rozvody topení. Ale nevadí mi to. Mám rád smysluplná omezení, která mi zjednodušují rozhodování a současně vytváří vlastní přirozenou estetiku. Už o něco méně rádi měli tohle rozhodnutí zedníci, instalatéři a elektrikáři, kteří se museli trefit přesně na osy všeho: pokojů, otvorů i dlaždiček. Všechny nové rozvody jsou totiž vedeny v přesných geometrických sítích. Řekl jsem jim také, že ty malé dlaždičky 10x10 nemohou krátit, protože jsem to měl vymyšlené přesně tak, aby je krátit nemuseli. A také se občas divili, že nechci, aby nijak srovnávali a štukovali fleky a nerovnosti v omítkách po stržení polystyrénového kazetového zateplení stropů.

Stejně jsme postupovali při úpravách nerovností, které na stropech zbyly po demolici všech nenosných příček. Zedníci je měli jen nahrubo začistit a celé to měli napenetrovat a vybílit. Nerovnosti mi totiž v tomto případě vůbec nevadí, dokonce je mám rád. Je to upřímná dekorace a navíc zadarmo. Jasně, že se pak zedníci podivovali, když jsem je peskoval za milimetry nerovností u nových zdí nebo u spár nové podlahy, které měly být u stěn vždy stejné. To, že mi jde o kontrast původní stavby a nově vkládaných prvků, jsem jim nějak naznačil, ale dlouho nevysvětloval, protože i tak by to nejspíš nebylo v souladu s jejich pravdou. Nevysvětloval jsem jim ani to, že mi nevadí stopy původních stavebních zásahů nebo odstraňovaných zdí. Nevysvětloval jsem ani to, že je to téměř to stejné, jako když se obnovují historické památky, kde je podle jednoho filosofického proudu žádoucí, aby byly poznat stopy zásahů v jednotlivých obdobích vývoje. Ale chápu, že používat tuhle metodu v paneláku je poněkud neobvyklé. Myslím si však, že je to legitimní, ten dům má přece už téměř 50 let.

Opravovat panelákový byty však nemusí být levné. V bytě je totiž spousta truhlařiny. Jasanovou dýhu máme i uvnitř skřínek, protože to tak mělo být. Naše ložnice je úzká, jen na šířku postele, ale jednou bude celá obložená, jako kajuta, také jasanem. Dnes mě v ní však těší oškrabaná omítka a původní panel s bezpočtem jeho „nedokonalostí“, který jsem natřel na bílo. Měl zůstat šedý, ale je na bílo natřený, protože jsem nedával pozor a přišel jsem o několik minut pozdě. Moje dcerka, toho času téměř tříletá, už začala natírat. Nepochopili jsme se. Tak jsem tu jednu betonovou zeď už nabarvil bílou, ať je to všude stejné.
- Autoři: Tamara Kolaříková (Horová), René Dlesk
- Ateliér: RDTH architekti
- Země: Česká republika
- Město: Praha 5 - Smíchov
- Projekt: 2018-19
- Realizace: 2021
- Užitná plocha: 85 m²