
Panelákový byt na ďáblickém sídlišti rozčlenili architekti příčkami z luxferů
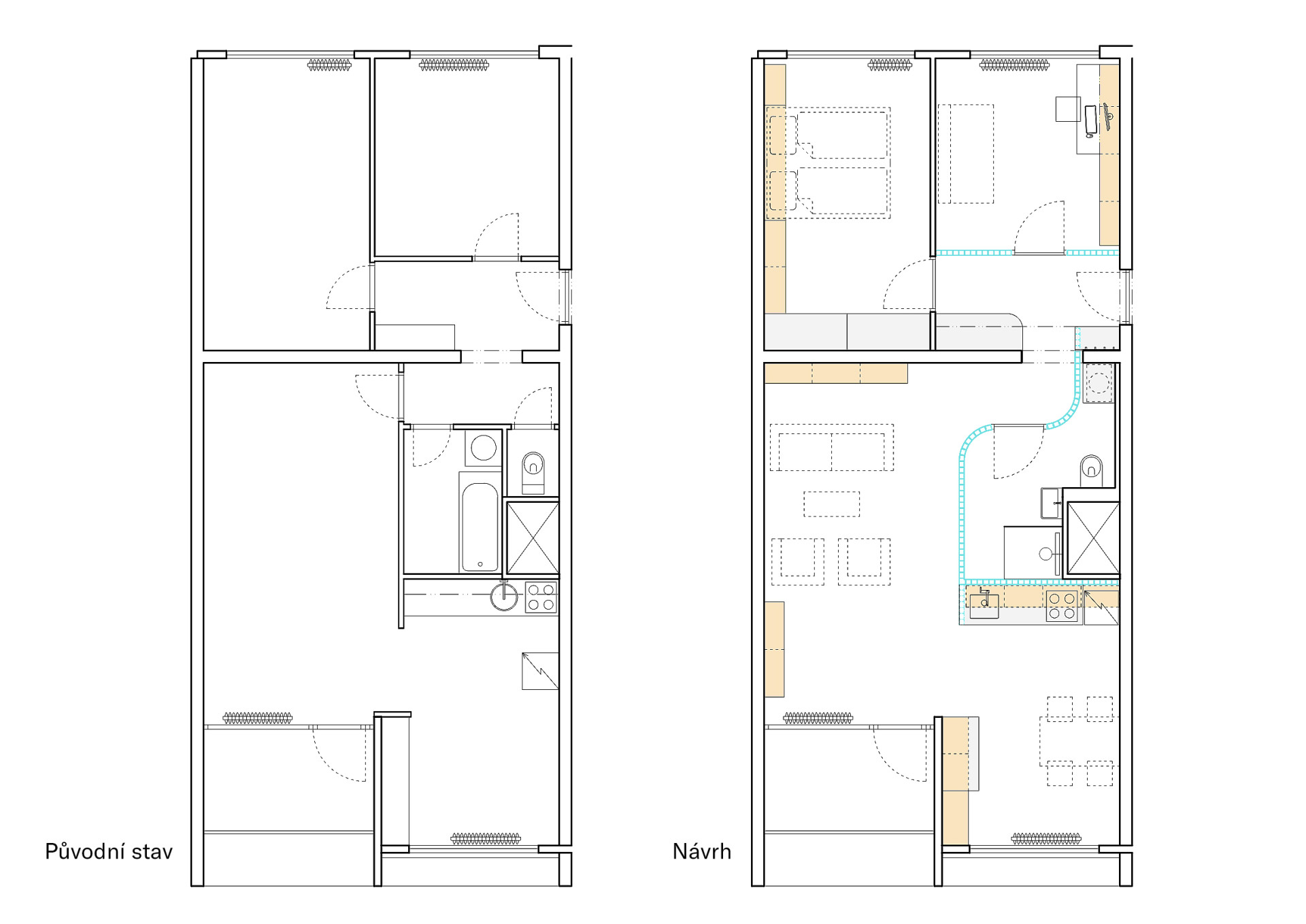
Celý byt prosvětlit a získat dostatek úložných prostor. To bylo hlavním cílem mladého páru, který se s projektem rekonstrukce bytové jednotky na pražském sídlišti v Ďáblicích obrátil na architektonické studio Papundekl.
EARCH.CZ , 2. 3. 2023
Po architektonické i urbanistické stránce patří ďáblické sídliště k těm nejlepším sídlištím, které u nás za socialismu vznikly. Jedná se totiž o soubor v těsném kontaktu s přírodou nabízející bydlení v rozmanitě řešených budovách i kvalitní veřejný prostor s občanskou vybaveností.
Kvality sídliště v Ďáblicích natolik oslovily také mladý pár, který se po pár letech života v pronájmu rozhodl koupit dispozičně identický byt v sousedním panelákovém domě. Od začátku majitelé věděli, že jeho rekonstrukci svěří architektům – a po menším výběrovém řízení se rozhodli spolupracovat s pražským studiem Papundekl.
Více k tématu
“Již během koupě bytu na námi oblíbeném sídliště Ďáblice jsme věděli, že chceme oslovit nějaké architektonické studio. Na doporučení známých jsme kontaktovali tým architektů, který se možností rekonstrukce panelákového bytu zdál upřímně zaujatý. Prostor bytu jsme důvěrně znali, protože jsme v identické dispozici žili několik let v nájmu o pár ulic dál.
Naším záměrem bylo nechat si navrhnout a vytvořit vzdušný a světlý prostor, který bude respektovat identitu lokality, zároveň prostor pozvedne a dodá mu osobitost,“ vypráví majitelé.

Nejdůležitějším bodem rekonstrukce bylo prosvětlení celé dispozice bytu. Proto architekti přišli s nápadem prosklených příček z luxfer, které mají dobré akustické vlastnosti, propouští světlo a lze je vyskládat i do oblouku. Luxfery se tak nakonec staly ústředním prvkem celého interiéru.
Studio Papundekl navrhlo na míru bytu také modulární regálový systém, který je pomocí ocelových rámů kotven ke stropům. Police z březové překližky svou texturou i barvou podstatně zjemňuje celý interiér, ve kterém jinak převažují šedivé povrchy podlah i odhalené betonové konstrukce. Regály jsou uzpůsobeny specifickým funkcím, takže slouží třeba jako knihovna, kuchyňské skříňky, pracovní stůl nebo noční skříňky. Systém polic chytře šetří místo a současně pěkně sceluje celý interiér.

„Do nábytku jsou také integrovány vypínače a zásuvky, díky čemuž se nemuselo složitě vrtat do betonových panelů. V policích jsou umístěné i LED pásky, které představují jediný zdroj světla v celém bytě. Byt se tak obejde bez klasických lustrů a jednotlivé místnosti získávají příjemné rozptýlené světlo,“ upřesňují autoři návrhu.
Esteticky přímočarý interiér si majitelé rychle oblíbili a poznali již jeho jasné výhody. „V osobitém a zároveň jednoduchém interiéru, do kterého studio navrhlo i většinu nábytku, žijeme už půl roku. Je to komfortní domov – ke každodennímu životu, častým návštěvám i pro práci. Neocenitelnými jsou v tomto rozsáhlé knihovny, které střídmý prostor naplňují barvami a poskytují dostatek místa nejen pro ubytování řady knih nezbytných pro naše profesní životy, ale i tretek, radostí a dekorativních předmětů z cest,” dodávají majitelé.
- Autoři: Jan Bárta, Šimon Bierhanzl
- Ateliér: Papundekl architekti
- Země: Česká republika
- Město: Praha - Ďáblice
- Projekt: 2022
- Realizace: 2022
- Užitná plocha: 67 m²