Panelákový byt proměnili v útulné hnízdo se saunou i zimní zahradou
Architekti z mladého brněnského studia Tvary během rekonstrukce obohatili standardní byt v panelovém domě o zimní zahradu i finskou saunu. Ukazují tak, že i na malém prostoru se dá bydlet atraktivně.
Adéla Vaculíková , 3. 7. 2022
Byt v panelovém domě s výhledem na Ostravu zaujme vzdušným a propojeným interiérem s minimalistickým vybavením. Ačkoliv se spojení paneláku a vzdušného prostoru může zdát jako oxymóron, bydlení architektů Ondřeje Slowika a Lucie Šponarové vás přesvědčí o opaku.
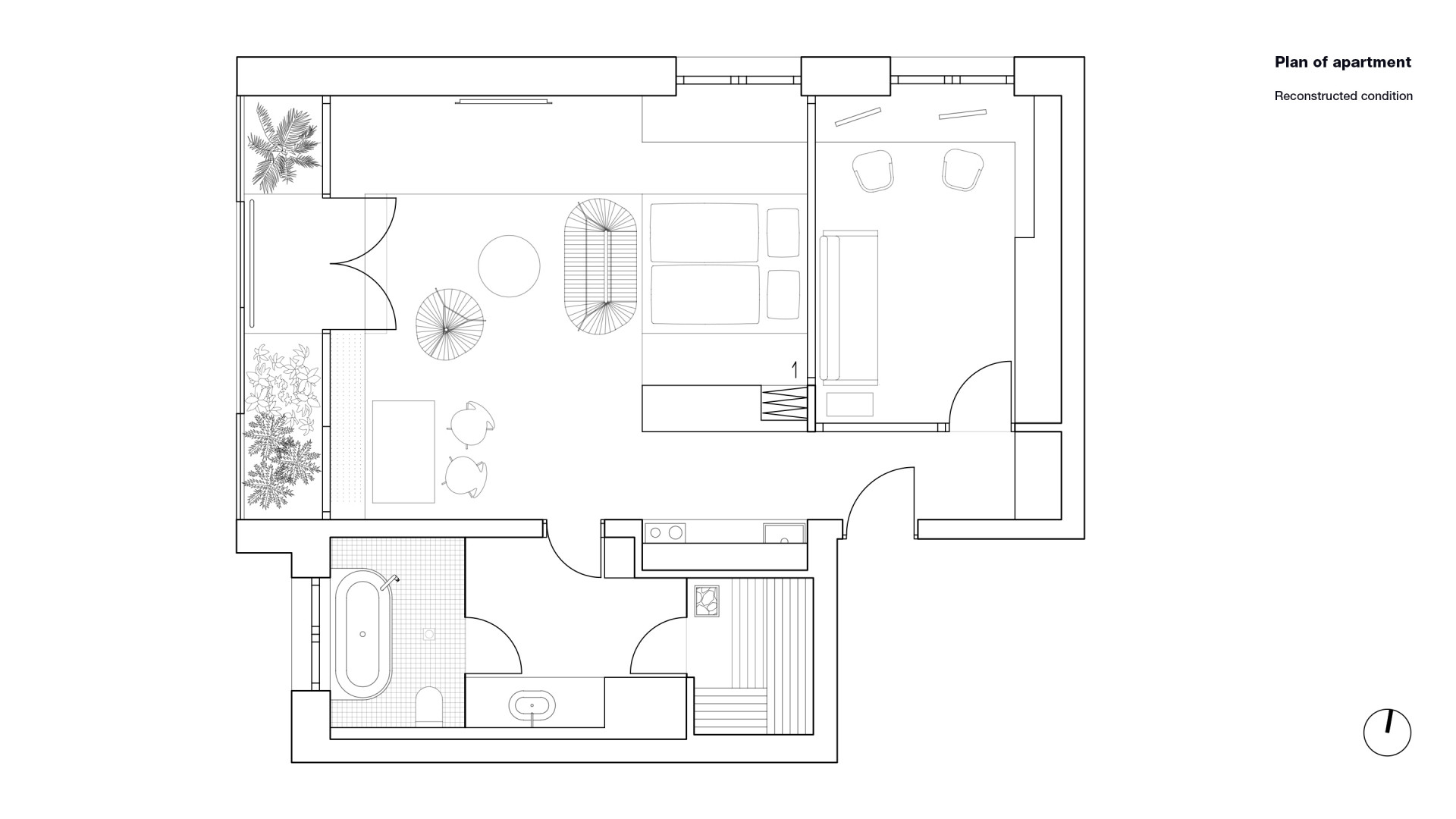
Byt o původní dispozici 3+1 je dnes velkorysým prostorem pro trávení volného času i práci. Vedle obytného prostoru, který zároveň funguje jako ložnice, se zde nachází samostatná pracovna, zákoutí s kuchyní a velká koupelna s finskou saunou.
Více k tématu
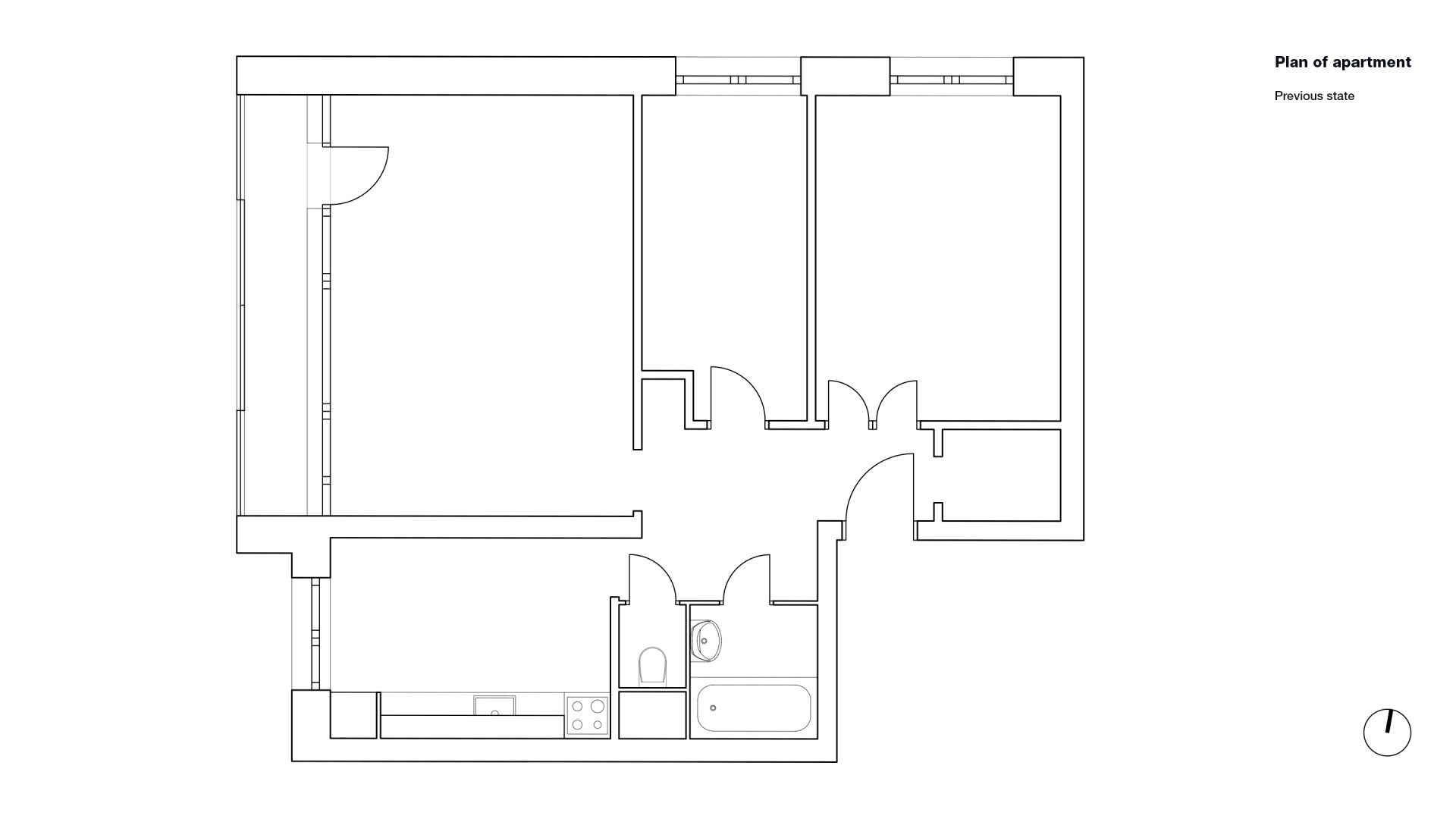
Na panelový byt opravdu rozměrná koupelna vznikla na místě původní kuchyně, ta je naopak nyní zapasována do výklenku mezi vstupním prostorem a víceúčelovým obytným pokojem. „Hlavní obytný prostor je vybaven lehkým, dobře přenositelným nábytkem a slouží jako jídelna, tělocvična, ateliér, herna pro virtuální realitu a k relaxaci po wellness i během dne,“ vysvětlují řešení prostoru Ondřej Slowik a Lucie Šponarová z ateliéru Tvary.
V řešení bytu byl kladen hlavní důraz na vytvoření čistě působícího prostoru. Panely jsou očištěny až na samotný beton. Nábytek na míru, který zaujme svým variabilním využitím, zase nechává zcela vyniknout dřevu, z něhož je vyroben.

Architekti v interiéru intenzivně pracovali s motivem propojení. Samostatná pracovna se od obytného prostoru odděluje pouze průsvitnou stěnou z polykarbonátu. „V případě potřeby je možné pracovnu opticky uzavřít skládacími okenicemi,“ vysvětlují autoři realizace. Velkou výhodou bytu se stala také rozměrná lodžie, která se táhne přes celou čelní stěnu obývacího prostoru. Panel, který dříve vnitřní prostor bytu od lodžie odděloval, byl seřezán a nahrazen skleněnou stěnou – dnes tak mezi nimi neexistuje žádná vizuální překážka. Na místě balkónu vyrostla zimní zahrada s dřevěnou platformou pro posezení, která jako by ničím nepřerušena přecházela zpět do interiéru a tvořila vyvýšené pódium pro postel.
Byt v domě z takzvaného bloko-panelového systému, který se u nás používal především v 80. letech, dostal pod rukama Ondřeje Slowika a Lucie Šponarové skutečně netradiční podobu. Je výbornou ukázkou toho, že i s malým prostorem se dá pracovat velkoryse. Podobné předsudky o bydlení v panelových domech dnes boří stále více architektů. Nedávno se to podařilo také Pavle Makovcové, která stojí za rekonstrukcí sídlištního bytu v Praze – podobně jako architekti ze studia Tvary došla až na dřeň konstrukce domu.

- Ateliér: Tvary
- Autoři: Ondřej Slowik, Lucie Šponarová
- Země: Česká republika
- Město: Ostrava
- Realizace: 2020