
Chaloupka na muří nožce. Nízkonákladová dřevostavba těží z koruny starého jilmu
Malá dřevostavba od architekta Martina Poldaufa je vybavená vším, co člověk pro příležitostné bydlení potřebuje. Můžete zde přespat, uvařit si nebo cvičit jógu na terase.
EARCH.CZ , 19. 7. 2022
Nízkonákladová dřevostavba si díky své sestavě vysloužila přezdívku „chaloupka na muří nožce“, jde však o stylové příležitostné bydlení, které se nachází na zahradě rodinného domu. Dřevostavba, která vyrostla hned vedle vzrostlého jilmu, je vybavená útulným interiérem, balkonem i terasou – představuje tak ideální místo, kam se člověk může schovat před světem. To ostatně bylo i předmětem zadání, které architekt Martin Poldauf z ateliéru PRAJAGA od investora dostal.
Více k tématu
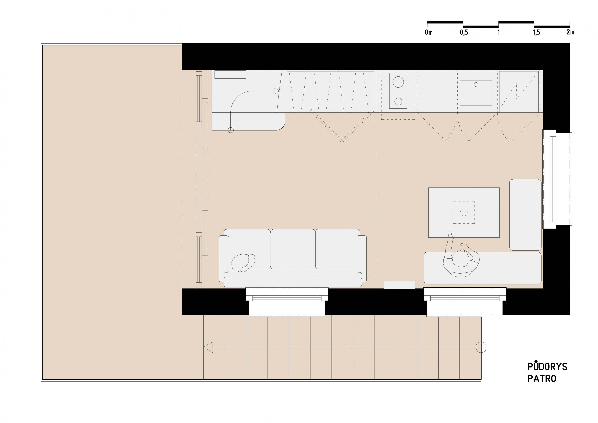
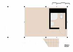
„Klient si přál postavit výměnek na zahradě, který by sloužil jako příležitostní bydlení pro některého člena velké rodiny,“ vysvětluje architekt. Podnož dřevostavbě tvoří hygienické zázemí, hlavní obytné prostory jsou umístěny v nadzemních podlažích. Centrem stavby je malá kuchyně propojená s obývacím pokojem, nad kterým se rozprostírá spací patro s okny přímo do korun stromů.

Dřevostavba je postavena na ocelové konstrukci, směrem ke svému okolí se pak obrací obložením z modřínových palubek. V interiéru zase převažují velkoplošné smrkové desky. Vše na závěr doplňuje střídmé vybavení s barevně sladěnými akcenty. Veškeré vybavení má černou barvu, která kontrastuje se světlým smrkovým obkladem.

Stavba je sice malá, má ale svou terasu i balkon. „Terasa v přízemí, která je vedle koupelny, je celoročně využívaná pro cvičení jógy,“ vysvětluje Martin Poldauf a dodává: „Balkón v patře je přístupný venkovním schodištěm. Z balkónu se vstupuje do místnosti s kuchyňskou linkou, jídelním stolem a rozkládací pohovkou. Mlynářskými schody je přístupné patro na spaní.“
- Autoři: Martin Poldauf
- Ateliér: PRAJAGA
- Země: Česká republika
- Město: Praha 4
- Realizace: 2021
- Dodavatel stavby: PENATUS s.r.o.