Přestavbou sedmdesátkové chaty vytvořili architekti skromný rodinný dům u Prokopského údolí
V obklopení zeleně na okraji Prokopského údolí v Praze najdeme malý rodinný dům, který vznikl totální přestavbou původní chaty.
Kristýna Korčáková , 13. 7. 2022
Architekti ze studia Prajaga přeměnili chatku z poloviny 70. let na rodinný dům poté, co se na ní podepsala prudká letní bouřka. Nešlo přitom o pouhou rekonstrukci, ale celkovou přestavbu. „Z původního objektu nakonec zůstala pouze část obvodových stěn a komín, ostatní prošlo radikální proměnou“, uvádějí architekti.
Dům těží ze své krásné lokality na okraji přírodní rezervace Prokopského údolí, zelené oázy jihozápadního okraje hlavního města. Z jedné strany je proto chráněn lesem, přičemž přírodní charakter okolí se také propsal do celkového pojetí stavby, která je usazena na vyvýšeném místě pozemku. Dům se tak rozhlíží do romantické zahrady s jabloní a jezírkem.
Více k tématu
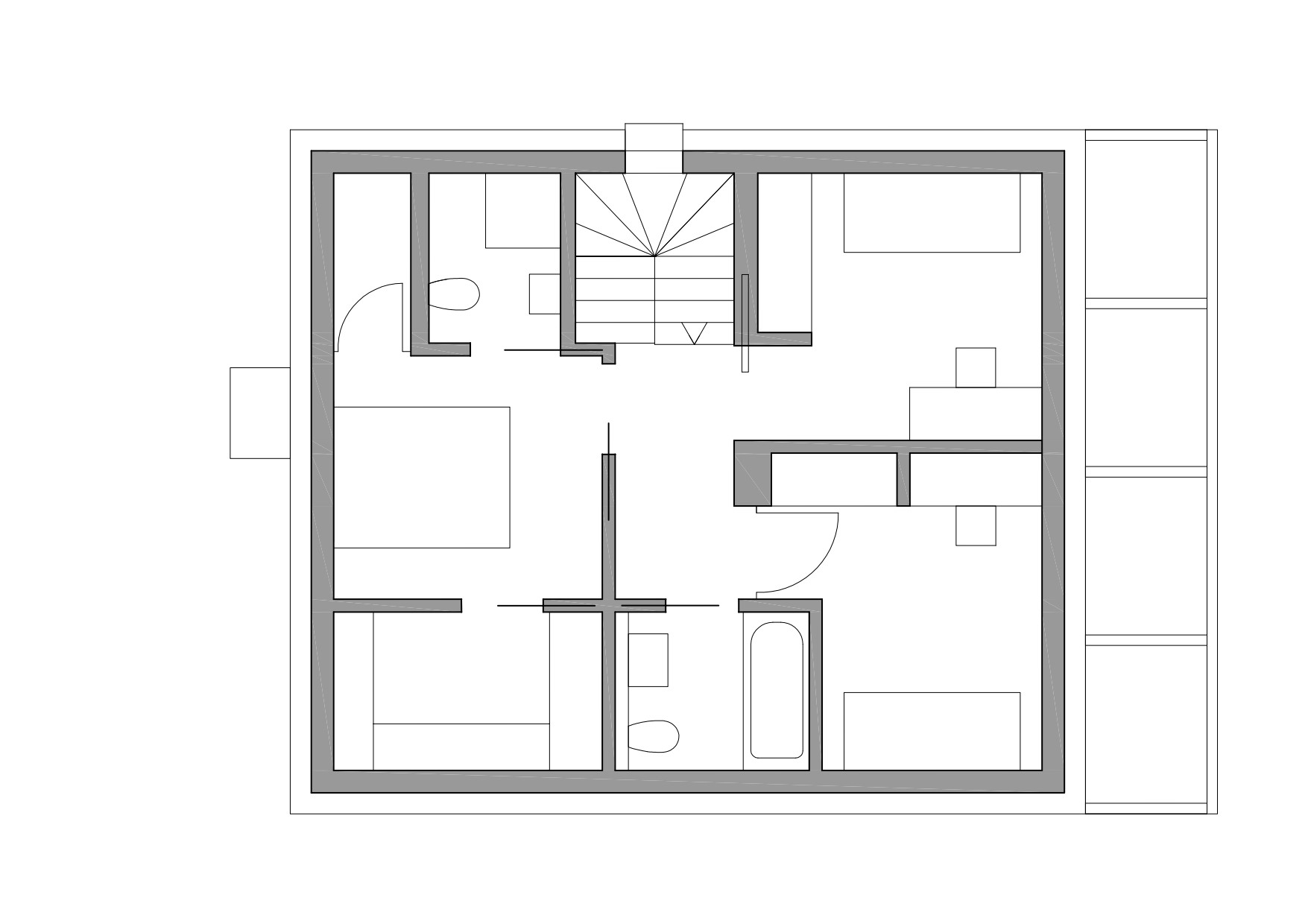
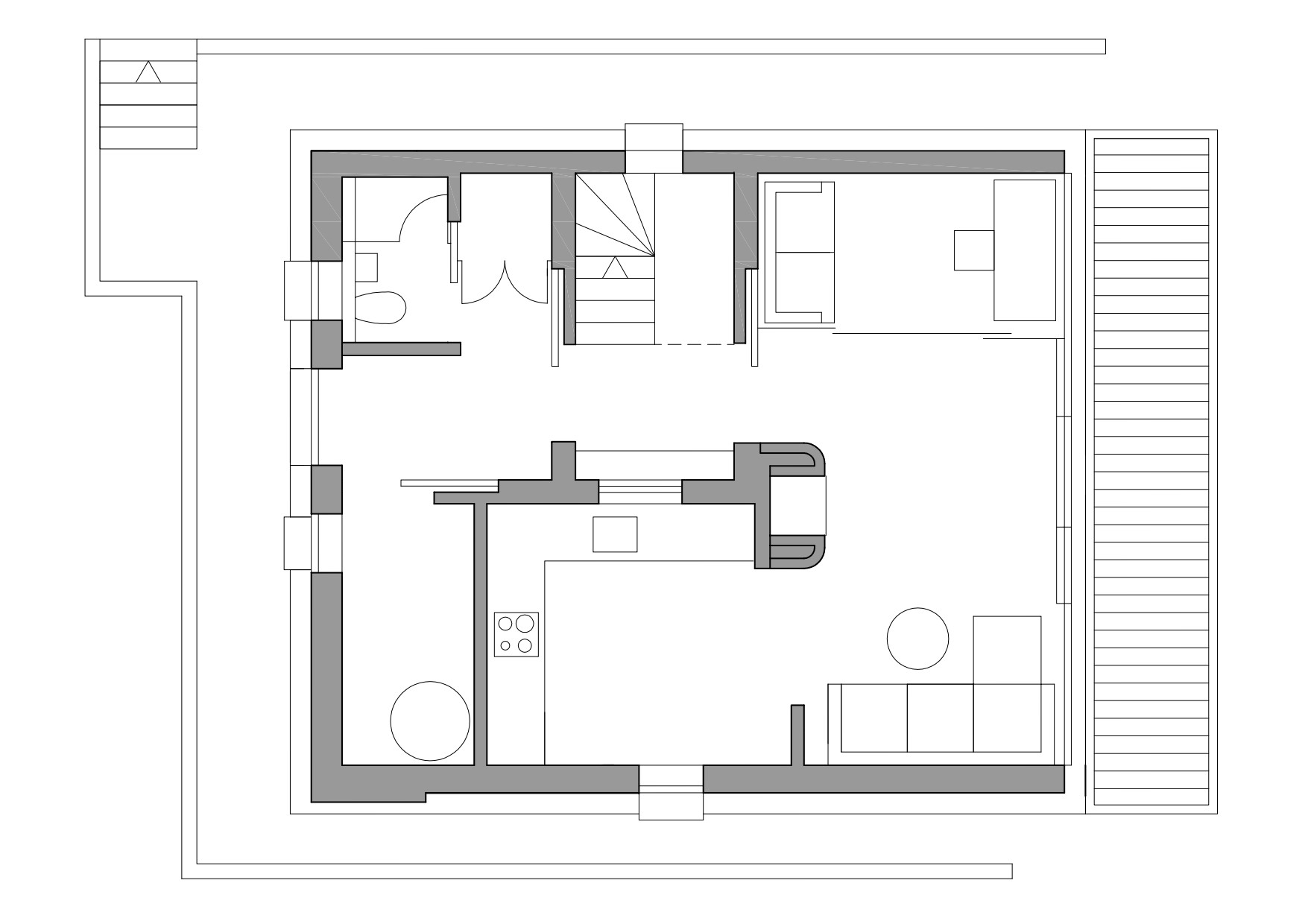
Dvoupatrová stavba se skromnou zastavěnou plochou 70 metrů čtverečních nabízí vše potřebné pro bydlení čtyřčlenné rodiny. V přízemí najdeme otevřený obytný prostor s kuchyní a jídelním koutem, odkud lze vstoupit do zahrady díky prostorné dřevěné terase se zabudovanou vířivkou. „Srdcem domu jsou krbová kamna, kolem kterých je uspořádaná celá dispozice domu,“ podotýkají architekti.
Soukromé ložnice včetně dvou koupelen a šatny se nachází v podkroví, kam denní světlo přivádí štítová i střešní okna. Interiér se celkově nese v neutrálních světlých odstínech, které rozjasňuje vybavení v syté žluté barvě.

Dřevo našlo uplatnění zejména v exteriéru – kromě terasy také v podobě schodů a malé paluby u biotopu, fasádního obkladu z modřínu i oplocení. Dům tak přirozeně zapadá do svého prostředí a majitelům nabízí poklidnou oázu.
- Ateliér: PRAJAGA
- Autoři: Martin Poldauf, Jaroslav Šaroun
- Země: Česká republika
- Město: Praha
- Užitná plocha: 91 m²
- Zastavěná plocha: 70 m²
- Návrh zahrady: Jana Midlochová, Dominika Surovcová