
JRA zrekonstruovali opuštěnou funkcionalistickou vilu architekta Starého ze 20. let
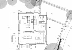
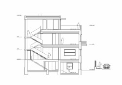
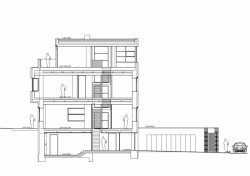
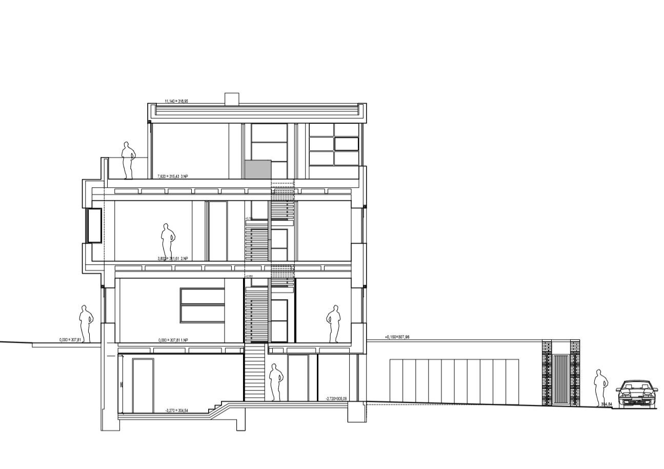
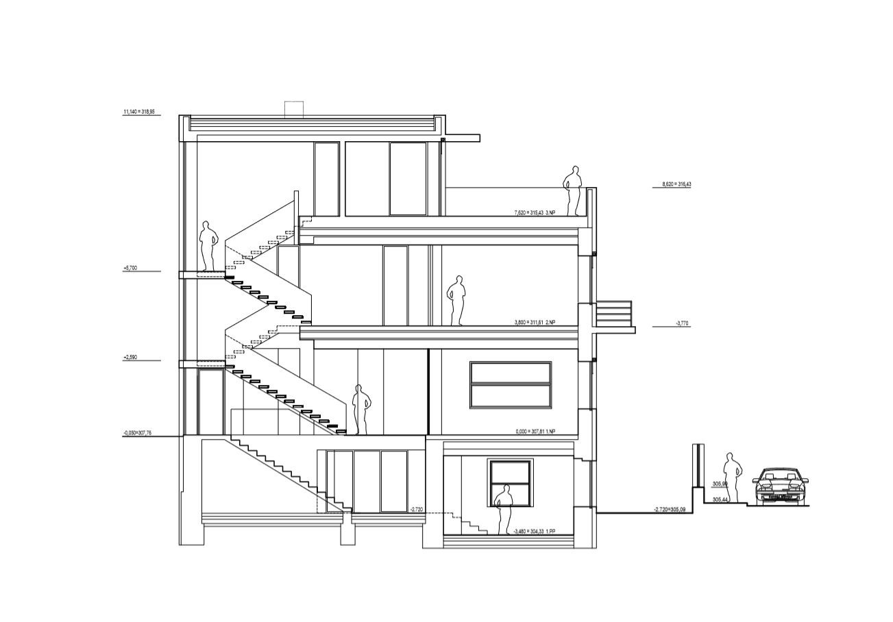
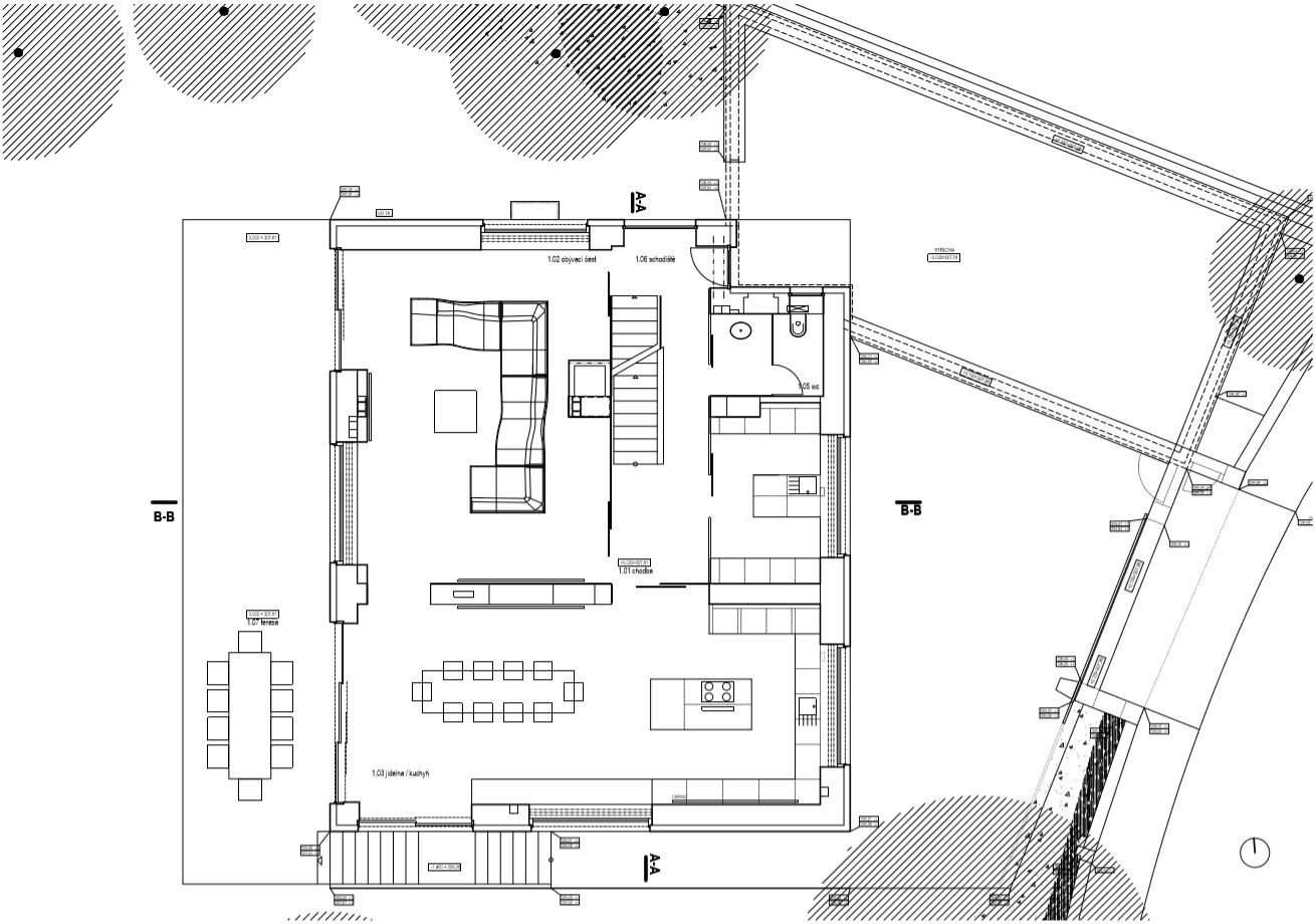
Vila, kterou koncem 20. let minulého století navrhl architekt Oldřich Starý pro vrchního radu ministerstva železnic, prošla rekonstrukcí podle návrhu ateliéru Jaroušek Rochová Architekti. Pokorný přístup a respekt, s nímž architekti k projektu přistoupili, navrátil vile původní charakter, obměněný pouze o drobné úpravy dispozice a přístavbu nové garáže. V celém návrhu hrají prim okenní otvory, které propojují dům s exteriérem a nabízejí obyvatelům velkolepý výhled na Pražský hrad.
JRA Jaroušek.Rochová.Architekti , 16. 10. 2018
- Ateliér: JRA Jaroušek.Rochová.Architekti
- Země: Česká republika
- Město: Praha
- Datum projektu: 2011
- Realizace: 2014