Architektura / veřejný prostor a urbanismus

MCA ateliér přestaví budovu Prioru v Jihlavě, zvítězil v soutěži na renovaci náměstí

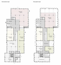
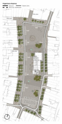
Architektonická soutěž na revitalizaci Masarykova náměstí v Jihlavě zná svého vítěze. Stal se jím ateliér MCA, jehož návrh porota ocenila převážně pro jeho řád, čitelnost a velkorysost. Vize architektů nepočítá s razantní změnou stávajícího konceptu náměstí, ale spíše s jeho doplněním a posílením. Zásadní roli hraje přestavba bývalého obchodního domu Prior, o jehož osudu se už dlouhou dobu diskutuje. Prior vznikl v roce 1983 na místě několika měšťanských domů, k jejichž demolici došlo v 70. letech. Vzhledem k původnímu shluku domů se místu přezdívá Špalíček. Aktualizováno: Obchodní dům Jihlava (bývalý Pior) je ve vlastnictví soukromého majitele, podle podmínek soutěže tak měl návrh řešit prostor náměstí bez tohoto objektu. MCA ateliér do svého projektu obchodní dům zahrnul a ukázal, jakým způsobem by se podle architektů mělo s objektem pracovat.

MCA atelier , 16. 10. 2018

  • Autoři: Miroslav Cikán, Pavla Melková, Radek Novotný
  • Ateliér: MCA atelier
  • Spolupráce: Jiří Opl
  • Země: Česká republika
  • Město: Jihlava
  • Ulice, číslo: Masarykovo náměstí
  • Datum projektu: 2018
  • Spoluautor dopravního řešení: Ing. Jan Špilar
  • autor: MCA atelier *
  • publikováno: * 16. 10. 2018
  • zdroj: * Autorská zpráva

Mohlo by vás zajímat

Generální partner
Hlavní partneři