Nizozemské studio woonpioniers navrhuje recyklovatelné domy z přírodních materiálů
Indigo je modulární koncept pro realizaci ekologických staveb, na kterém už několik let pracuje tým mladých nizozemských architektů ze studia Woonpioniers. Domy se skládají z prefabrikovaných částí vyrobených výhradně z přírodních materiálů a lze je kdykoli zmenšit i zvětšit nebo rovnou rozebrat a převést na jiné místo.
EARCH.CZ , 17. 12. 2020
Základní myšlenku stavebního systému Indigo představuje snaha o maximální udržitelnost. Pro výstavbu domů proto architektonické studio Woonpioniers využívá pouze přírodní recyklovatelné a snadno obnovitelné materiály, jako jsou kromě dřeva také sláma, konopná vlákna, vlna nebo zemina. Cílem je totiž minimalizovat užívání umělých a toxických materiálů i produktů.
Více k tématu

Pokud jde o ekologickou šetrnost výstavby domů Indigo, zásadní roli hraje samotný modulární systém umožňující efektivní výrobu konstrukce i jednotlivých komponentů. Díky tomu dochází k redukci plýtvání materiálem a energií, prefabrikace pak umožňuje sestavení domu přímo na pozemku během jediného dne. V případě potřeby není problém stavbu následně demontovat a přesunout na jiné místo nebo její jednotlivé části ekologicky zrecyklovat. Domy lze dokonce zmenšovat či zvětšovat (dodatečným přidáním nebo naopak ubráním modulů) i po jejich realizaci.

Za vývojem systému Indigo stojí nizozemské studio Woonpioniers vedené mladým architektem Danielem Vannemanem, který se ve své praxi zabývá kromě architektury také produktovým designem. „Tento projekt na pomezí architektury a produktu zkoumá, jak ekologické a kustomizovatelné budovy mohou lidem zajistit zdravější bydlení. Indigo se vyhýbá univerzálním řešením. Díky zapojení klientů do fáze návrhu se otevírá prostor pro přizpůsobení domu specifickým potřebám majitelů i kontextu místa. Nenajdeme tak dva stejné objekty,“ vysvětluje Vanneman.

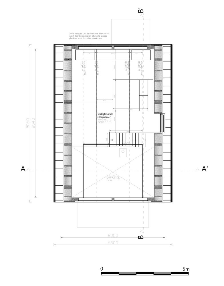
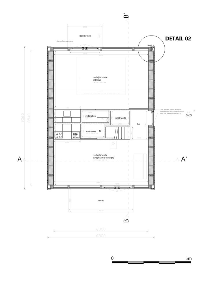
Woonpioniers už zrealizovali několik takových objektů pro různé způsoby využití. Ateliér sochařky o ploše 80 metrů čtverečních nabízí otevřený interiér, kde je veškeré potřebné zázemí integrováno do centrálního vloženého bloku a díky tomu mají obytná část v přízemí i vyvýšená pracovna přímý kontakt s celoprosklenou fasádou nabízející nerušené výhledy do okolí. Jiný příklad představuje rodinný dům ve vesnici Barchem, kde společenskou a ložnicovou část odděluje prostorná hala. Dům s užitnou plochou 120 metrů čtverečních vyšel majitele celkem na 340 000 eur (je potřeba vzít v potaz, že suma zahrnuje nizozemské ceny práce a materiálu).
