
Nesmíme hromadit věci. Jakých bylo deset let v minimalistickém domě?
V jednom domě ateliér, v druhém bydlení, dohromady plocha jako jeden velký byt. I za svůj minimalismus získaly liberecké ZEN Houses vůbec první Českou cenu za architekturu. Bydlí v nich jejich autoři, architekt Petr Stolín a architektka Alena Míčeková. Navštívil je Filip Landa, šéfredaktor časopisu ERA21, a zjistil, že tu jsou spokojeni – i když jim říkali, že to tam dlouho nevydrží.
Filip Landa , 21. 4. 2025
Na úpatí Jizerek
To místo se změnilo. V okolí vyrostly nové domy a ploty. Naštěstí povyrostly i stromy a pozemek se nyní nenápadně ztrácí obklopen bujnou zelení. Čas líně plyne, v místě panuje téměř víkendová pohoda. Ale víkend není. To jen obyvatelé – a zároveň autoři – dvou panelových objektů zrovna odevzdali návrh do jedné architektonické soutěže a nyní si užívají zaslouženou chvilku odpočinku po pracovním výkonu s několika nocovkami.
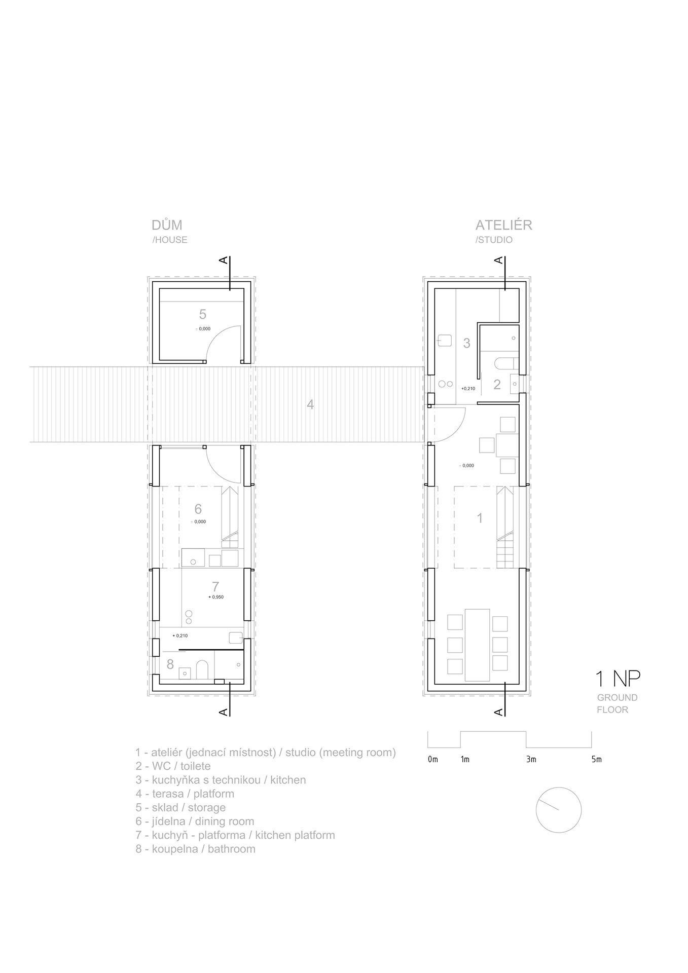
Nacházíme se na prostranství mezi dvěma téměř identickými, rovnoběžně stojícími kvádry, před námi mohutný rozvětvený strom. Na první pohled je mi jasné, že zde hraje zcela zásadní roli. Původně to ale mělo být jinak. „Na poslední chvíli jsme změnili koncept. Mimo jiné i kvůli tomu stromu, ale také kvůli většímu soukromí. Druhý modul měl k prvnímu objektu půdorysně přiléhat do tvaru ‚L‘ a naležato. Projektová dokumentace dokonce takto šla na stavební úřad,“ oznamuje Petr Stolín a z šuplíku vytahuje jednoduché makety domů, na kterých lze variabilitu systému ukázat. Zkolaudovat stavbu se architektům podařilo teprve nedávno. Po téměř deseti letech dotáhli změnu stavby před dokončením a montovaná skládačka tak konečně získá své číslo popisné. „Mezitím se změnil územní plán a maximální zastavěnost pozemku byla omezena na 15 %. Do tohoto limitu jsme se s výslednými dvěma moduly nastojato vešli naštěstí úplně přesně,“ říká architekt k malé parcele, jejíž koupě před více než patnácti lety vyšla mnohem levněji než v současnosti. Hranice CHKO Jizerské hory leží až o půl kilometru dál, pohybujeme se na těsné hranici mezi městem a úpatím rozsáhlého lesa s kamenným lomem. Na sousední parcele historicky stála velká německá vila, ale byla nahrazena novějším domem ještě před započetím realizace ZEN Houses.

Panelový zen
Filozofie, která spočívá v naprostém zjednodušení definice bydlení i výstavby, je zasvěcenému publiku známa. Autoři se rozhodli prozkoumat potenciál panelového rodinného domu ve chvíli, kdy je oslovila firma vyrábějící sendvičové panely SIP (Structural Insulated Panel). Při běžné stavební produkci domů s nepraktickými půdorysy i tvaroslovím se musejí panely ořezávat, čímž vzniká velké množství odpadu a realizace se prodražuje. Autorská dvojice firmě nabídla, že vytvoří několik prototypů, které budou pracovat přímo s výrobními rozměry 125 × 300 cm nebo 125 × 500 cm, z nichž lze bez jakýchkoli přířezů vytvořit celou sérii typových objektů.
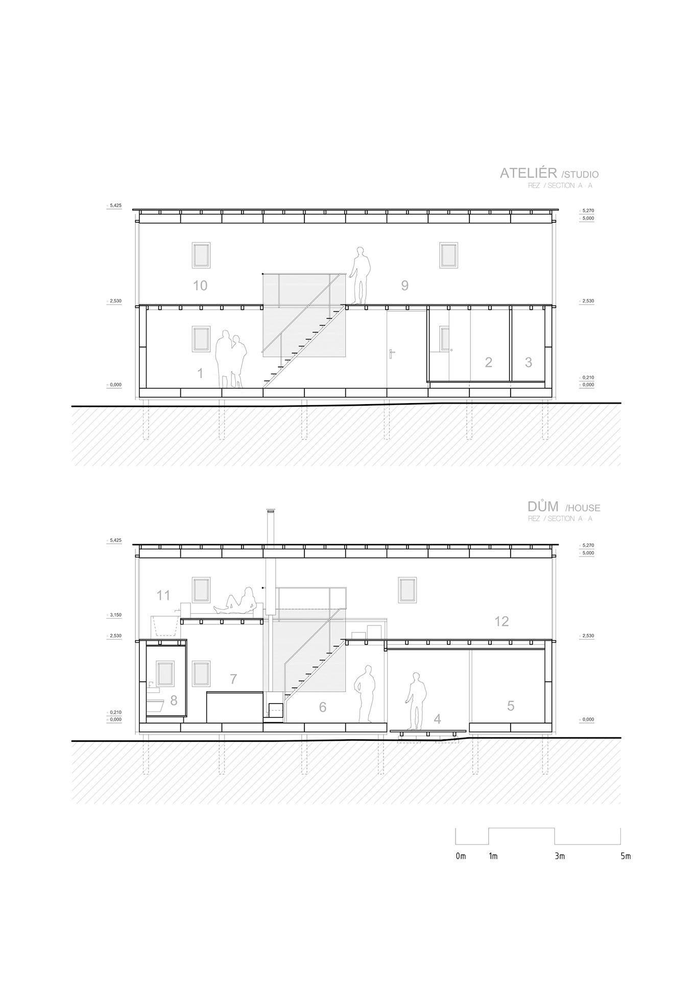
Když v roce 2011 postihla Japonsko zničující vlna tsunami, právě tento prefabrikovaný systém se zdál být vhodným řešením pro rychlou a levnou výstavbu minimálního bydlení sloužícího lidem zasaženým katastrofou. Projekt mezinárodní pomoci se nakonec kvůli složité administrativě nepodařilo zrealizovat, a tak si první dva experimentální domy postavili architekti sami pro sebe. Vytvořili dvě jednoduché stavebnice 3 metry široké a 5 metrů vysoké, dlouhé podle potřeby v násobcích 125 cm, zde konkrétně 12 metrů. Protože má panel z OSB desek s izolací uprostřed tloušťku 21 cm, vnitřní šířka prostoru mezi dvěma stěnami je pouhých 258 centimetrů. Díky velkému prosklení a chytré kompozici strategických průhledů naproti sobě však interiér vůbec nepůsobí stísněně: obyvatelé mají neustálý vizuální kontakt s okolím i mezi oběma objekty navzájem a pět metrů široké venkovní atrium se pro ně stává dalším pokojem.
„Zjistili jsme, že i takto malý prostor se dá obývat. Je však potřeba trochu přizpůsobit svůj životní styl a priority. Když jsme se sem stěhovali, nebyl pro nás problém zbavit se všech přebytečných věcí, spíše je pak problém další věci nehromadit,“ říká Petr Stolín a Alena Mičeková přitakává: „Byli bychom radši, kdyby se nám podařilo prostor udržet mnohem prázdnější. Svádíme věčný boj s hromaděním věcí – jsme oba vášniví sběratelé různých předmětů. Původní idealistické představy jsme museli opustit. Ale aspoň nad sebou máme určitý bič, který nás nutí vybírat si jenom to, co je pro život skutečně důležité.“
Prohlídku začínáme v bílém ateliéru a rozhodně nemáme pocit, že by byl prostor zanesený zbytečnými věcmi. Oproti starším fotkám se jen nápadně zaplnil pokojovými rostlinami, což iniciovali hlavně studenti. „Chodí nám se pomáhat na praxi. Snažíme se je hlavně naučit uvažovat v prostoru při tvorbě fyzických modelů a zapojujeme je do celého procesu návrhu, ale jen u nekomerčních projektů,“ vysvětluje Petr Stolín, který je vedoucím Katedry architektury na FUA TU v Liberci.

Černá a bílá
Jak už bylo řečeno, kvádr fungující jako ateliér je uvnitř bílý. Druhému objektu, sloužícímu jako obydlí, naopak dominuje černá barva. Oba rezidenti se shodují, že na bydlení v černém interiéru si museli zvykat. Než se dostavěla obytná část, žili i pracovali v bílém domě. Před nastěhováním do sousední kostky uvažovali o provedení vnitřku z březové překližky, nakonec se ale rozhodli natřít OSB panely načerno. Kontrast barev tak umožňuje striktně oddělit práci od osobního života. „Černý interiér je velmi relaxační. Vyniknou v něm okna a pohledy ven, člověk si připadá jako v kině. Padne na vás klid a nechce se vám nic dělat. Oddělit prostor práce a odpočinku bylo ozdravné,“ popisují svou zkušenost majitelé a dodávají: „Často se nás lidé v souvislosti se zdejším deštivým podnebím ptají, kdy zastřešíme terasu spojující oba domy. Ale když kolikrát 12 hodin denně pracujete na počítači, rádi si pak na chvíli vychutnáte přírodu, klidně i ten déšť. V zimě si často prohazujeme zasněženou cestu mezi domovem a prací tam i zpět.“
Absence okapů způsobuje, že voda stéká volně po obvodu a částečně po laminátovém plášti, což ale vůbec ničemu nevadí. Sklolaminát přichycený na dřevěném roštu už není tak průhledný jako na počátku a při letmém pohledu lze snadno poznat, na kterých místech je fasáda nejexponovanější. „Stavba stárne, ale my se tomu nebráníme. Neradi používáme materiál, který je pořád stejný,“ říkají architekti k originálnímu fasádnímu systému, který později uplatnili i u dalšího projektu ověnčeného Českou cenou za architekturu (ČCA) – mateřské školy ve Vratislavicích nad Nisou (viz ERA21 #06/2018).

Hnacím motorem realizace byla snaha o co největší úspory. Okna jsou provedena jako slepené izolační dvojsklo kotvené kovovými prvky z hobbymarketu. Většina nábytku pochází z řetězce IKEA a zbytek tvoří originální sbírka. Rozvody jsou zde logicky tahané po stěnách a pod stropem. Na podlahu byla použita průmyslová penízková pryž a jednotlivá podlaží spojuje subtilní kovové schodiště se zábradlím z ocelového jeklu. Hrubá stavba se zvládla za několik dní. Lehká konstrukce domů je založena na mikropilotách o kruhovém průměru 18 cm. „Nechtěli jsme zabetonovat půl zeměkoule, dům je zkrátka snadno odstranitelný,“ poznamenávají autoři a připojují historku, když si dům prohlíželo kolemjdoucí dítě a hlásilo: „Mami, koukej, to je ale divný dům. Ani na zemi nestojí!“
Poprask na vsi
Místním starousedlíkům se stavba zprvu vůbec nelíbila, někteří se dokonce pokoušeli svolávat pomyslné uliční výbory a sepisovat proti ní petici. „Vyslechli jsme si různé věci. Postupem času se ale situace uklidnila, lidi si zvykli a dnes se sousedy udržujeme dobré vztahy, což je pro nás klíčové. Jednou se nám dokonce svěřili: ten váš dům se nám nelíbí, ale vás máme rádi,“ potvrzuje Alena Mičeková.
Původní vize, že se prototyp ujme a stane se z něj sériově vyráběná stavba, se nakonec nenaplnila. Výrobce panelů dokonce ani nevyužil prestiže ČCA k větší propagaci modulové výstavby. Zřejmě cílí na úplně jinou klientelu. „Pár poptávek na projekt přišlo, ale potenciální zákazníci z toho nakonec vždy vycouvali. Nikdo nenašel dostatek odvahy dotáhnout záměr do realizace, jenom my,“ domnívají se autoři. Architekt Petr Šmídek ve svém textu na Archiwebu nabízí paralelu s montovaným domem Karla Hubáčka, u něhož Petr Stolín na začátku své profesní dráhy dokonce pracoval. Autor legendárního vysílače na Ještědu se v šedesátých letech rozhodl vybudovat experimentální prefabrikovaný dům, který měl nabídnout levnou a rychlou variantu k panelákovým bytům. Traduje se, že v té době se však nenašel nikdo, kdo by byl ochoten v domě bydlet, a tak v něm Hubáček se svou rodinou zůstal spokojeně bydlet po dalších padesát let.
Více k tématu
A jak se tedy žije v ZEN Houses? „Nic zásadního bychom neměnili. Samozřejmě jsme museli ustoupit z některých svých představ, jak zde budeme žít asketicky. Primárně nám ale nešlo o pohodlné bydlení – říkáme si: hlavně neumřít na komfort,“ shodují se rezidenti. Koneckonců i co se týče tepelného komfortu fungují domy bez problému. Malá dřevostavba se v zimě rychle vytopí, v ateliéru se využívá elektrických přímotopů a v obydlí jsou krbová kamna. Velká okna zachytí ranní slunce a v létě chrání domy před přehříváním stín rozvětveného javoru. A k němu architekti podotýkají: „Doufáme, že tu s námi ještě dlouho vydrží, pomáhá spoluvytvářet ducha tohoto místa.“
Při zveřejnění realizace na Archiwebu v roce 2014 napsal kdosi do diskuze, že jsou ZEN Houses dlouhodobě neobyvatelné, že by chtěl znát názor majitelů na život v domě po několika letech a vzápětí jim předpovídá špatný konec. V textu výše poskytujeme odpověď a Petru Stolínovi a Aleně Mičekové přejeme řadu dalších úspěšných realizací.
Článek spolu s dalšími reportážemi z rodinných domů vyšel v časopise ERA21 #04 2023 Rodinné domy dnes II.
- Autoři: Petr Stolín, Alena Mičeková
- Ateliér: PETR STOLÍN ARCHITEKT
- Země: Česká republika
- Město: Liberec-Ruprechtice
- Investor: Petr Stolín
- Projekt: 2009–2011
- Realizace: 2012–2013
- Plocha pozemku: 500 m²
- Zastavěná plocha: 2 × 37,5 m²
- Užitná plocha: 58 m² (ateliér) + 52 m² (bydlení)
- Obestavěný prostor: 412 m³
- Náklady: 2,2 mil. CZK