
Nový pavilon základní školy v Mníšku pod Brdy nabízí kromě tříd i kulturní a společenské prostory
Základní škola v Mníšku pod Brdy se letos na podzim rozrostla o novou budovu. Nový pavilon vznikl jako reakce na potřebu místní základní školy získat další prostory pro výuku i volný čas dětí. Současně obec postrádala vhodné místo pro pořádání různých společenských a kulturních akcí. Polyfunkční budova podle návrhu studia Grido splňuje všechna tato kritéria.
Karolína Řeháčková , 5. 12. 2019
Zahradní altán jako inspirace
Pavilon vznikl ve vnitrobloku, který z jihu vymezuje stávající budova základní školy a ze severu paneláková zástavba. Vnitroblok nebyl nijak kompozičně pojednán, jednotlivá křídla, která ho tvoří, neměla jednotný objem ani výraz. Architekti z ateliéru Grido v čele s Peterem Sticzay-Gromskim se proto rozhodli přiblížit formu nové budovy zahradnímu pavilonu, který svým tvarem ani výrazem nenavazuje na žádnou z okolních budov. Pavilon má proto kompaktní tvar se zakulacenými rohy, což ještě více zesiluje jeho solitérní charakter.
Autoři navrhli pavilon mimo hlavní osu budovy školy tak, aby pomohl z východu dotvořit veřejný prostor před hlavním vstupem do školy. Pavilon zároveň stojí na jedné z přístupových cest k hlavní budově, takže parter přístavby vytváří jakousi živou pasáž, sloužící jak pro vstup do jednotlivých prostor nového pavilonu tak pro přístup k původní budově školy.
Více k tématu

Místo pro komunitní aktivity města
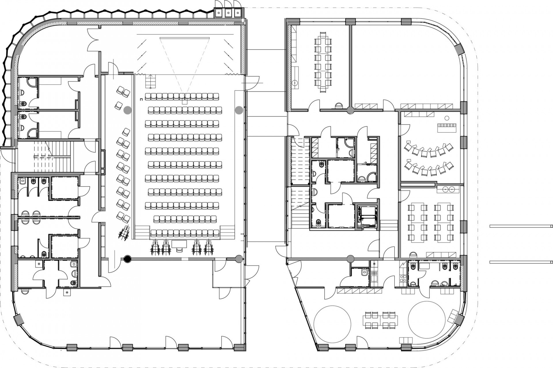
Třípodlažní polyfunkční objekt nabízí výukové prostory školy a družiny umístěné v horních dvou podlažích a kulturně-společenské prostory v přízemí. Nalezneme zde společenský sál pro 150-200 lidí, mateřské centrum, klubovny pro kroužky a spolky, samostatný cvičební sál s vlastním zázemím a v neposlední řadě také kavárnu. Snadný pohyb žáků i pedagogů mezi budovami zajišťuje spojovací můstek v druhém podlaží. Pavilon se tedy kromě svého prioritního účelu – poskytnutí prostorů pro expanzi školy a kulturu města – podílí také na vytvoření veřejného prostoru mimo centrální náměstí města.

Kombinace a kontrasty materiálů
Vzhledem k tomu, že hmota přístavby je poměrně objemná, snažili se autoři odlehčit alespoň její výraz. Toho dosáhli návrhem fasády s velkou plochou zasklení, navíc modelovanou z vnější strany texturou lamelových žaluzií. Použitá dřevěná treláž svou strukturou reaguje na článkování původní budovy školy s bohatou „krajkovinou“ zdobící atiku. Dřevěná konstrukce byla provedena ze sibiřského modřínu ponechaného v přírodním povrchu i odstínu. Aby dřevěná „krinolína“ zůstala pohledově křehká, navrhli autoři podklad z bílé silikonové omítky. Omítkové pásy lineárně obtáčejí pavilon, což zdůrazňuje jeho oblé tvary. Snahou architektů bylo současně potlačit převládající „horizontalitu“ budovy, takže s plochami omítky kontrastují tmavé vertikální pásy provedené z šedých vláknocementových desek Cembrit Patina. Tyto prakticky bezúdržbové vláknocementové desky jsou použity rovněž na obklad přízemní části budovy a spojovacího krčku. Desky s jemně broušeným povrchem přirozeně stárnou, což dodává budově postupem času osobitý vzhled.


- Autoři: Peter Sticzay-Gromski
- Ateliér: Grido s.r.o.
- Spolupráce: Jan Doubek, Ladislav Vendel, Sebastian Sticzay
- Země: Česká republika
- Město: Mníšek pod Brdy
- Datum projektu: 2015
- Realizace: 2019
- Užitná plocha: 2 489.00m2
- Zastavěná plocha: 1 016.00m2
- Materiál: Fasádní desky - CEMBRIT