
Architektura
/
interiér
Od každého trochu
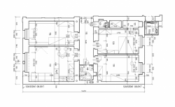
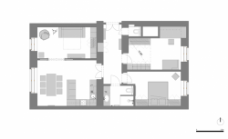
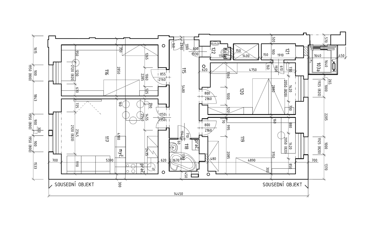
Rekonstrukce v Šumavské byla jednoznačně výzvou, která měla snoubit staré s novým. Hlavním požadavkem klienta totiž bylo zachování „původního“ rázu vinohradského bytu, který se nachází ve staré činžovní zástavbě. Vedle nezbytného moderního zařízení tak můžeme najít renovované dveře nebo stávající parketové podlahy. Paráda!
Mio architects , 16. 8. 2016
Více k tématu
- Autoři: Jana Šimánková
- Ateliér: Mio architects
- Spolupráce: Pavel Zezula
- Země: Česká republika
- Město: Praha 2 - Vinohrady
- Datum projektu: 2013
- Realizace: 2014
- Užitná plocha: 100.00m2
- Foto ©: Michal Červený