 
				
					
                    					1/20
				
			 
						
				 
				
					Re-Born - soubor rekreačních objektů z námořních kontejnerů, Nedvěd architekti
                                            Foto: Filip Šlapal
                    					2/20
				
			 
						
				 
				
					Re-Born - soubor rekreačních objektů z námořních kontejnerů, Nedvěd architekti
                                            Foto: Filip Šlapal
                    					3/20
				
			 
						
				 
				
					Re-Born - soubor rekreačních objektů z námořních kontejnerů, Nedvěd architekti
                                            Foto: Filip Šlapal
                    					4/20
				
			 
						
				 
				
					Re-Born - soubor rekreačních objektů z námořních kontejnerů, Nedvěd architekti
                                            Foto: Filip Šlapal
                    					5/20
				
			 
						
				 
				
					Re-Born - soubor rekreačních objektů z námořních kontejnerů, Nedvěd architekti
                                            Foto: Filip Šlapal
                    					6/20
				
			 
						
				 
				
					Re-Born - soubor rekreačních objektů z námořních kontejnerů, Nedvěd architekti
                                            Foto: Filip Šlapal
                    					7/20
				
			 
						
				 
				
					Re-Born - soubor rekreačních objektů z námořních kontejnerů, Nedvěd architekti
                                            Foto: Filip Šlapal
                    					8/20
				
			 
						
				 
				
					Re-Born - soubor rekreačních objektů z námořních kontejnerů, Nedvěd architekti
                                            Foto: Filip Šlapal
                    					9/20
				
			 
						
				 
				
					Re-Born - soubor rekreačních objektů z námořních kontejnerů, Nedvěd architekti
                                            Foto: Filip Šlapal
                    					10/20
				
			 
						
				 
				
					Re-Born - soubor rekreačních objektů z námořních kontejnerů, Nedvěd architekti
                                            Foto: Filip Šlapal
                    					11/20
				
			 
						
				 
				
					Re-Born - soubor rekreačních objektů z námořních kontejnerů, Nedvěd architekti
                                            Foto: Filip Šlapal
                    					12/20
				
			 
						
				 
				
					
                                            Foto: eArch
                    					13/20
				
			 
						
				 
				
					Re-Born - soubor rekreačních objektů z námořních kontejnerů, Nedvěd architekti
                                            Foto: Filip Šlapal
                    					14/20
				
			 
						
				 
				
					Re-Born - soubor rekreačních objektů z námořních kontejnerů, Nedvěd architekti
                                            Foto: Filip Šlapal
                    					15/20
				
			 
						
				 
				
					Re-Born - soubor rekreačních objektů z námořních kontejnerů, Nedvěd architekti
                                            Foto: Filip Šlapal
                    					16/20
				
			 
						
				 
				
					Re-Born - soubor rekreačních objektů z námořních kontejnerů, Nedvěd architekti
                                            Foto: Filip Šlapal
                    					17/20
				
			 
						
				 
				
					Re-Born - soubor rekreačních objektů z námořních kontejnerů, situace, Nedvěd architekti
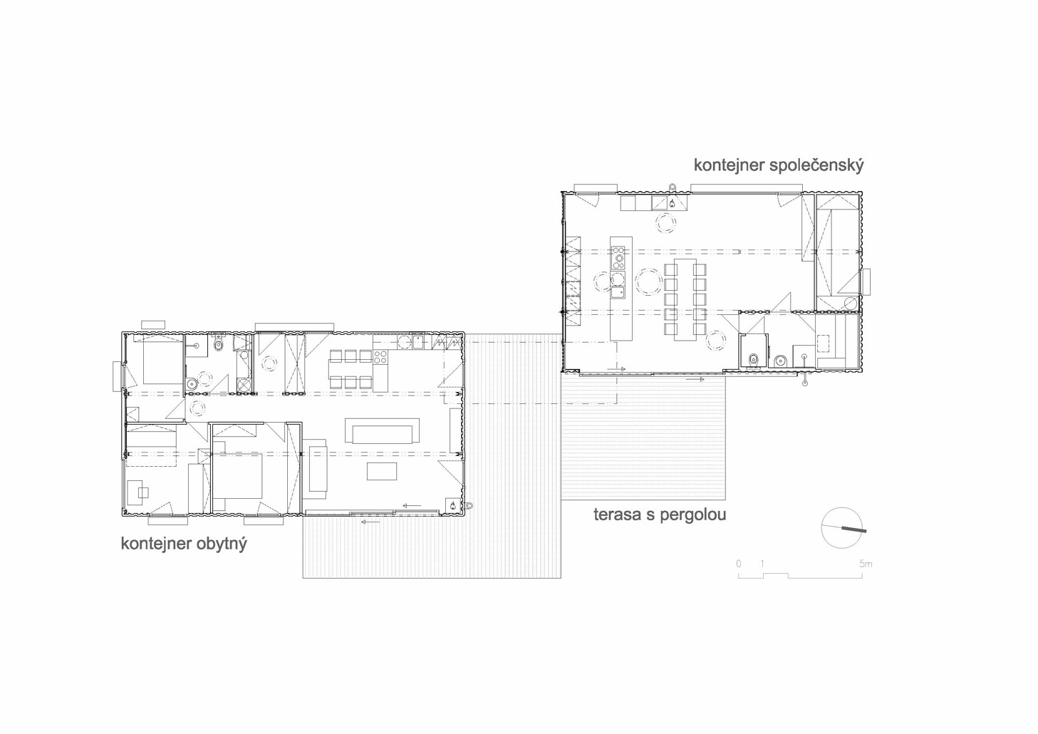
                    					18/20
				
			 
						
				 
				
					Re-Born - soubor rekreačních objektů z námořních kontejnerů, půdorys, Nedvěd architekti
                    					19/20
				
			 
						
				 
				
					Re-Born - soubor rekreačních objektů z námořních kontejnerů, východní pohled, Nedvěd architekti
                    					20/20