
Architektura
/
interiér
S mosazným nádechem
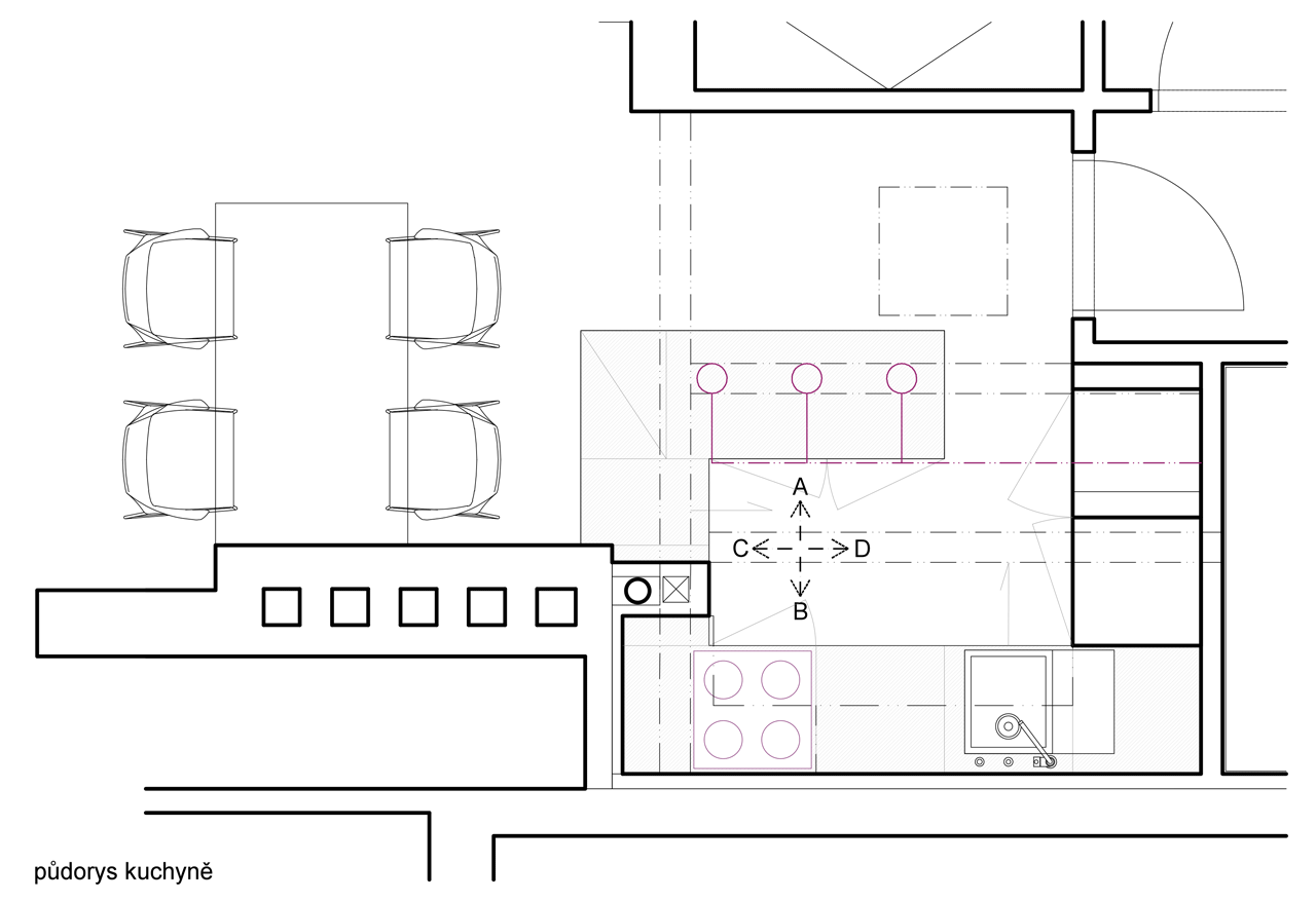
Návrh 2 malých koupelen a kuchyně v mezonetovém bytě na pražských Vinohradech svěřil mladý pár architektce Dagmar Štěpánové. Vzhledem k tomu, že majitelé bytu žili několik let v Londýně, byly jejich požadavky na řešenou část interiéru jakýmsi odrazem jejich pocitů z britského prostředí.
Formafatal , 9. 12. 2016
Více k tématu
- Autoři: Dagmar Štěpánová
- Ateliér: Formafatal
- Země: Česká republika
- Město: Praha 2 - Vinohrady
- PSČ: 120 00
- Datum projektu: 2015
- Realizace: 2015
- Užitná plocha: 14.40m2
- Foto ©: BoysPlayNice