Kanceláře, kde se navrhují silnice a mosty. Zázemí projektantů prošlo rekonstrukcí
Projektanti z firmy PUDIS tráví pracovní dny mezi silnicemi, mosty a křižovatkami. A to dokonce i tehdy, když zůstanou ve svých kancelářích – připomínají jim je zde nenápadně zpracované detaily, křižovatky jsou na svítidlech i obkladu stěny.
Adéla Vaculíková , 4. 2. 2026
Elegantní kancelářské prostory s decentně zpracovaným motivem silničních nájezdů pro firmu PUDIS navrhlo Studio COSMO. „Klíčovým motivem se stala geometrie loga symbolizující křižovatku, která se promítá do výrazných designových prvků interiéru,“ říkají architekti. S křižovatkou pracovali jako s ornamentem – objevuje se na obkladech stěn, nálepkách na vypínačích nebo v autorsky navržených svítidlech.
Kanceláře odrážející firemní identitu jsou častým zadáním větších zaměstnavatelů. Málokdy se to ale povede provést tak, aby ona identita všechno nepřehlušila. V tomto ohledu jsou kanceláře PUDIS pozitivní výjimkou. Motiv infrastruktury je přítomný, ale ne vtíravý – funguje jako nenápadná druhá vrstva, kterou člověk začne číst až postupně.
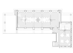
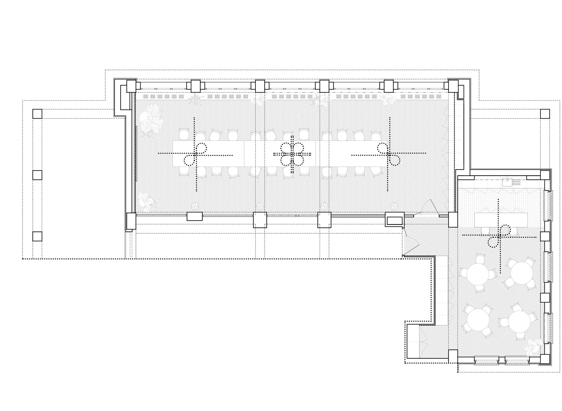
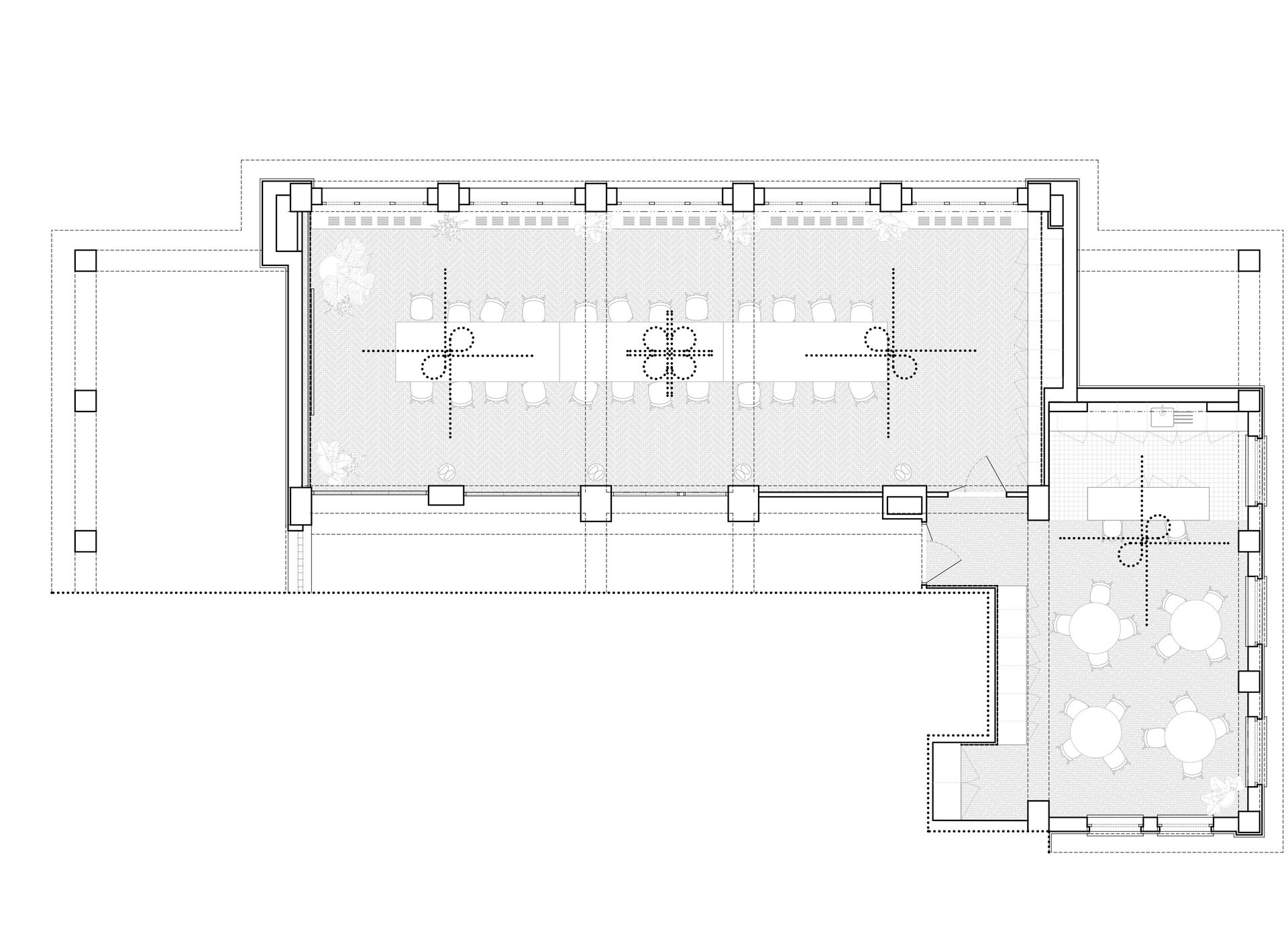
Rekonstrukce kanceláří zatím zasáhla jen část budovy. Šlo o první fázi postupné proměny devítipodlažního domu, ve kterém firma v Praze-Bubenči sídlí. „V úvodní etapě jsme se soustředili především na zázemí pro zaměstnance – prioritou byla moderní kuchyňka a kapacitní zasedací místnost,“ popisují architekti.

Nová kuchyňka splňuje to, co od ní firma a zaměstnanci potřebovali nejvíce – jelikož si do ní chodí nejčastěji na kávu, nechybí v ní kávovar, usazený na nový nerezový pult. Dále se zde dá ohřívat jídlo a postávat při tom u elegantního keramického ostrůvku. Kuchyňka je pro zaměstnance totiž taky místem pro neformální setkávání.
Více k tématu
Zasedací místnost zase zalévá světlo z velkých oken. Oproti kuchyňce pracuje s tlumenější atmosférou. Dubové podlahy souzní z dobou vzniku stavby a propisuje se sem také její železobetonový skelet, který jí dává její podobu. I sem se otiskl motiv firemního loga, propsal se na atypický MDF obklad v čele místnosti.
„Zásadním východiskem návrhu byl respekt k architektonickému charakteru budovy,“ doplňují architekti ze Studia COSMO. Výsledkem je nápaditá první etapa rekonstrukce. Další fáze mají na tento přístup navázat.
- Ateliér: Studio COSMO
- Autoři: Jiří Kabelka, Tereza Kabelková, Kristýna Vaňková
- Země: Česká republika
- Adresa: Podbabská 1014/20, 160 00 Praha 6-Bubeneč
- Realizace: 2024 – 2025
- Plocha pozemku: 1534 m2
- Zastavěná plocha: 643 / 162 m2 (objekt/část)
- Užitná plocha: 4178,5 / 150 m2 (objekt/část)
- Investor: Pudis
- Fotograf: Petr Moschner
- Nábytek na míru: Brick
- Nerezový obklad: Brick
- Výběr a dodání květin: Aneta Vachová, Pokojovky
- Stůl: HAY
- Židle, věšáky, stoly v kuchyni: Master and Master