
V podkrkonošské vesničce vznikl rodinný dům se skleníkem místo půdy
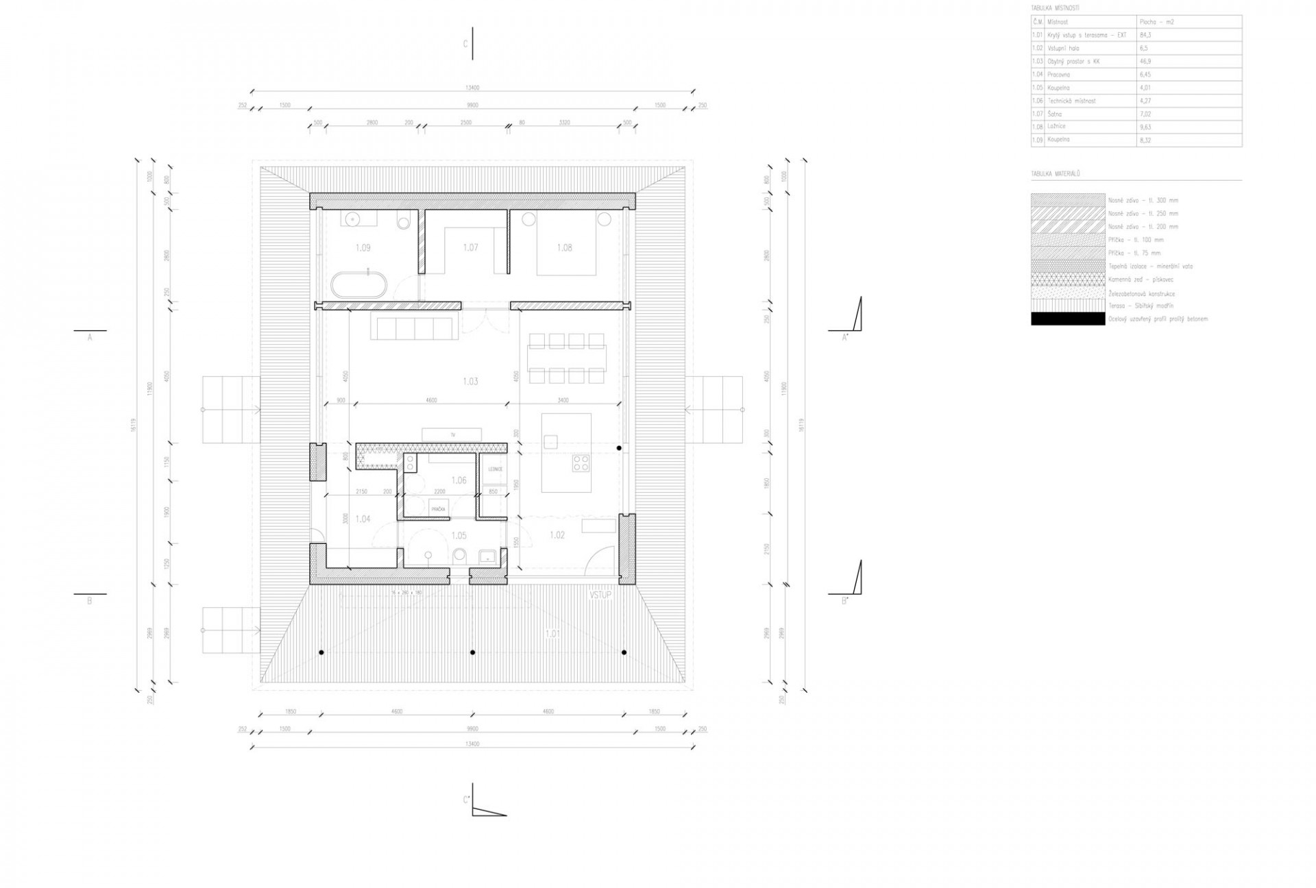
Hned v několika rovinách netradičně řešený rodinný dům vyrostl uprostřed ovocného sadu v podkrkonošské vesničce Chlum u Hořic. Celé druhé podlaží domu tvoří skleník na kaktusy, který uzavírá polovalbová střecha z dutinkového polykarbonátu. Architekt David Kazický tímto způsobem vyřešil hned několik problémů: skleník nijak nenarušuje výhled z domu do sadu, půdní prostor skleníku využívá zbytkového tepla z domu, investor navíc ušetřil náklady, které by padly na základy samostatného skleníku, a ještě se dostane z domu do skleníku "suchou nohou". Kontakt domu se sadem posiluje také fakt, že z každé místnosti včetně koupelny vede přímý vstup do zahrady.
RicharDavidArchitekti , 6. 1. 2020
- Autoři: David Kazický
- Ateliér: RicharDavidArchitekti
- Spolupráce: Jana Medková, Hana Medková
- Země: Česká republika
- Město: Chlum u Hořic
- Datum projektu: 2014
- Realizace: 2018
- Interiér: Jana a Hana Medkovy