Beton jako zadání. Stempel & Tesar navrhli vilu v Troji chráněnou před ruchem města
Nová vila v Troji staví na kontrastu – betonová hmota a hlučné okolí zvenku, za zdmi ovšem klid a soukromá zahrada. Navrhli ji Stempel & Tesar architekti, kteří se na rodinné domy specializují.
Sára Kročková , 7. 8. 2025
Pražská Troja je čtvrť plná kontrastů: v prudkém svahu se tu mísí starší vily z meziválečné éry, funkcionalistické domy, i současné realizace oceněné v architektonických soutěžích. Právě v této různorodé zástavbě vznikla na místě dlouho nevyužité proluky nová betonová vila, která si dokázala najít vlastní výraz.

Investor měl od začátku jedinou podmínku – beton měl být hlavním materiálem, přiznaným v exteriéru i interiéru. Tento požadavek zásadně určil výraz i konstrukci celého domu.
„Beton nevyplynul z diskuze, tento materiál byl jak v exteriéru, tak v interiéru jednoznačným požadavkem a zásadní prioritou klienta,“ popisují architekti. „Otevřela se tak příležitost využít jeho jedinečných vlastností a možností z hlediska hmoty, struktury i barevnosti.“
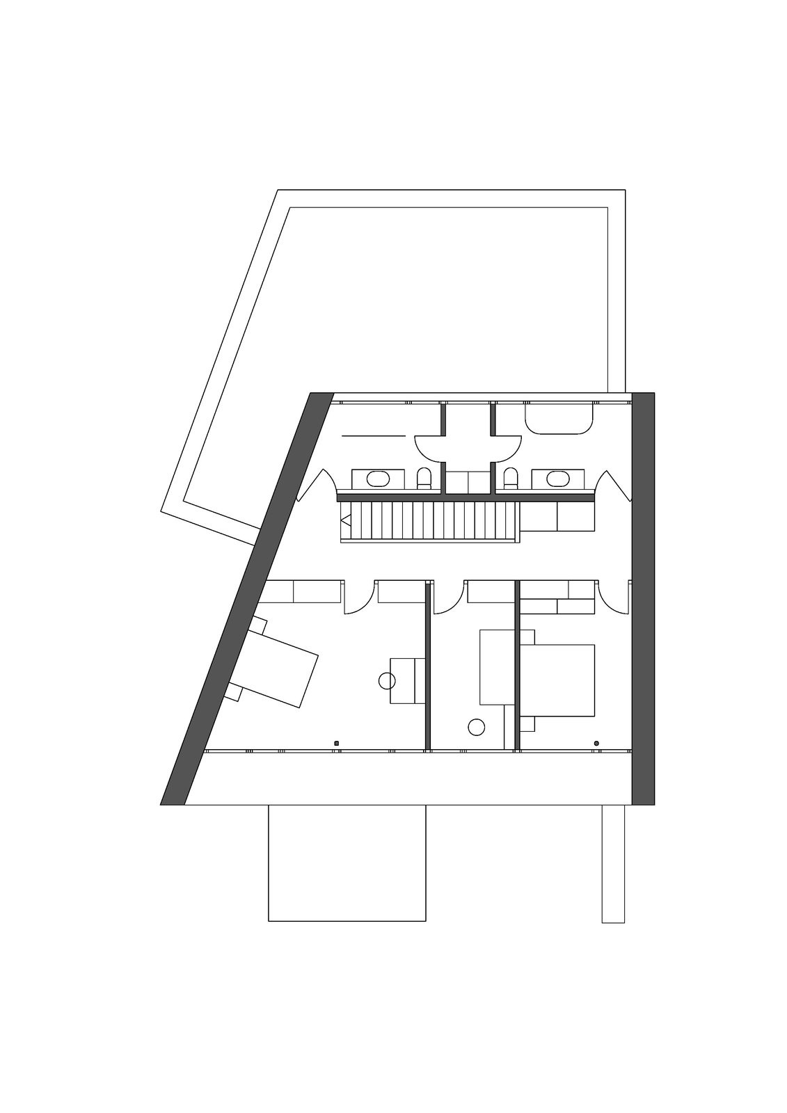
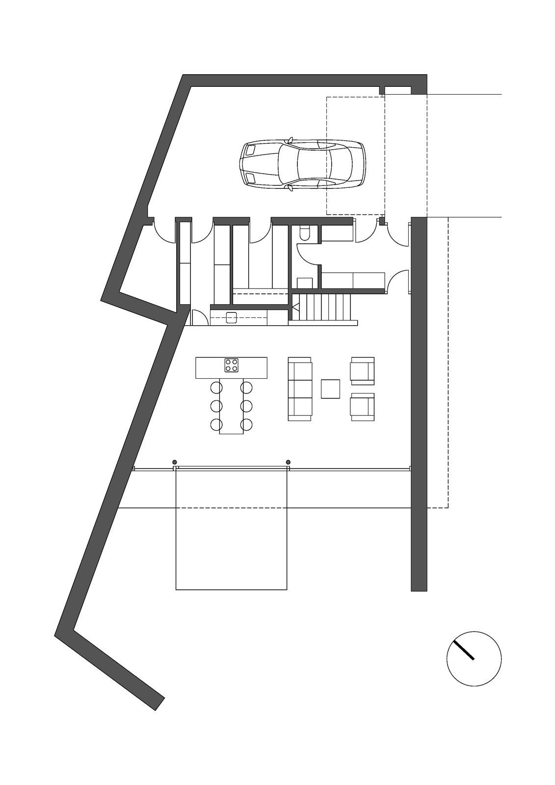
Pozemek nebyl jednoduchý – polovina z něj je nezastavitelná kvůli vedení hluboké kanalizace a z druhé strany vede tramvajová trať. Vila se proto stáhla více do svahu a ze severní strany působí jako jednopodlažní, ve skutečnosti ale nabízí dvě úrovně. Na jihovýchod architekti dům ochránili vysokými zdmi, jež tvoří hlukovou clonu pro obytné místnosti i zahradu.
„Hlavní nevýhoda blízkosti tramvaje nás přiměla dům z této strany zaclonit, aby byl chráněný před ruchem. Nejen interiér, ale i obytná část zahrady se díky přetaženým zdem staly dokonalou oázou klidu a soukromí,“ dodávají Stempel a Tesař.

Architektonický výraz vily stojí na kontrastu dvou odstínů a struktur betonu. Spodní podnož, odlité do prkenného bednění s pigmentem, má tmavý a plastický charakter, zatímco horní patro je světlé a hladké. V exteriéru i interiéru je využit pohledový beton v sendvičové konstrukci.
V interiéru hraje důležitou roli vestavěný nábytek z březové dýhy, který mu dodává teplo a jemnost. Minimalistické řešení pracuje s jednoduchými materiály, které se nemění v čase a nechávají vyniknout prostor. Díky tepelným vlastnostem betonu a stínění je uvnitř příjemné klima po celý rok.
Více k tématu
Nová vila v Troji je dalším příkladem rukopisu studia Stempel & Tesar, které patří mezi nejzkušenější české tvůrce rodinných domů. Na kontě mají už celou řadu oceněných domů a vil po celé republice a tento projekt opět potvrzuje jejich schopnost přetavit náročné zadání a složité podmínky pozemku ve funkční bydlení.
- Ateliér: Stempel Tesař architekti
- Autoři: Ján Stempel, Jan Jakub Tesař
- Země: Česká republika
- Město: Praha - Troja
- Projekt: 2019
- Realizace: 2025
- Zastavěná plocha: 162 m²
- Hrubá podlahová plocha: 282 m²
- Užitná plocha: 205 m²
- Plocha pozemku: 578 m²
- Fotograf: Filip Šlapal
- Hlavní inženýr projektu: Aleš Herold
- Krajinářský architekt: Terra Florida
- Tepelné čerpadlo: Nibe
- Podlahové vytápění: Rehau
- Světla: bomma
- Spotřebiče: BORA
- Vypínače: ABB
- Baterie: Axor, Schock
- Vana: Kaldewei
- Zařizovací předměty: Villeroy & Boch