Ze staré stodoly letní byt. Slouží na práci i odpočinek
Na začátku byl statek se starou nepoužívanou stodolou. Na konci je útočiště s výhledem do zahrady, kde jeho majitel může trávit celé léto - vejde se sem i home office.
EARCH.CZ , 29. 10. 2025
„Stodol je na venkově hodně a svůj účel už ztratily. Když se promění na bydlení, dostanou novou funkci a mohou dál sloužit, aniž by to narušilo ráz vesnic,“ říká architekt Matěj Nepustil - a stejně to vidí jeho kolegyně a kolegové z ateliéru Facha architekti. Tahle úvaha byla na začátku jejich práce pro klienta, jehož rodina vlastní usedlost v Lázních Bělohrad. Ve stodole vedle hlavní budovy mu navrhli letní byt. Jako IT odborník pracuje převážně na dálku, a tak tu může trávit hodně času a užívat si výhled do krajiny a blízkost přírody.

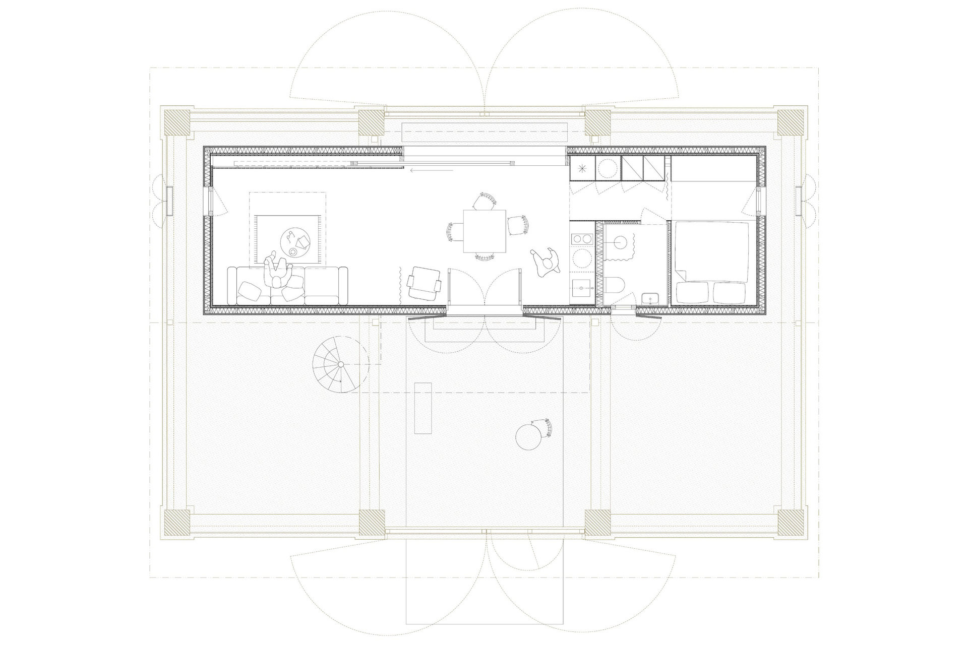
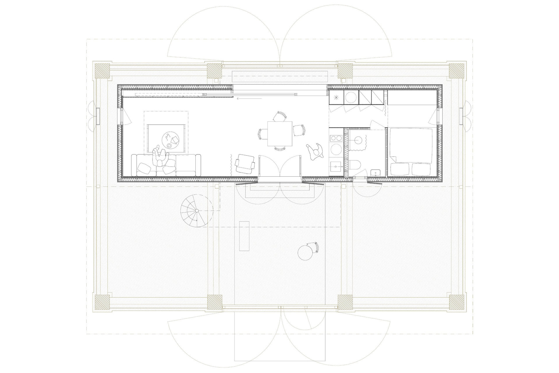
Jak architekti se stodolou pracovali? „Nechtěli jsme zasahovat do stávajících konstrukcí. Uprostřed stodoly byly nosné sloupy. Prostorové nároky záměru nebyly velké, proto jsme byt vložili jen do jedné poloviny,“ říká architekt Matěj Nepustil. Zároveň tak vznikl působivý průhled skrz mlat - střední část stodoly.
Obytný box má přes 40 metrů čtverečných užitné plochy. Obsahuje obývací pokoj s kuchyní, koupelnu a kóji na spaní. Interiér je obložený březovou překližkou, zařízení je převážně vyrobené na míru, aby se prostor optimálně využil. Vestavěný nábytek je z černě probarvené MDF desky, na podlaze je přírodní linoleum. V druhé polovině architekti rozvinuli „betonový koberec“, na němž se nachází sezení - venku, ale stále pod střechou. Na střeše boxu vznikla platforma, přístupná po točitém ocelovém schodišti.
Box je dřevostavba s difuzně otevřenou konstrukcí. Obálku tvoří OSB desky natřené asfaltovým nátěrem se skelnou tkaninou. Do zahrady se otevírá velkým posuvným oknem, menší okna jsou ve štítových stěnách. Když jsou okenice zavřené, nic nenapoví, že je uvnitř vložený nový obytný prostor byt.

Stavba to byla malá a experimentální, nebylo tudíž snadné sehnat dodavatele. Proto se části stavebních prací ujali sami architekti ze studia Facha. „Realizovali jsme fasádu, osazovali betonové bloky a dělali řadu dalších úkonů, na které nebylo možné sehnat vhodné řemeslníky. Hodně práce, především na opravě stodoly, si udělal také sám investor.“ říká další z členů ateliéru, architekt Martin Chlanda. "Klientovo odhodlání dotáhnout celý projekt bez ústupků do konce bylo pro výslednou podobu klíčové," dodává Matěj Nepustil.
Více k tématu
Přestavět si stodolu na bydlení tedy není úplně jednoduchý nebo standardní úkol. Podle autorů projektu však dává smysl: „Podařilo se vytvořit nový obytný prostor a zároveň ponechat zbytek pozemku nezastavěný a nenarušit ráz usedlosti,“ shrnují. Ukazují tím možnou cestu i dalším majitelům zdánlivě nevyužitelných stodol.
- Ateliér: Facha architekti
- Země: Česká republika
- Fotograf: Peter Fabo
- Realizace: 2025
- Město: Lázně Bělohrad
- dřevostavba: Drebo, Facha architekti
- Vestavěný nábytek: Amanoriginal
- ocelové schodiště a zámečnické prvky: Miriki studio
- fasáda a další práce: Facha architekti
- restaurování: Jan Somr
- Užitná plocha: 40 m2