
Rekonstrukce jako DIY akce. Stodolu v Pošumaví proměnili majitelé vlastníma rukama v letní útočiště přátel
Jedna pošumavská stodola, která byla v posledních letech hlavně skladem haraburdí, je dnes prosvětleným sezónním prostorem pro setkávání rodiny s blízkými. Na její rekonstrukci byly využity primárně ty materiály, které se na pozemku už nacházely, případně se sehnaly z druhé ruky.
Adéla Vaculíková , 11. 5. 2023
Stodoly do české krajiny patří. Spousta z nich už však ztratila své původní využití, narazit při procházce venkovem na rozpadající se objekty tohoto typu není vůbec těžké. Chátrající stavby často nahrazují novostavby, v posledních letech je ovšem možné sledovat trend rekonstrukcí stodol, kdy se mění v obytné domy nebo jinak využitelné objekty.
Rekonstrukce jsou pro současnou dobu důležitým tématem. Pokud jsou dobře promyšlené, šetří materiálové zdroje, finance a neprodukují zátěž pro životní prostředí v podobě odpadu. Projekt rekonstrukce stodoly, bývalé kovárny, v Pošumaví tohle vše splňuje. Stal se takovou velkou DIY akcí, která však probíhala podle uceleného konceptu. Projekt totiž vypracovali mladí architekti pro své kamarády, kteří ho pak dokázali svépomocí zrealizovat.
Více k tématu
„Rekonstrukce se prakticky celá odehrála svépomocí. Přizvaný tesař, který měl dílo realizovat, se bohužel nešťastně zranil pádem během prvního dopoledne na stavbě a klient tak nakonec téměř vše zrealizoval svépomocí. Dokumentace byla záměrně nakreslená co možná nejlapidárněji, což se v praxi velmi osvědčilo – rekonstrukci realizoval vlastníma rukama klient, který do té doby neměl s řemeslem takřka žádné zkušenosti a s naší drobnou asistencí si se vším poradil s až nečekanou noblesou,“ vypráví architekti Jan Holub a Tomáš Hanuš z ateliéru BYRÓ architekti.
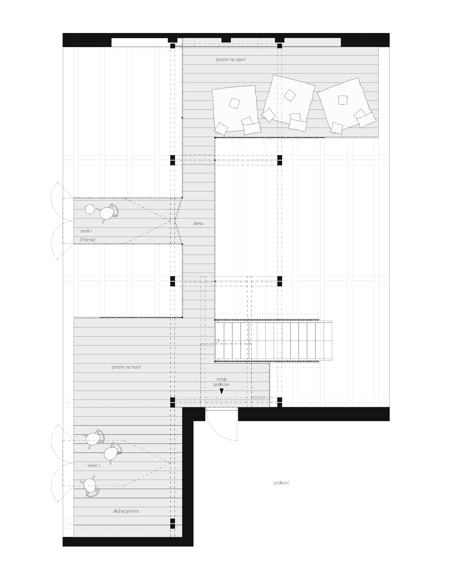
Objekt se už původně skládal ze dvou částí – obytné a stodoly. Tato podoba mu zůstala. Když se přistoupilo k rekonstrukci neobývané části, měla se stát sezónním prostorem pro setkávání. Ten je dnes maximálně vzdušný a lze ho propojit s přírodním okolím. V interiéru se nacházejí pouze surové materiály – kameny, dřevo, cihly. Půdorysně jsou definované tři zóny – vstupní, pobytová, skladovací –, které subtilně oddělují dřevěné paravány, nejde o nepropustné příčky, ale pocitové vymezení prostoru.

„Vnitřní prostor stodoly, který byl zaskládaný až po hřeben, jsme se snažili co nejvíce otevřít, prosvětlit a doplnit subtilními, pokud možno nenápadnými zásahy. Nedokončený pásový vikýř instalovaný v devadesátých letech jsme odstranili a nahradili ho prosvětlovacími šablonami, které do stodoly přinášejí proměňující se světlo po celý den,“ popisují architekti.
Rekonstrukce velké stodoly vyšla stavebníky na necelých 500 000 korun. Velký vliv na to mělo uvědomělé zacházení s materiálem. Cílem bylo využít co nejvíce z toho, co se na místě a v jeho okolí už nacházelo. Většinu dalšího materiálu se podařilo sehnat z druhé ruky.

„Na celém projektu pro nás byla také zajímavá práce s chybami a nedokonalostí, jejíž míru jsme chtě nechtě museli přijmout a která se pro nás po čase stala výzvou, a dokonce i kvalitou. Od počátku jsme věděli, že zachránit se dá jenom něco a z domu se nikdy nevznikne ‚dokonalá architektura‘ – domníváme se ale, že na jeho kvalitě to nikterak zásadně neubírá,“ říkají architekti.
Jelikož se při rekonstrukci používaly převážně tradiční a surové materiály, nové vrstvy s těmi původními nijak výrazně nekontrastují. Odlišovat staré od nového zde nebylo podstatné, důležitější byla lokální podmíněnost a recyklace materiálu. Přísnost v tomto případě nahradila intuice a odborníky samouci. Pro kvalitní výsledek bylo zapotřebí promyšleného impulzu a průběžných konzultací. Realizace se tak pohybuje v zajímavém prostoru. Není architektonickou koncepcí nepolíbeným projektem, kterých je v Česku stále většina, ani výsledkem, který dozorují a provádějí odborníci do posledního puntíku.
- Autoři: Jan Holub, Tomáš Hanus
- Ateliér: BYRÓ architekti
- Země: Česká republika
- Město: Zbytiny
- Zastavěná plocha: 276 m²
- Náklady: 500 000 Kč