Aplikační centrum BALUO
Účel objektu a funkční náplň
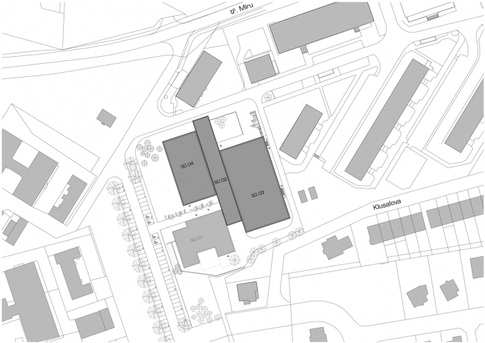
Stavba se nachází v zastavěné části města Olomouce, v areálu Fakulty tělesné kultury Univerzity Palackého. Od východu s řešenou plochou sousedí pozemky olomouckého letiště, od západu univerzitní koleje, z jihu pak navazuje zástavba rodinných domů. Vjezd do areálu je orientovaný ze třídy Míru, která v těchto místech na okraji města přechází v okresní silnici směr Ústín a Těšetice.
Nové využití pozemku logicky navazuje na areál Fakulty tělesné kultury a svou náplní tento vhodně doplňuje. V dokončeném komplexu se bude snoubit hned několik možností využití. Tou základní je výzkum se sportovně-medicínským využitím a především s procesem výuky.
Návrh urbanisticko-architektonického řešení areálu vychází ze skutečností daných aktuálními parametry řešeného území a především z charakteru okolní zástavby. Celá koncepce je řešena v souladu s platným územním plánem a také v souladu se zadáním objednatele tak, aby byl naplněn program nového využití řešeného území.
Celý komplex se skládá ze 4 budov a z důvodů financování se dělí na dvě samostatné investiční akce. První je Aplikační centrum BALUO v areálu Fakulty tělesné kultury UP v Olomouci, která obsahuje 3 nedávno dokončené, druhou akcí je Centrum kinantropologického výzkumu Fakulty tělesné kultury Univerzity Palackého v Olomouci, která se bude realizovat v následujících letech. Nový areál bude tedy ve výsledku tvořen jednou rekonstruovanou stávající budovou (bývalá prádelna – SO.01 – budova A, která zatím není realizovaná) a třemi novými objekty, které na ni bezprostředně navazují.
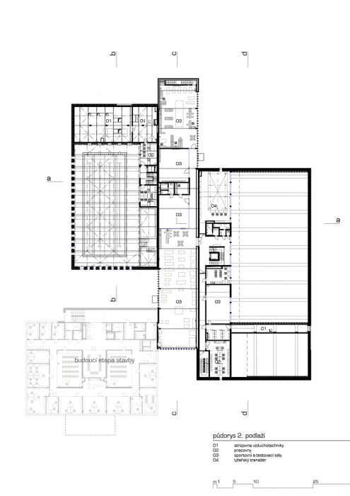
První budovou zrealizované části projektu je SO.02 BALUO – budova B sloužící jako hlavní vstupní objekt do komplexu. Do tohoto spojovacího koridoru vedou dva vstupy z exteriéru, a to od stávajících budov fakulty na východní straně, tak i od nově budovaného parkoviště na západní straně. Z interiéru jsou pak přístupné objekty C a D. V přízemí stavby se na severní straně nachází bufet, mezi oběma vstupy do objektů C a D je v organicky tvarované hmotě obložené dřevěnými lamelami umístěna recepce s hygienickým zázemím, zbývající plocha slouží jako respirium. Druhé podlaží slouží pro sportovní aktivity uživatelů a je rozděleno lehkými prosklenými akustickými příčkami na 4 cvičební sály s využitím typu spinning, jóga, lehké stroje, meditace. V jižním konci traktu je umístěn dětský koutek. Prosvětlení je zajištěno velkoformátovými prosklenými obvodovými stěnami. Část objektu je na jižní straně podsklepena. V těchto prostorech je umístěno technické zázemí objektu.
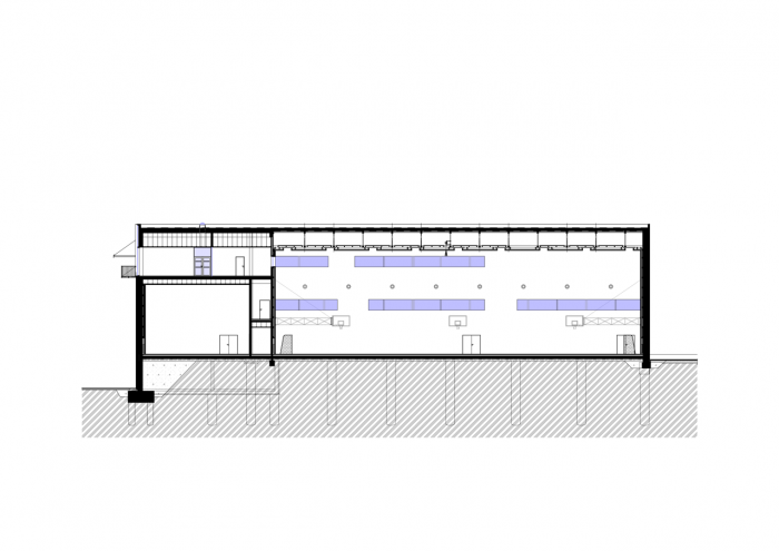
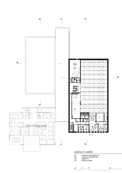
Na východní straně na budovu B navazuje SO.03 testovací hala – budova C. Tato je tvořena především prostornou testovací tělocvičnou určenou pro trénink míčových her za využití ojedinělé technologie, kde pomocí snímačů umístěných na obvodových stěnách lze monitorovat pohyb každého sportovce a analyzovat tak nejrůznější parametry jeho pohybu. Vedle hlavní haly se nachází menší testovací gymnastický sál, který je mimo jiné vybaven také cvičnou lezeckou stěnou. Podél velké haly je umístěn trojpodlažní trakt obsahující místnosti hygienického zázemí pro sportovní halu v přízemí. Ve vyšších patrech jsou pak umístěny místnosti prototypových dílen, testovacích laboratoří a pracoven pro výzkum. Jedna z místností musela být navržena s výškou přes dvě běžná podlaží, aby zde bylo možné umístit lyžařský trenažér,opatřený speciálním kobercem pro zajištění správného odporu sjezdovky. Příkrost i rychlost jízdy lze dle potřeby nastavovat. Nad menší testovací halou je ve třetím podlaží umístěno administrativní jádro pro správu objektů.
Na západní straně spojovacího koridoru budovy B je v logické provozní návaznosti umístěn objekt SO.04 testovací bazén – budova D. Zde je centrem objektu hala, ve které je umístěn velký plavecký testovací bazén o délce 25m se čtyřmi drahami a dva menší testovací bazénky. Jeden má funkci plaveckého tunelu a regulovatelným protiproudem, druhý pak funkci rekondiční s vyšší teplotou a bublery. Na tuto prostoru pak opět navazují místnosti hygienického zázemí a šaten. V suterénu je umístěno technické zázemí objektu a skladové prostory pro plavecké pomůcky. Druhé podlaží se rozkládá jen přes část zastavěné plochy stavby. Obsahuje strojovnu vzduchotechniky a dvě místnosti pro plaveckou školu a plaveckou laboratoř, které obě mají výhled do bazénové haly.
Konstrukční řešení
Všechny objekty jsou z konstrukčního hlediska řešeny obdobně. Založení staveb je řešeno pomocí vrtaných velkoprůměrových pilot, které jsou ve zhlaví doplněny o základové pasy a základovou desku. Nosné konstrukce tvoří železobetonové monolitické stěny a stropy, které jsou v místě velkých rozponů doplněny o ocelobetonové průvlaky a sloupy. Zastřešení hal v nejvyšších patrech jsou u menších rozponů tvořeny železobetonovými deskami, u velkých rozponů pak ocelovými příhradovými konstrukcemi. Všechny objekty jsou od sebe navzájem dilatovány.
Architektonicko-výtvarné řešení
Jednotlivé budovy celého areálu jsou tvořeny čtyřmi jednoduchými kvádry, které se navzájem liší svým provozním využitím a také svými hmotami. Z venkovní strany je vzájemná odlišnost zdůrazněna také materiálem použitým na opláštění jednotlivých budov. Kvádry tedy vytváří snadno čitelnou kompozici a plánovaná rozdílnost zdůrazňuje jednotlivá specifika objektů a také přispívá ke snazší orientaci osob v areálu.
Budova SO.02 je z velké části uzavřena mezi budovami SO.03 a SO.04, většina zbývajících fasád je tedy řešená jako prosklená pro prosvětlení interiéru. Prosklení je členěno na úzké vertikály, které jsou před skly doplněny o hliníkové stínící lamely pro redukci přímého oslunění. Na severní straně jsou prostory se zázemím uzavřeny plnými stěnami, které zvenku skrývá červená fasáda.
Objekt SO.03 je betonový kvádr testovací haly. Obě kratší fasády jsou prolomeny na celou výšku stavby dvěma prosklenými svislými prasklinami. Na jižní straně jsou navíc doplněny řadou úzkých oken prosvětlujících pracovny administrativního zázemí s trvalými pracovními místy. Plochy fasád z pohledového betonu jsou doplněny plastovými horolezeckými chyty. Tyto plní jednak funkci estetickou a na vybraných fasádních plochách budou skutečně využity k lezení. Hmota
SO.04 testovacího bazénu je stejně jako testovací hala svou podélnou osou orientována souběžně s osou vstupního respiria. Půdorysně rozlehlý prostor je prosvětlen lineárními svislými okny, která pocitově dodávají vnitřnímu prostoru potřebnou výšku. Fasáda je tvořena dřevěným obkladem, neboť dřevo je materiál související s vodou, s loděmi, s přírodním koupáním. Dřevo evokuje ve hmotě bazénu pocit plovárny v přírodě.
Stavba je i v rámci interiéru řešena ve snaze dosáhnout kvalitního funkčního řešení, které je však umocněno i jeho estetickým provedením. Jak na fasádách, tak i v interiéru se ve významném rozsahu opakují shodné materiály, a to pohledový beton přiznaný ve své surové formě, dřevo pouze opatřené proti rychlému stárnutí je preferované před jeho různými imitacemi a nakonec i sklo, jak čiré, tak mléčné v případě obkladů.
- Autoři: Miroslav Pospíšil
- Ateliér: atelier-r
- Spolupráce: Martin Borák, Daria Johanesová, Martin Karlík, Milena Koblihová, Robert Randys
- Země: Česká republika
- Město: Olomouc
- Ulice, číslo: třída Míru 117
- PSČ: 771 11
- Datum projektu: 2015
- Realizace: 2016
- Užitná plocha: 5 380.00m2
- Zastavěná plocha: 3 020.00m2
- Foto ©: Lukáš Pelech
Související projekty
Související architekti
Související ateliéry a firmy
Mohlo by vás zajímat