R

ROAR architekti + Tomáš Šebo - Rodinný dům Palárikovo

Rodinný dům od z pera architekta Tomáše Šeba a studia ROAR ve slovenské vesnici Palárikovo Foto: Matej Hakár

Pozemok s jedným z najtypickejších domov na Slovensku, štvorec 10×10 na 1,5 metrovom sokli. Tento typ dodnes prevláda v mnohých obciach a tvorí typické ulice, ktoré v dobe vzniku postupne vytlačili staršiu vidiecku zástavbu. Nájsť ho v pôvodnom stave je čoraz vzácnejšie, domy sú často prestavané či asanované a ulice tak strácajú svoj charakter.

Štvorcový dom po rodičoch rovnako nespĺňal súčasné priestorové nároky. Namiesto asanácie, či prestavby s doplnením chýbajúcich priestorov sme sa rozhodli pre jeho ponechanie ako súčasť charakteru ulice a požadované kapacity stavať za ním, ako to bolo kedysi prirodzené- postupnou pozdĺžnou dostavbou. Starý dom časom prejde citlivou rekonštrukciou a bude ďalej slúžiť ako dom pre hostí.

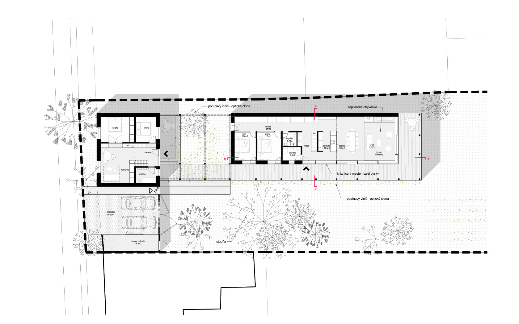
Adícia nového objemu umožňuje naplnenie požiadaviek a kapacít bez kompromisov s rešpektom k pôvodnej zástavbe. Dom sa svojím usporiadaním a hmotovou skladbou odvoláva na staré jednopodlažné pozdĺžne domy s gánkom. S typickým tvaroslovím pracuje v náznakoch. Jednoduchá dispozícia čo najviac ťaží zo záhrady, výhľadov a rozsiahlej prestrešenej terasy okolo celého domu. Dennej zóne dominuje svetlík, symbolicky tak akcentuje hlavný priestor domu, kde sa stretáva rodina a priatelia. Svetlík naviac osvetľuje priestor pri potrebe letného tienenia a vďaka komínovému efektu je priestor dobre vetrateľný. Časť podkrovia je zobytnená, prístupná skrytým schodiskom pre hostí a priateľov, figúra domu však ostáva jednopodlažná tak, ako to bolo pre tento dom typické.

Pozemok a vzťah medzi starým a novým domom ešte nie je plne zadefinovaný. Postupne sa má pridať pergola spájajúca domy, či prístrešok na autá, rozsah bude vychádzať z reálnych potrieb obyvateľom domu. Vzniknú tak rôzne atmosféry záhrady a jej zákutí. Najsúkromnejšia v časti pod pergolou medzi domami až po úplne otvorenú bujnú úžitkovú záhradu na konci pozemku.

  • Autoři: Patrik Kuva, Michal Romanec, Tomáš Šebo
  • Ateliér: ROAR architekti
  • Země: Slovensko
  • Město: Palárikovo
  • Použité systémy Schüco: okenní systémy Schüco AWS 75.SI, posuvný systém Schüco ASE 80
Generální partner
Hlavní partneři