Přístavba laboratoří a počítačového centra CzechGlobe

Dotčená lokalita se nachází v zastavěné části Brna – Staré Brno. Řešený objekt je umístěn jihozápadně od centra města Brna a je lemován ulicemi Poříčí, Rybářská a Bělidla. Ulice Poříčí je hlavní víceproudá frekventovaná komunikace. Ulice Rybářská a Bělidla jsou vedlejší komunikace s malým provozem.

Nový pavilon experimentálních technik v areálu Centra CzechGlobe v Brně zahrnuje centrální fyziologickou, izotopovou a metabolomickou laboratoř pro studium procesů asimilace uhlíku. Činnost Centra je zaměřena na problematiku ekologických věd, konkrétně na problém Globální změny, která svou podstatou a možnými důsledky přesahuje základní tematické segmenty: atmosféra – ekosystém – socio-ekonomický systém.

Architektonicko-urbanistické řešení

Zvolené řešení vychází ze současného stavu řešeného území. Na pozemku se dříve nacházely dvě, navzájem propojené dvoupodlažní budovy – objekty A a B, které tvoří uzavřenou hmotovou kompozici. Nový objekt tedy musí doplnit stávající budovy tak, aby všechny tři hmoty této sestavy tvořily společně jednotnou kompozici. Nejvhodnějším místem pro umístění nového domu je plocha nacházející se západně od objektu B. Samostatně stojící třetí nový objekt C je nezávislou hmotou a není se sousedními budovami nijak propojen, doplňuje kompoziční sestavu dvou stávajících budov do kompaktního urbanistického celku. Třetím pavilonem graduje nejen urbanistická kompozice, ale tento pavilon je současně výsledkem i symbolem dynamického rozvoje tohoto brněnského pracoviště.

Nová budova uzavírá blokovou zástavbu uvnitř areálu. Hmota stavby reaguje na okolní zástavbu, rozlohu pozemku. Objekt nekonkuruje stávajícím budovám, ale citlivě je doplňuje. Umístění domu ještě více vymezuje prostor vnitřního atria a dává mu komornější dimenzi. Při řešení nového objektu byla zohledněna také orientace budovy ke světovým stranám, neboť dům je řešen jako nízkoenergetický.

Linie severní fasády nového bloku je prodloužením téže fasády objektu B. Díky tomu je zachován průhled mezi domy od ulice Rybářské až po sousední budovu fakulty architektury. Zůstává rovněž vjezd do areálu z ulice Rybářské a tím je zachována jeho dopravně-zásobovací role. Stávající je i vstup z protější strany, tedy od fakulty, který bude vstupem převážně pěším. Na solitér nového bloku C navazuje členění venkovních ploch. Konkrétně plocha příjezdové komunikace a dále vnitřní klidová plocha mezi objekty. Po stránce provozně-technické je nový objekt napojen na stávající infrastrukturu areálu.

Budova má tvar kvádru, z něhož vystupuje směrem jižním prosklený blok skleníku, na severozápadní straně betonový blok trafostanice. Hlavní hmota je v parteru severovýchodní části „vyříznuta“ a zmíněné nároží levituje ve výšce 3,5 m nad terénem. Důvodem pro tuto úpravu je ochranné pásmo kanalizačního kolektoru, který vede pod objektem a nesmí na něm nic stát. Pohledový beton zdůrazňuje ryze vědecký, strohý, praktický, odolný, trvalý charakter domu a je dominantním materiálem nejen na plášti budovy, ale také v interiéru. Technický charakter budovy podtrhují také instalační rozvody, které jsou ve velké míře vedeny po povrchu konstrukcí stěn a stropů

Nosnou konstrukci horní stavby tvoří železobetonový deskostěnový systém. Jak vnější, tak i vnitřní stěny jsou ze železobetonu tloušťky 200 mm. Obvodové stěny mají proveden plášť ve formě sendvičové struktury. Mezi zavěšeným vnějším betonovým pláštěm a vnitřní nosnou stěnovou konstrukcí je vložena tepelná izolace. Vnitřní železobetonové stěny tloušťky 200 mm jsou nutné z důvodu tuhosti objektu.

Dispoziční řešení

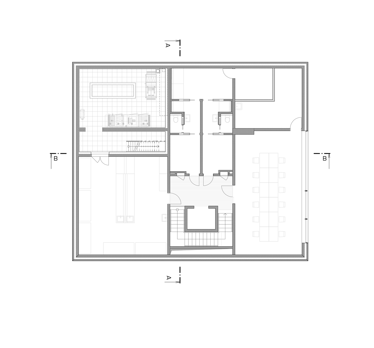
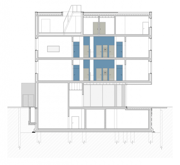
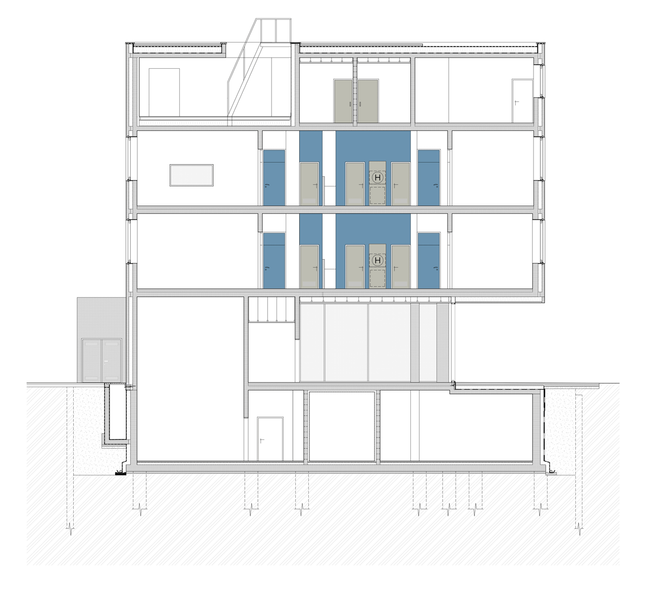
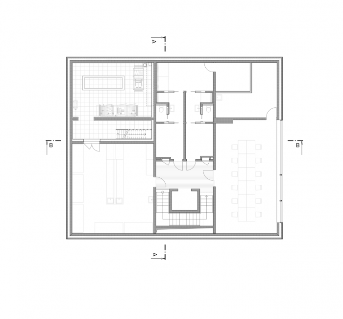
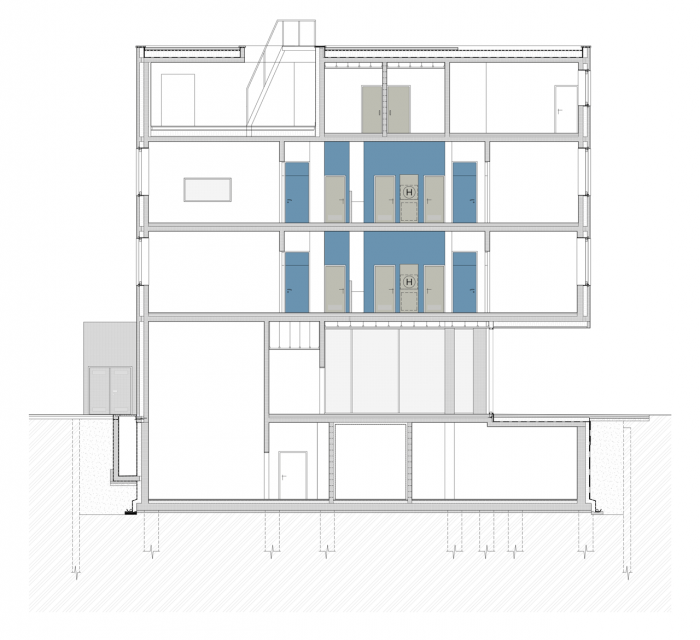
Navržený objekt má čtyři nadzemní podlažní a jedno podlaží podzemní. U severního průčelí objektu je navržena parkovací plocha se sedmi parkovacími místy. Hlavní vstup do objektu je situován na východní straně objektu v úrovni prvního nadzemního podlaží. Za prosklenou stěnou s posuvnými dveřmi se nachází vstupní hala s hlavním schodištěm, v jehož zrcadle je umístěn výtah. Ze vstupní haly je přístupná toaleta mužů a žen, skleník a hrubá dílna. V samostatném bloku na severu je umístěna trafostanice.

Z haly v suterénu jsou přístupné jednotlivé místnosti – sklad, laboratoř, technická místnost a temná komora, která je svojí světlou výškou přes dvě patra 1. PP a 1. NP.

Centrálním prostorem druhého a třetího podlaží je hala s tzv. cofee pointem uprostřed. Je to vymezený ostrůvek s kuchyňskou linkou a s možností posezení. Z centrálního prostoru jsou přístupné všechny místnosti v rámci podlaží, tedy jak místnosti s hygienickým zázemím, tak místnosti laboratoří a pracoven. Jednotlivé místnosti jsou od haly odděleny prosklenými stěnami s otvíravými dveřmi.

Ve čtvrtém podlaží je umístěna velká laboratoř s fytotronovými komorami, zasedací místnost (knihovna) a na venkovní terase vzduchotechnické a chladící zařízení.

Laboratoře

Laboratoř ekofyziologických studií je vybavena souborem přenosných přístrojů pro ekofyziologická měření (gazometrické systémy, fluorimetry, spektroradiometry) a stacionárních analytických přístrojů (spektrofluorimetr, Ramanův spektrometr). Izotopová a metabolomická laboratoř je vybavena kompletním systémem dvourozměrné plynové chromatografie s hmotnostním detektorem těkavých a snadno derivatizovatelných metabolitů, vysokotlakou kapalinovou chromatografií s hmotnostním detektorem pro stanovení netěkavých metabolitů a izotopovým hmotnostním spektrometrem pro stanovení poměrů stabilních izotopů v plynných i pevných vzorcích systému půda-rostlina-atmosféra a poměru izotopů ve vybraných metabolitech. Laboratoř je dále vybavena termogravimetrickým analyzátorem.

  • Autoři: Miroslav Pospíšil
  • Ateliér: atelier-r
  • Spolupráce: Martin Borák, Bořivoj Kovář
  • Země: Česká republika
  • Realizace: 2013
  • Generální dodavatel: OHL ŽS, a. s.
  • Město: Brno - Staré Brno
  • Ulice, číslo: Bělidla 986/4a
  • PSČ: 603 00
  • Datum projektu: 2011
  • Realizace: 2013
  • Užitná plocha: 1 480.00m2
  • Zastavěná plocha: 398.00m2
  • Foto ©: Ester Havlová, Aleš Ležatka
Generální partner
Hlavní partneři