Consequence forma - Sportovní hala Nový Hrozenkov

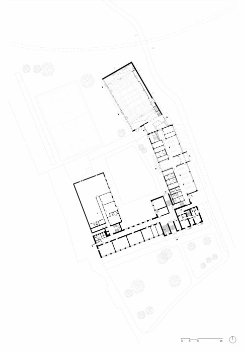
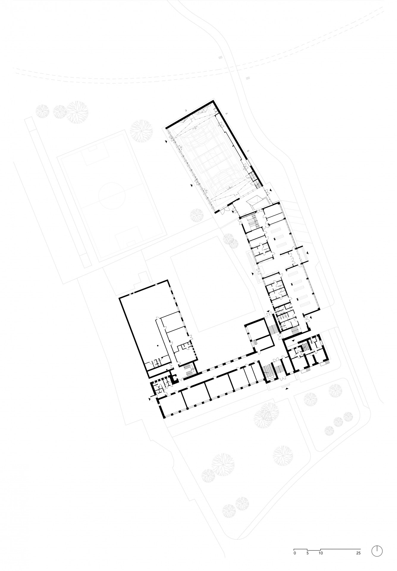
Sportovní hala se nachází v městysi Nový Hrozenkov v údolí řeky Bečvy, která se line Valašskou krajinou ve východním cípu Česka. Cílem architektů bylo přinést do vesnice současnou architekturu, která sem zapadne, ale také přinese něco nového a neotřelého. Projekt má více fází a zahrnuje nejen sportovní halu, ale i rekonstrukci hlavní budovy základní školy, nové vstupy, technické vybavení, nové šatny, zázemí haly a rekonstrukci místní kultovní posilovny v suterénu. V budoucnu se chystá i revitalizace okolního veřejného prostranství, vnitřního dvora a venkovních hřišť.
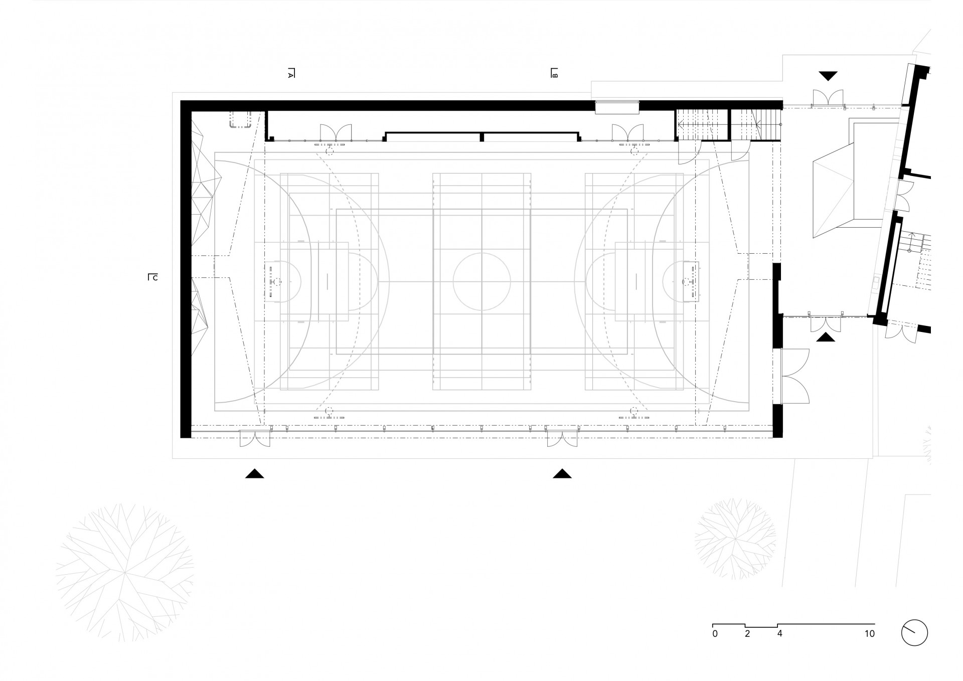
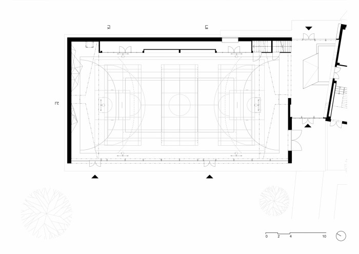
Sportovní hala je užívána jako tělocvična místní základní školy, ale také slouží k pronájmu pro širokou veřejnost. Hlavním konceptem této budovy bylo vyzdvihnout potenciál venkovské krajiny a propojit jí velkorysou prosklenou stěnou s vnitřní hrací plochou. Interiér je z velké části obložen dřevěnými lamelami, které dotváří atmosféru a akustickou pohodu. Důležité bylo také vhodně vyřešit napojení na stávající objekty a zahradu. Stavba je z velké části ovlivněna vnitřní lezeckou stěnou, která vystupuje nad podhled hrací plochy a tvoří dominantní horní světlík, který je zrcadlen i na druhé straně.
Zadání klienta
Nevyhovující stará tělocvična po několik generací doprovázela děti základní školou, mezi nimi byla i architektka Janica Šipulová z ateliéru CONSEQUENCE FORMA architects. Záměr městyse bylo postavit novou tělocvičnu pro školu a veřejnost. Důležité bylo vyřešit vhodné napojení na stávající různorodé objekty a zachovat co největší plochu školní zahrady pro budoucí hřiště a jiné školní aktivity. V průběhu projekčních prací byl ředitelem školy doplněn požadavek o umístění co nejvyšší lezecké stěny. Zásadní byla i předpokládaná cena realizace. Malá obec neměla jistotu, zda uspěje s žádostí o dotaci. Postupně se na projekt sportovní haly nabalovaly další etapy celkové rekonstrukce areálu školy, a to snížení energetické náročnosti nejstaršího objektu, s tím související rekonstrukce posilovny, nová identita vstupů a doplnění technického vybavení objektu. V druhé budově pak došlo k rekonstrukci přízemí, nový interiér šaten, vytvoření zázemí pro sportovní halu, doplnění nového vstupu na zahradu a také rekonstrukce vstupu. V budoucnu by měla následovat revitalizace okolí.
Kontext, inspirace, klíčové koncepce při vytváření návrhu, prostorové řešení
Umístěním sportovní haly mezi násyp železniční trati a budovy základní školy se vytvořil prstenec kolem vnitřního dvora a zahrady, které jsou nově přístupné ze všech školních budov novými vstupy. Základním konceptem samotné sportovní haly je propojit venkovní krajinu a vnitřní prostředí prosklenou fasádou. Prostor se nezastaví, ale plyne dál do krajiny, která se v čase mění. Pohled oběma směry, zvenčí dovnitř a obráceně, dává vzniknout novým interakcím a je důležitou součástí konceptu. Orientace prosklené fasády přináší atmosféru zapadajícího slunce po dlouhé večerní hodiny. Interiér se tak stává útulnější. Bez osvětlení je splynutí s krajinou více intenzivní a nabízí intimní chvilky vhodné pro meditaci, jógu a tanec. Při nasvícení interiéru naopak nabízí skvělou podívanou zvenčí. Dopolední hodiny jsou v režii žáků a jejich učitelů.
Východní stěna haly má tři velkorysá okna, které rámují cílené pohledy ven i dovnitř. Nejnižší okno láká veřejnost k nahlédnutí a jeho vnitřní kovové lemování slouží k posezení necvičících žáků. Další dvě okna jsou přístupná z vnitřní tribuny a lze jimi dohlédnout na centrum obce nebo sledovat projíždějící vlaky. Celému prostoru vévodí velkorysá lezecká stěna vytažená nad podhled s horním světlíkem. Při zdolání stěny mohou lezci pohlédnout do krajiny úzkým oknem ve štítu. Druhý světlík dotváří celou kompozici. Venkovní rohy těchto světlíků zvědavě vystupují nad střechu a rozehrávají jinak rigidní formu haly. Snaha zapadnout ale i vyčnívat se tak mísí v celém návrhu, který se pokouší o novou otevřenou typologii sportovní haly. Budova svou architekturou podporuje a inspiruje místní komunity a jejich děti. Po několika měsících provozu se začínají plnit sportovní kluby a vznikají nové, například lezecký kroužek.
Návrh rekonstrukce hlavní budovy základní školy vychází z původní koncepce objektu od architekta Bohumíra Kupky. Původní cihlové pilíře jsou nově zatepleny a obloženy cihlovým páskem. Kompletní proměna členění oken, doplnění obkladu cihlového průčelí a nové pojetí designu všech vstupů posouvá budovu do současného architektonického pojetí. V budoucnu snad bude dokončena i revitalizace okolí a zcelí celkovou proměnu školního areálu v srdci městyse. Celková změna si klade za cíl nabídnout místním a jejich návštěvníkům veřejný prostor pro děti, setkávání, hru a odpočinek.
Technické řešení – způsoby konstrukce a hlavní materiály užité v projektu
Návrh je reakcí na protichůdné požadavky: vysoká lezecká stěna a ekonomické řešení konstrukce střechy. Nejvýhodnější bylo použití sbíjených dřevěných vazníků v kombinaci s krajními světlíky, které umožnili maximální využití výšky pro lezeckou stěnu. Samotnou výzvou bylo pak řešení plně prosklené stěny se subtilními kovovými sloupy. Bezrámové zasklení po celé délce objektu je odolné vůči nárazu a tvoří ji tři vrstvy skla v kombinaci se speciální fólií. Další část haly tvoří betonové sloupy s vyzdívanou konstrukcí, založené na betonových patkách. Vnitřní dřevěné obložení zajišťuje vhodné akustické podmínky pro sportovní aktivity. Vše lze sledovat z tribuny přístupné ze spojovacího krčku s přízemím objektu školy. V této budově jsou také umístěny šatny a zázemí sportovní haly. Venkovní fasáda haly je obložena dřevěnými profily z jedné strany a omítnuta jemnými strukturami z druhé strany. Pod tribunou a v prostoru krčku se nachází úložné prostory. Sportovnímu vybavení dominují stahovací basketbalové koše a pružná sportovní podlaha. Projekt byl kreslen v BIM softwaru, získal finanční dotaci a jeho realizace byla dokončena v roce 2021.
Energetické úsporné prvky a řešení, udržitelnost
Udržitelnost řešení je ve způsobu řízené rekuperace vzduchu pomocí vzduchotechnické jednotky umístěné ve střešní konstrukci mezi vazníky, která zajišťuje dostatečný přívod čerstvého přírodního vzduchu. Vyústění větrání do štěrbin mezi vazníky a stropní svítidla nenarušuje celistvost interiéru. Celý objekt je vytápěn pomocí podlahových konvektorů, skrytých podél prosklené stěny. Díky tomuto estetickému řešení také nedochází k rosení skla. Další pomocná desková otopná tělesa jsou na tribuně a ve spojovacím krčku. Vnitřní akustika zase přispívá k zdravému vnitřnímu prostředí. Zásadní je použití led svítidel, která svou dlouhou životností a úsporným provozem přispívají k udržitelnosti objektu v čase. Různé režimy světel, velká prosklená plocha a horní světlíky umožňují jemnější práci s nasvětlením během dne nebo jen částečné nasvětlení různých aktivit. Venkovní dřevěné lamely a žaluzie orientované k západu pomáhají k tomu, aby se objekt zbytečně nepřehříval. Nakládaní s dešťovou vodou ze střech svedeno do vsakovacích objektů o rozloze 165 m2 na pozemku školy.
- Autoři: Martin Sládek, Janica Šipulová
- Ateliér: Consequence forma
- Spolupráce: Nina Vlček Ličková, Jiří Šnerch, Jan Schleider
- Země: Česká republika
- Město: Nový Hrozenkov
- Projekt: 2019-2020
- Realizace: 2021
- Zastavěná plocha: 820 m²
- Užitná plocha: 860 m²
- Plocha pozemku: 2030 m²
- Investor: Městys Nový Hrozenkov
- Náklady: 34 740 000 Kč
- Adresa:: Nový Hrozenkov 437, 75604 Nový Hrozenkov
Související architekti
Související ateliéry a firmy
Mohlo by vás zajímat






























