Kuba & Pilař architekti - Fakulta humanitních studií UK
 
                                
                                Původní objekty menzy a kolejí architekta Karla Pragera zůstaly jen torzem nedokončeného areálu univerzitního kampusu na břehu Vltavy. Samotná menza nebyla nikdy plně využita k zamýšlenému účelu. Stavba z 80. let minulého století s náročnou konstrukcí zvedaných stropů a hlubokou centrální čtvercovou dispozicí měla nespornou architektonickou kvalitu odpovídající době svého vzniku. Pro nové využití Fakultou humanitních studií však byla nutná radikální proměna.
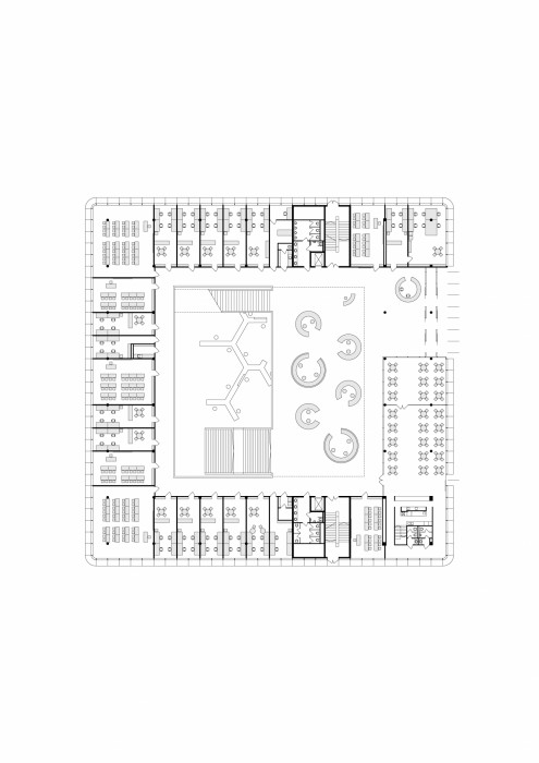
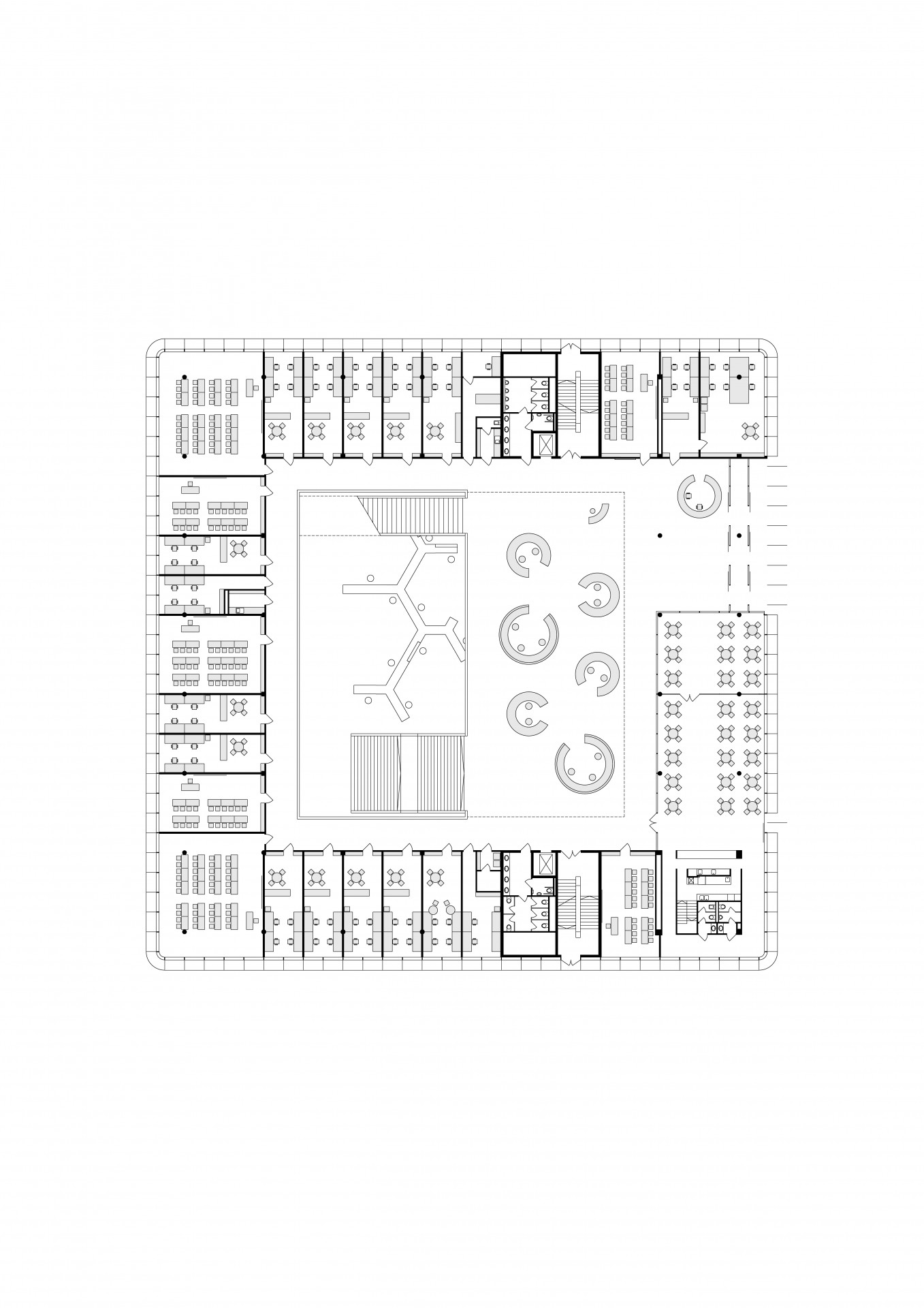
Návrh přestavby zachovává vnější tvar, podlažnost a proporce původního objektu menzy. Zásadním zásahem je vytvoření velkorysého centrálního prostoru dvorany s horním osvětlením pronikajícím mezi nosníky střešního světlíku. Dvorana je srdcem a společenským centrem fakulty, současně je prostorovou spojnicí všech tří podlaží. Vstup do objektu na úrovni zvýšeného plata nabízí snadné komunikační propojení jednotlivých podlaží pomocí dvou odlišně formovaných jednoramenných schodišť. Po obvodu dvorany jsou umístěny konzoly galerií s přístupem do seminárních místností, pracoven pedagogů a dvojice výtahů s únikovými schodišti. Na nejnižší úrovni dvorany jsou pak velké společné posluchárny, aula, fakultní knihovna a děkanát.
Mezi použitými materiály převládá pohledový beton kombinovaný s jemnou kovovou sítí podhledů, černá stěrka podlahy a bílé truhlářské prvky a nábytkové vybavení. Prostoru dominuje variabilní sestava odpočinkového sedacího nábytku v oranžové barvě.
Předsazený celoprosklený strukturální fasádní plášť je navržen především jako účinná akustická ochrana proti hluku ze šestiproudé komunikace Městského okruhu v těsné blízkosti objektu. Zdvojená fasáda současně umožňuje přirozené větrání a regulované stínění vnitřních prostor. Zaoblení prosklených nároží je odkazem na původní architektonické ztvárnění stavby.
Přestavba menzy je součástí rozsáhlého celku zahrnujícího i dvě výškové budovy kolejí na společné základně. Dokončení úprav venkovních ploch, přístupových komunikací a zeleně budou předmětem další etapy výstavby.
- Autoři: Ladislav Kuba, Tomáš Pilař, Martin Klimecký
- Ateliér: Kuba & Pilař architekti
- Země: Česká republika
- Město: Pátkova 5, 182 00 Praha 8
- Projekt: 2010-17
- Realizace: 2020
- Zastavěná plocha: 4974 m²
- Užitná plocha: 13350 m²
- Plocha pozemku: 11900 m²
Související projekty
Související architekti
Související ateliéry a firmy
Mohlo by vás zajímat
 
				 
				 
				 
				 
				 
				 
				 
				 
				 
				 
				 
				 
				 
				 
				 
				 
				 
				 
				 
				 
				 
				 
				 
				 
				 
				 
				 
				 
				 
				 
				 
				 
				 
				 
				 
				 
				 
                             
                             
                             
                             
                             
                                 
                             
                             
                             
                             
                             
                             
                             
                             
                             
                             
                             
                             
                             
                             
                             
                             
                             
                             
                             
                             
                             
                             
                             
                             
                             
                             
                             
                             
                             
                             
                     
                     
                     
             
             
             
            		 
            		 
            		 
            		 
            		 
                                                                                                             
                                                         
                                                         
                                                                                                             
                                                         
                                                         
                    