Dostavba atria Provozně ekonomické fakulty ČZU v Praze

Stávající stav
Areál české zemědělské univerzity v Praze na Suchdole byl zbudován v 60 letech minulého století a představuje výjimečnou dobovou ukázku krajinářsko urbanistické tvorby. V areálu naleznete budovy rektorátu, učeben, laboratoří, přednáškové pavilony, dílny, sportovní areál s tělocvičnami a bazénem, konferenční sál, ubytovací a stravovací zařízení. Celý komplex budov je postaven v jednotném architektonickém stylu neofunkcionalismu s přiznaným monolitickým železobetonový skeletem a vsazenou vyzděnou výplní obloženou keramickou mozaikou. Jednotlivé budovy fakult jsou od sebe rozlišeny barevným provedením mozaik. Osová rozteč sloupů je 3,15 m ve směru rovnoběžném s fasádou objektů. Díky shodnému formátu a členění okenních a dveřních výplní vzniká sjednocený soulad mezi jednotlivými budovami. Tento systém je využit u všech areálových budov vystavěných ve shodném období jako Provozně ekonomická fakulta.
Řešená část
Stávající budova Provozně ekonomické fakulty ČZU a přilehlé přednáškové budovy byly před zahájením výstavby Atria propojeny tzv. propojovacím krčkem a místo určené budoucí dostavbě atria se nachází právě na místě původního spojovacího krčku.
Popis stavebního záměru
Jedná se o přístavbu, která nahrazuje původní spojovací koridor, který již neodpovídal svému účelu uživatelsky, kapacitně i vybaveností.
Základní funkcí řešené přístavby Provozně ekonomické fakulty je shodná s funkcí stávajícího stavu budovy, tj. veřejná budova se vzdělávací funkcí, resp. objekt veřejné vybavenosti. Jedná se o atrium propojující dvě části jedné fakulty tak, aby byly obě části funkční jako celek a rozšiřuje možnost využití o funkce relaxační, samovzdělávací a společenské.
Přístavba je navržena tak, aby v maximální možné míře respektovala požadavky investora a reagovala na nedostatek společných prostor fakulty. Uleví tak přeplněným chodbám a bude sloužit studentům v době mezi výukovými bloky. Umožní studentům pracovat samostatně ve vlastním volném čase ve vyhovujících podmínkách, a využít prostor k práci či zábavě. Nejedná se primárně o prostor určený ke studiu.
Budova přispívá k vyřešení nedostatečné kapacity fakulty s náporem čím dál většího počtu nových studentů a přizpůsobuje ji požadavkům moderní doby. Současné prostory PEF určené pro volný pohyb a rozptyl studentů jsou nevyhovující. Studenti se při čekání na zápočet, zkoušku či konzultaci musejí mačkat v poddimenzovaných neosvětlených a neprovětraných úzkých chodbách. Vstupní vestibul je neustále přeplněný a lavičky obsazené. Stávající prostor s internetovým připojením je kapacitně poddimenzován.
Popis konceptu architektonického řešení
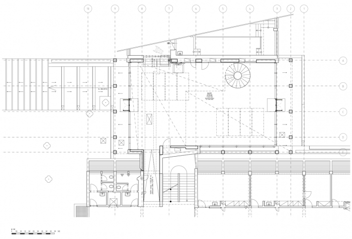
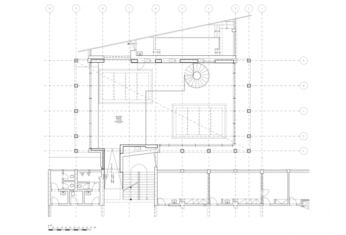
Navržené atrium navazuje na stávající architekturu okolní zástavby a vytváří tak přirozené propojení mezi hlavní a přednáškovou budovou Provozně ekonomické fakulty ČZU. Tvaroslovím vychází z okolních budov. Výraz přístavby je zvolen tak, aby nerušil a zapadal do již existujícího kontextu. Společným jmenovatelem se stal přiznaný skeletový konstrukční systém. Stavba tak navazuje na strukturu zástavby a respektuje tak koncepci původního návrhu z 60. let. Byl zvolen velice citlivý přístup, který využívá hlavní přednosti stavební parcely. Hlavní devizou je to, že z provozního hlediska je místo ideálně vhodné k tomuto účelu a v kontextu provozu stávajících budov je dispozičně velmi dobře umístěný. Díky němu navíc studenti získají přístup do severní části zahrady, která byla studentům doposud zpřístupněna jen pohledově. Zahradu budou moci aktivně využívat a v letním období bude pobyt v atriu rozšířen i na ni. Navržená zahrada bude doplňovat novou přístavbu atria a společně vytvoří harmonický celek funkční a architektonicky hodnotný. Fakulta novým atriem získává komunikační centrální bod a přispěje k pohodovému pobytu studentů v celé budově.
Popis navrženého řešení
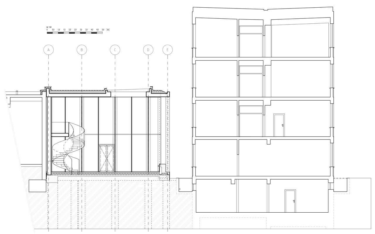
Objekt je založen na vrtaných pilotách průměru 600 mm nebo 900 mm, na nich jsou uloženy železobetonové monolitické pasy po obvodu celého půdorysného průmětu objektu. Nosná konstrukce objektu je navržena z monolitického železobetonu. Nosné sloupy jsou konstantního průřezu 350 mm × 350 mm. Nosné stěny jsou tl. 150, 200, 350 mm. Nenosné svislé konstrukce se skládají převážně z železobetonových předstěn plnících pohledovou a akustickou funkci. Stropní konstrukce nad 1. NP je navržena jako železobetonová deska tl. 300 mm. Jedná se o konzolu, uloženou na nosných sloupech a stěnách. Stropní konstrukce na 2. NP je navržena jako železobetonová deska tl. 300 mm s atikami proměnné výšky po celém obvodu budovy. Střecha je navržená jako plochá nepochůzná, spádovaná k 6 ks dešťových vpustí.
Fasády jsou provedeny jako železobetonové pohledové stěny, zavěšené na systémových nerezových kotvách a dále pak jako strukturální skleněné. Prostory mezi nosnou a pohledovou částí železobetonové stěny jsou vyplněny deskami z extrudovaného polystyrenu. V místech styku s vodorovnými konstrukcemi (podlahová a střešní) doléhá tepelná izolace na tzv. isokorby se statickou funkcí. U ploché střechy objektu hlavní tepelnou izolaci tvoří spádové desky z minerálních vláken.
Prostor je proveden bez výmaleb jako pohledový železobeton – stěny, sloupy, strop. Interiérová stěna sousedící s přednáškovým pavilonem je jako jediná opatřena předstěnou. Jedná se lehkou akustickou předstěnu provedenou z dýhované perforované MDF. Prostory stávající hlavní budovy PEF (spojovací koridor vestibulu a atria v místě bezbariérové rampy) jsou na stěnách opatřeny cementovou stěrkou ve vzhledu pohledového betonu a podhled je proveden jako prosvětlená pnutá folie – tzv. translucentní folie se systémem LED páskových diod. Shodným systém pnuté folie je řešena část podhledu také v prostoru bezbariérové rampy v 2. NP a spodní konstrukce ocelového schodiště.
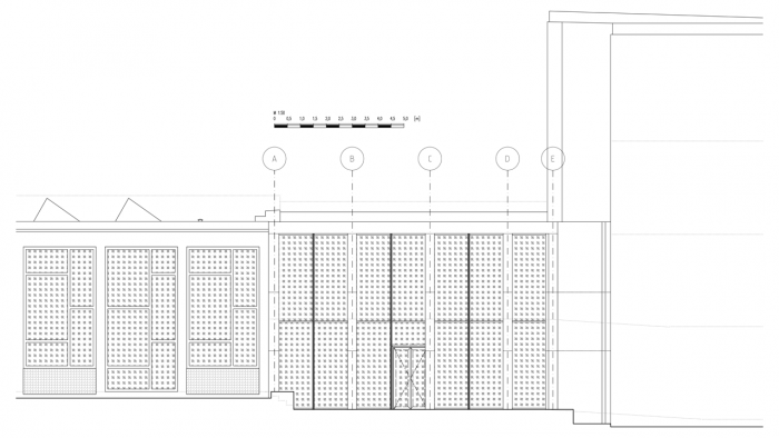
Prosklené fasády jsou řešené pomocí hliníkové konstrukce sloupkopříčkového (rastrového) systému s šířkovým modulem sloupků 1500 mm na severní a jižní straně a 1575 mm na východní straně. Výška mezi čistou podlahou a ŽB stropem je 6800 mm. Z architektonického hlediska je upřednostněno zvýraznění vertikality, což je docíleno ze strany interiéru zeštíhlením nosných sloupků tak, aby vytvářely břity a proto jsou navrženy sloupky tvaru T. Výškově jsou stěny fasád děleny příčníkem uprostřed celkové výšky, 3400 mm nad čistou podlahu. Ve dvou polích jsou situovány vstupy a to vsazením dvoukřídlích celohliníkových dveří. Všechny Al konstrukce a plechy jsou ošetřeny práškovou barvou RAL 7016 FINE TEXTURE. Zasklení na jižní fasádě a ve střešních světlících je dvojsklem s protisluneční ochranou typu Soft coated neutral.
V 2. NP je provedeno skleněné zábradlí výšky 1,0 m se systémovým ukotvením. Podlahy jsou provedeny jako ŽB drátkobetonové.
Všechen interiérový mobiliář je navržený atypicky, materiálově je řešen z přírodního dubu a čalouněné prvky jsou potaženy přírodní kůží.
Orientace budovy – jižní vstup atria je řešen jako hlavní, z prostoru areálového náměstí.
Mohlo by vás zajímat
























