No Architects - Houm ofis
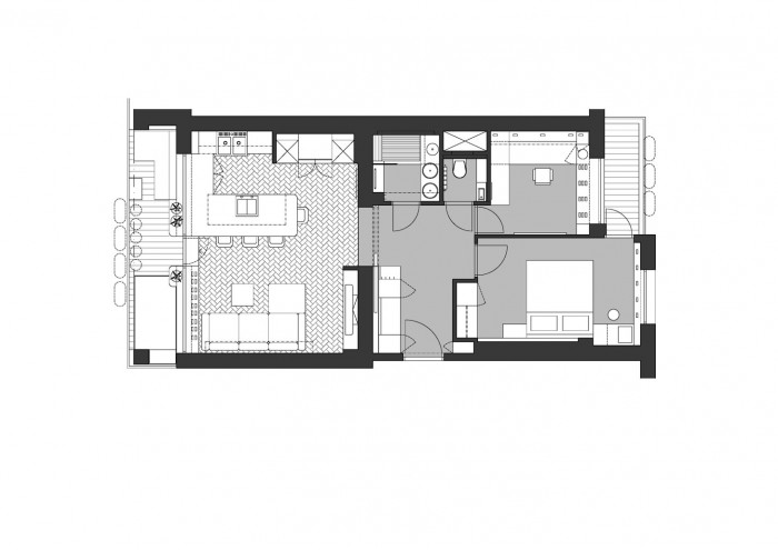
Klienti nás oslovili ještě za svého pobytu v Barceloně. Chtěli se přesunout do Prahy a přestavět starý byt s lodžií o typické dispozici 3kk, kterou obývají desítky tisíc dalších rodin v panelových domech. Naší odpovědí na jejich individuální představy o bydlení a práci z domova byla jemná modifikace dispozice tak, aby nikde nepůsobila stísněně a synergií jednotlivých průhledů se byt dal zažívat v celé své velikosti. Ocelovými detaily v průmyslové modři odkazujeme s jemnou ironií na ideu stroje na bydlení skrytou za dobovou typizovanou stavební produkcí. Byt je jimi jemně protkán od věšáčků, přes knihovnu, němé sluhy v ložnici, zásobník toaletního papíru, po topení v koupelně. Jedinou místností „průmyslem“ nedotčenou je pak paradoxně domácí kancelář coby memento proměny „situace nás pracujících“.
Největší urbanistickou hodnotou výstavby tohoto typu je naplnění původní myšlenky bydlení v zeleni. Proto jsme akcentovali obytnost obou lodžií a průhledy do korun stromů. Světlé odstíny interiéru lze po soumraku měnit pomocí online kontrolovaných světelných zdrojů s kompletní barevnou škálou schopnou vytvořit libovolnou atmosféru.
Byt je doplněn praktickými drobnostmi pro každodenní radost jako je vytápěné zrcadlo v koupelně, které se tak nerosí, výklopná toaletka se zrcátkem, poklop na týkové desce v koupelně skrývající špinavé prádlo, stůl na programování ve stoje a „díra“ na zahozené papíry v pracovně, nika na sušák a žehlicí prkno nebo nezámrzný vodovodní kohoutek na lodžii apod.
- Autoři: Jakub Filip Novák, Daniela Baráčková
- Ateliér: No Architects
- Země: Česká republika
- Realizace: 2017
- Město: Praha
- Datum projektu: 2016
- Realizace: 2017
Mohlo by vás zajímat