Janca architect - Galerie stage garden GALLERY CREARS
V Rožnově pod Radhoštěm, v ulici Na Zahradách, tedy v bezprostřední blízkosti centrálního rožnovského náměstí stojí drobná hrázděná stavbička. Říká se jí altán, pamatuje doby rožnovského lázeňství. Tehdy v ní byl umístěn provoz inhalátoria. Ke konci předešlého režimu zde potom probíhaly schůzky zájmových kroužků.
Rozpadající se objekt začátkem devadesátých let odkoupili od města mladí manželé - akademický sochař a akademická architektka a přetvořili jej na výstavní galerii. Po první výstavě v roce 94 s názvem 3K, zjistili, že prostor není zcela vhodný pro tento záměr a tak tu vznikla prodejní galerie KUK orientovaná převážně na produkty uměleckého kovářství.
Sen o výstavbě galerie moderního umění však zůstal. Ten se začal pomalu naplňovat, když se manželům v novém tisíciletí podařilo od města koupit přilehlý pozemek. Z celkového konceptu nové galerie obkličující altán je nyní realizován první díl mozaiky - stage garden GALLERY CREARS.
Vznikl nový, důstojný, nejen vnitřní ale i vnější prostor, kde mohou manželé nabídnout návštěvníkům další díl své umělecké osvěty, kterou obohacují město a do kterého přivádějí významné umělce s nadregionálním či dokonce zahraničním přesahem.
Objekt nové galerie stojí za zmiňovaným altánem až v druhé frontě a hlásí se o slovo svou vykukující věží s dominantním velkoplošným bezrámovým rohovým oknem- svítícím okem. Objektu byl záměrně dán asketický výraz, který tvoří neutrální pozadí pro vlastní vystavovaná díla, tedy pro to, o co běží především, pro vystavovaný kumšt. Důležitou roli v celkovém výrazu sehrává vstupní portál s jednoduchým základním kompozičním členěním otvorů a zapuštěným vstupem, stejně jako křehké okenice - posuvné stínící plechové panely s vypalovanými figurativními motivy, které jsou uměleckým dílem a trvalou součástí expozice. Hra světel, slunce a stínů na bílé hmotě je tak umocněna nejen na vnější tváři budovy, ale i v interiéru. Dodává výstavní expozici další napínavou tajemnou měnící se atmosféru.
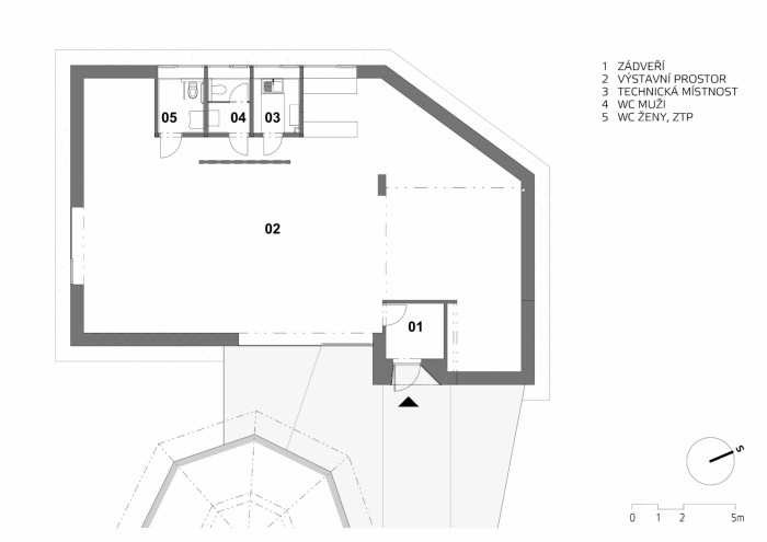
Dispozice je pojata jako jeden výstavní prostor dělený mobilními paravány s vestavěným blokem prostorů hygienického a technického zázemí. Neméně podstatnou výtvarnou výrazovou roli sehrává také okolní parter a jeho vymezení plotem z betonových zdí, vypalovaných plechových panelů a živého oplocení. Umění zde doplňuje architekturu a naopak, vzájemně se prolínají. Tak je to vlastně u galerie správně.
- Autoři: Karel Janča
- Ateliér: janca architect
- Spolupráce: Martin Kaňák, Ingrid Kitzbergerová, Ivana Štenclová
- Země: Česká republika
- Realizace: 2019
- Město: Rožnov pod Radhoštěm
- Ulice, číslo: Na Zahradách 2186
- PSČ: 756 61
- Datum projektu: 2017
- Realizace: 2019
Mohlo by vás zajímat