ATELIER ŽELEZNÁ - Byt v Železné ulici

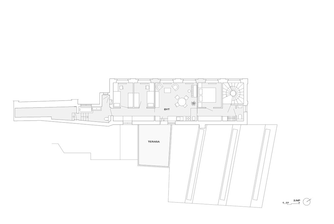
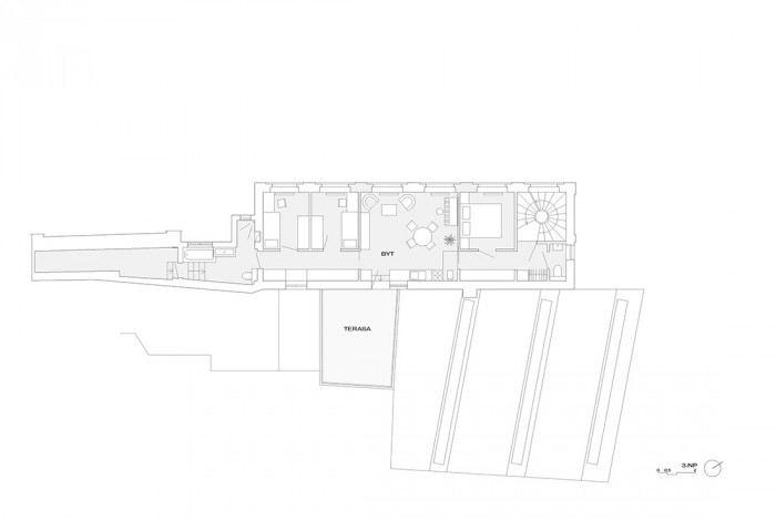
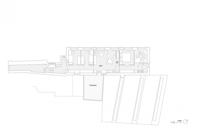
Úzký a protáhlý půdorys bytu v Železné ulici je řešený podobně jako kupé vůz vlaku. Jeho uspořádání je ovlivněno komplikovanou urbanistickou situací uvnitř městského vnitrobloku, část bytu totiž stojí na cizím pozemku. V centru dispozice se nachází obytný prostor s kuchyní, ze kterého je možné vystoupit na terasu ústící do soukromého dvora, v útrobách sousedního domu jsou pak umístěny koupelna a skladovací prostory. Byt je prosvětlen hlavně ze západu, velkorysými okny bývalé tiskárny.
- Autoři: Jiří Macháček, Ondřej Pleštil, Kateřina Rissová, Marie Vondráková
- Ateliér: ATELIER ŽELEZNÁ
- Spolupráce: Leoš Urbánek
- Země: Česká republika
- Město: Liberec
- Realizace: 2018
Související projekty
Související architekti
Související ateliéry a firmy
Mohlo by vás zajímat

Byt v Železné ulici v Liberci od ATELIER ŽELEZNÁ
Foto: Tobiáš Hrabec
1/26

Byt v Železné ulici v Liberci od ATELIER ŽELEZNÁ
Foto: Tobiáš Hrabec
2/26

Byt v Železné ulici v Liberci od ATELIER ŽELEZNÁ
Foto: Tobiáš Hrabec
3/26

Byt v Železné ulici v Liberci od ATELIER ŽELEZNÁ
Foto: Tobiáš Hrabec
4/26

Byt v Železné ulici v Liberci od ATELIER ŽELEZNÁ
Foto: Tobiáš Hrabec
5/26

Byt v Železné ulici v Liberci od ATELIER ŽELEZNÁ
Foto: Tobiáš Hrabec
6/26

Byt v Železné ulici v Liberci od ATELIER ŽELEZNÁ
Foto: Tobiáš Hrabec
7/26

Byt v Železné ulici v Liberci od ATELIER ŽELEZNÁ
Foto: Tobiáš Hrabec
8/26

Byt v Železné ulici v Liberci od ATELIER ŽELEZNÁ
Foto: Tobiáš Hrabec
9/26

Byt v Železné ulici v Liberci od ATELIER ŽELEZNÁ
Foto: Tobiáš Hrabec
10/26

Byt v Železné ulici v Liberci od ATELIER ŽELEZNÁ
Foto: Tobiáš Hrabec
11/26

Byt v Železné ulici v Liberci od ATELIER ŽELEZNÁ
Foto: Tobiáš Hrabec
12/26

Byt v Železné ulici v Liberci od ATELIER ŽELEZNÁ
Foto: Tobiáš Hrabec
13/26

Byt v Železné ulici v Liberci od ATELIER ŽELEZNÁ
Foto: Tobiáš Hrabec
14/26

Byt v Železné ulici v Liberci od ATELIER ŽELEZNÁ
Foto: Tobiáš Hrabec
15/26

Byt v Železné ulici v Liberci od ATELIER ŽELEZNÁ
Foto: Tobiáš Hrabec
16/26

Byt v Železné ulici v Liberci od ATELIER ŽELEZNÁ
Foto: Tobiáš Hrabec
17/26

Byt v Železné ulici v Liberci od ATELIER ŽELEZNÁ
Foto: Tobiáš Hrabec
18/26

Byt v Železné ulici v Liberci od ATELIER ŽELEZNÁ
Foto: Tobiáš Hrabec
19/26

Byt v Železné ulici v Liberci od ATELIER ŽELEZNÁ
Foto: Tobiáš Hrabec
20/26

Byt v Železné ulici v Liberci od ATELIER ŽELEZNÁ
Foto: Tobiáš Hrabec
21/26

Byt v Železné ulici v Liberci od ATELIER ŽELEZNÁ
Foto: Tobiáš Hrabec
22/26

Byt v Železné ulici v Liberci od ATELIER ŽELEZNÁ
Foto: Tobiáš Hrabec
23/26

Byt v Železné ulici v Liberci od ATELIER ŽELEZNÁ
Foto: Tobiáš Hrabec
24/26

Půdorys
Foto: ATELIER ŽELEZNÁ
25/26

Pohled
Foto: ATELIER ŽELEZNÁ
26/26