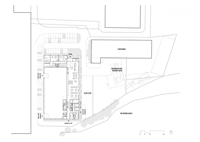
Roman Zitnansky architecture + GutGut - Administrativní sídlo firmy GA DRILLING

Firma GA DRILLING je mladá, dynamicky sa rozvíjajúca rodinná firma, ktorá sa snaží vytvoriť pre svojich zamestnancov kreatívne prostredie v novej administratívnej budove. V návrhu sme sa preto snažili zohľadniť dôležité aspekty, ktoré firmu charakterizujú, a ktoré sú pre jej fungovanie dôležité.
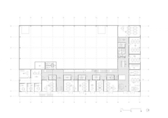
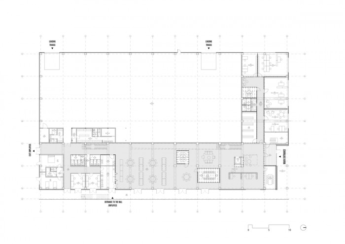
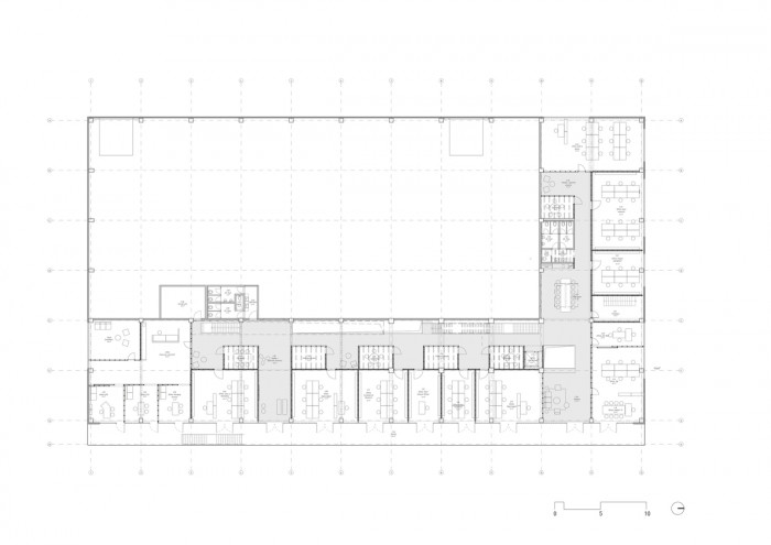
Osnovou a zároveň chrbtovou kosťou celého projektu je preto vytvorenie kontinuálneho spoločného priestoru, na ktorý sú naviazané pracovné zóny. Je prepojený v horizontálnom aj vertikálnom smere, prepája interiér s exteriérom, fyzicky aj opticky. Cez otvory v múroch alebo podlahe prepúšťa svetlo do hĺbky traktu a presvetľuje celý vnútorný priestor. Jeho kontinuita vytvára pocit transparentnosti a z jednoduchých chodieb vytvára stretávacie a spoločenské priestory. Táto priestorová kontinuita, alebo nekonečno sa stáva akousi metaforou technologických možností rozvoja alebo rastu firmy.
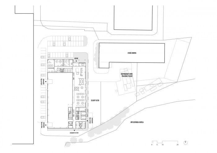
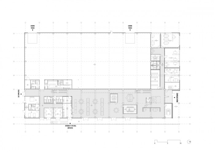
Funkčne objekt delíme na tri podlažia: 1NP – EAT&MEET, 2NP- WORK&LEAD, 3NP – WORKOUT. Všetky tri podlažia charakterizujú uzavreté prevádzky kancelárií a otvorené prevádzky spoločných priestorov.
Spodné podlažie / EAT&MEET/ je tvorené veľkoryso navrhnutými spoločnými priestormi, vstupnej haly, foyer a kantínou, ktoré sú spojené do jedného celku. Sú medzi sebou opticky predelené uzavretými „boxami“ zasadacích miestností, ktoré fungujú ako záchytné zasadačky najmä pre návštevníkov a hostí. Spoločné priestory sú fyzicky aj opticky prepojené s exteriérom. V kratšom trakte budovy sa nachádza kancelárska časť so zasadacou miestnosťou a vlastnou hygienou.
2NP /WORK&LEAD/ je tvorené uzavretými kancelárskymi boxami, polouzatvorenými boxami zasadacích miestností a otvorenými spoločnými priestormi. Sú organizované do funkčných celkov medzi ktorými sa nachádzajú tematické oddychové zóny. Kancelárske boxy sú z exteriéru prepojené s veľkoryso navrhnutou pavlačou, ktorá najmä v letných mesiacoch umožňuje zamestnancom priamy výbeh do exteriéru a zvyšuje pracovnú pohodu jej užívateľov.
3NP /WORKOUT/ bola navrhnutá ako strešný box s veľkoryso navrhnutou uzavretou miestnosťou s priamym výlezom na strešnú terasu s multifunčnou náplňou.
Hmotovo a konštrukčne je objekt jednoduchý, tvorí ho železobetónová montovaná konštrukcia s murovanou konštrukciou oddeľujúcou výrobnú časť od pracovnej časti. Vnútorné členenie kancelárií je tvorené z ľahkých montovaných prvkov /SDK, drevené hrázdené konštrukcie/, ktoré umožňujú ľahkú demontovateľnosť a teda aj potencionálnu recykláciu budovy. Plášť a vonkajšie konštrukcie sú oceľové, z jednoduchej hmoty vystupuje oceľová pavlač s pletivom, ktoré slúži ako support pre popínavé rastliny. Industriálny charakter budovy teda časom zazelenie a splynie s prírodným okolím.
- Autoři: Roman Žitňanský
- Ateliér: gutgut
- Spolupráce: Juraj Výboh, Ľubica Segečová
- Země: Slovensko
- Město: Bratislava
- Ulice, číslo: Vápenka, 4
- PSČ: 84107
- Realizace: 2018
Související projekty
Související architekti
Související ateliéry a firmy
Mohlo by vás zajímat




































